Kancelář, pronájem, Prokopa Velikého, Vítkovice, Ostrava, Ostrava-město
Makléř: Ing. Darina Jamnická
Telefon: 800 103 ...
E-mail: zakaznic ...
Zobrazit celý kontaktTelefon: 800 103 010, 800 103 010
E-mail: zakaznicky.servis@rksting.cz
pronájem
Prokopa Velikého
Komerční, Kanceláře a administrativní prostory
130853
21.11.2025
neuvedeno
G - Mimořádně nehospodárná
Makléř: Ing. Darina Jamnická
Telefon: 800 103 ...
E-mail: zakaznic ...
Zobrazit celý kontaktTelefon: 800 103 010, 800 103 010
E-mail: zakaznicky.servis@rksting.cz
Nemovitost nabízí
Realitní kancelář STING, s.r.o.
1.máje 540, 739 61 Třinec
Zobrazit kontakt na RK800 103 010
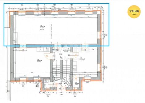
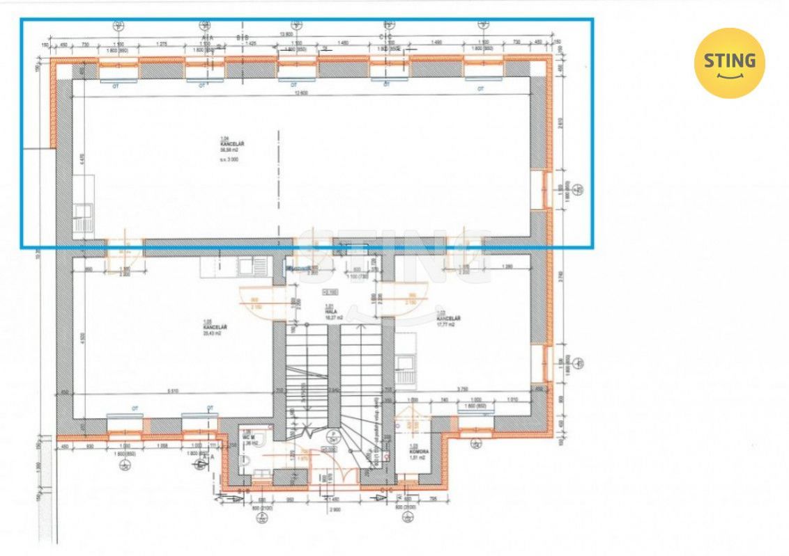
Nabízíme pronájem jedné kanceláře o rozměru 56m2, která se nachází v 1.NP/3.NP nově zrekonstruovaném zděném domě na ul. Prokopa Velikého, v Ostravě - Vítkovicích. Vstup do domu a kanceláře na čipové karty. Dům je zateplený. Jedná se o jeden otevřený prostory, který si může budoucí nájemce variabilně dle potřeby zařídit, případně využít stávající nábytek, viz foto. Moderní sociální zázemí k dispozici v mezi patře, příprava na kuchyňské zázemí je v pronajímané místnosti. V místností je vzduchotechnika, která chladí nebo topí. Objekt je oplocen, dispozici pro pohodlný vjezd je elektronická brána a celý objekt je zabezpečen bezpečnostním systémem. Jedno parkování je zajištěno ve dvoře na parkovišti za poplatek 500,-/měs. Na ulici jsou k dispozici volná parkovací místa. Dům se nachází v blízkosti zastávky MHD, náměstí Mírové náměstí. Cena za pronájem kanceláře činí 9.000,-Kč/měsíc/+ zálohy na služby. Vratná kauce 20.000,-Kč. Provize RK je 10.000,-Kč + dph. Těším se na prohlídku s Vámi.
Pronájem kanceláří, Organica, Ostrava- centrum, náměstí Biskupa Bruna, 1938 m2
V zastoupení pronajímatele (neplatíte provizi) nabízíme k pronájmu exkluzivní kancelářské prostory v nové administrativně obchodní budově Organica v…
Pronájem kancelářského prostoru, 76 m2, Ostrava - Vítkovice
Nabízíme k dlouhodobému pronájmu kancelářské prostory - 3 neprůchozí kanceláře (20 m2, 23 m2, 14 m2), kuchyňka, WC. Možnost parkování ve dvoře za…
Pronájem kanceláře Ostrava na Eurobydleni.cz