Vybírejte z nabídky 38 678 nemovitostí od 825 realitních kanceláří
lupa mobilní menu
Přehled nemovitostí: prodej domy > rodinné domy > Bystřany Zpět na přehled nabídek

Rodinný dům s nádherným výhledem na hrad Doubravka Ideální pro vícegenerační bydlení nebo investic, Bystřany

Prodejce

Makléř: Marcel Šmíd

Telefon: 775 112 ...

E-mail: marcel.s ...

Zobrazit celý kontakt

prodej

Bystřany (okres Teplice)

Cajthamlova

Domy, Rodinné domy

20241399

19.11.2025

3

550 m2

neuvedeno

G - Mimořádně nehospodárná

Cena: 5990000 CZK / objekt
Prodejce

Makléř: Marcel Šmíd

Telefon: 775 112 ...

E-mail: marcel.s ...

Zobrazit celý kontakt
Poslat dotaz k nabídce
Zásady používání osobních údajů

Nemovitost nabízí

/loga_velka/1843.webp

Anna Černá Reality

Antonína Sochora 2050, Teplice

www.annacerna.cz

Zobrazit kontakt na RK

Zobrazit všechny nabídky RK

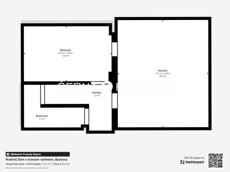
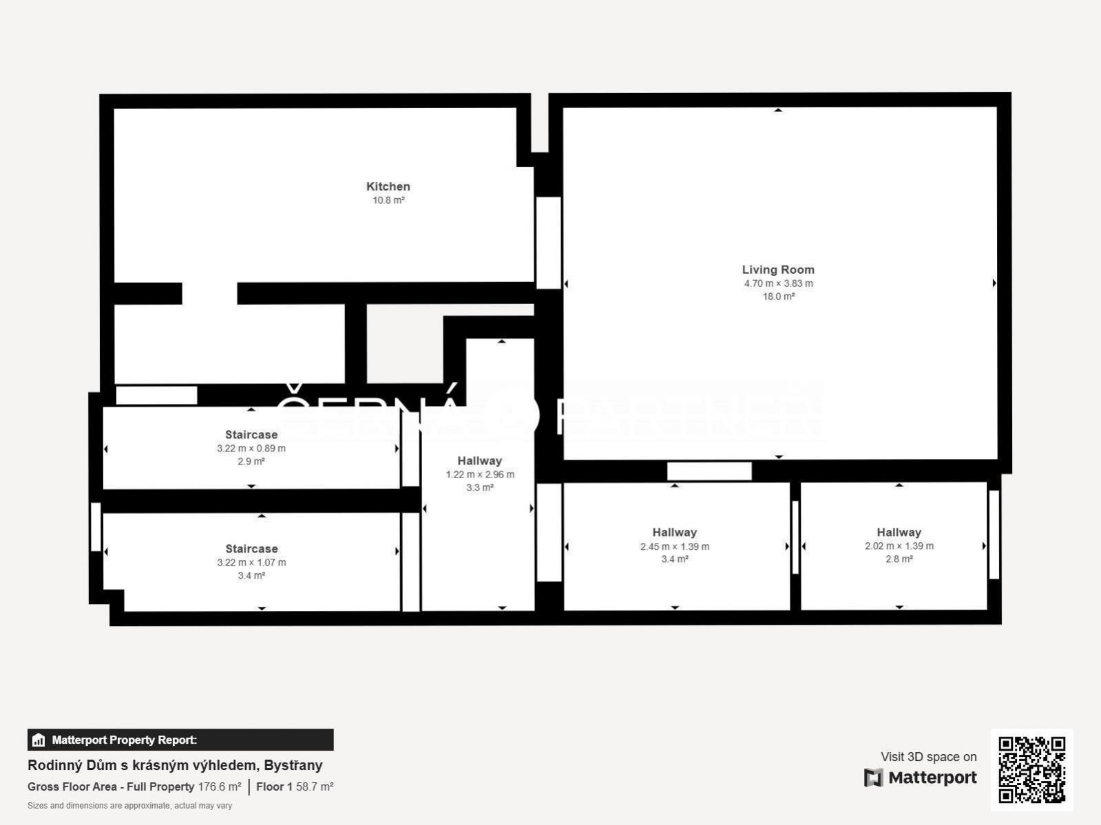
Virtuální prohlídka ve fotogalerii. Rádi bychom vám představili jedinečnou příležitost ke koupi rodinného domu s možností vícegeneračního bydlení, nacházejícího se v klidné lokalitě na adrese Cajthamlova, Bystřany. Tento dům je ideální volbou jak pro rodiny hledající prostorné a pohodlné bydlení, tak pro investory, kteří chtějí využít potenciál nemovitosti jako více bytových jednotek. Popis nemovitosti: Rodinný dům nabízí celkem tři bytové jednotky, které zaručují dostatek prostoru a soukromí pro všechny obyvatele. V přízemí se nachází útulná jednotka 1+1, která je ideální pro prarodiče nebo jako startovací byt pro mladé páry. Na prvním patře najdete prostornou dispozici 2+0, která nabízí dostatek prostoru. Druhé patro pak disponuje moderní jednotkou 2+kk s krásným výhledem na okolní krajinu. Celková užitná plocha domu činí 200 m a je připravena ihned k nastěhování. Zahrada a okolí: Jedním z největších lákadel této nemovitosti je rozlehlá zahrada o výměře 470 m, která nabízí nespočet možností pro využití. Ať už toužíte po okrasné zahradě, místu pro dětské hry nebo vlastní zeleninové zahrádce, zde se vaše přání stane skutečností. Na zahradě se nachází i pergola, ideální pro letní posezení s rodinou a přáteli, a kůlna na nářadí, která poskytuje dostatek úložného prostoru. Technické vybavení: Dům je vybaven plynovým vytápěním, což zajišťuje efektivní a úsporný provoz. Pro ohřev vody je k dispozici bojler, který zajistí dostatek teplé vody pro všechny bytové jednotky. Lokalita: Nemovitost se nachází v blízkosti centra, avšak v klidné oblasti, což zajišťuje komfortní bydlení s veškerou občanskou vybaveností na dosah ruky. Ať už potřebujete nakoupit, zajít na kávu, nebo se vydat na procházku po okolí, vše máte nadosah. Pokud hledáte domov, který nabízí klid, prostor a skvělé zázemí pro více generací nebo výhodnou investici, neváhejte nás kontaktovat pro více informací nebo sjednání prohlídky. Tato nemovitost je připravena splnit vaše sny o dokonalém bydlení.




Prodej rodinného domu Bystřany na Eurobydleni.cz


Nahoru