Vybírejte z nabídky 38 711 nemovitostí od 824 realitních kanceláří
lupa mobilní menu
Přehled nemovitostí: prodej byty > 3+kk > Vimperk Zpět na přehled nabídek

Investiční příležitost Rezidence Volyňka, Vimperk, byt 3+KK Ihned k nastěhování

Prodejce

Makléř: Bardová Marie

Telefon: 724 217 ...

E-mail: marie.ba ...

Zobrazit celý kontakt

prodej

Vimperk (okres Prachatice)

Jirchářská

Byty, Byt 3+kk

969398

26.11.2025

1 (dům má 3 podlaží)

osobní

72 m2

69 m2

G - Mimořádně nehospodárná

Cena: 4950000 CZK / objekt
Prodejce

Makléř: Bardová Marie

Telefon: 724 217 ...

E-mail: marie.ba ...

Zobrazit celý kontakt
Poslat dotaz k nabídce
Zásady používání osobních údajů

Nemovitost nabízí

/loga_velka/10061.webp

CENTURY 21 4fin Reality

Na Hřebenech II 1718/8, 140 00 Praha 4

www.4finreality.cz

Zobrazit kontakt na RK

Zobrazit všechny nabídky RK

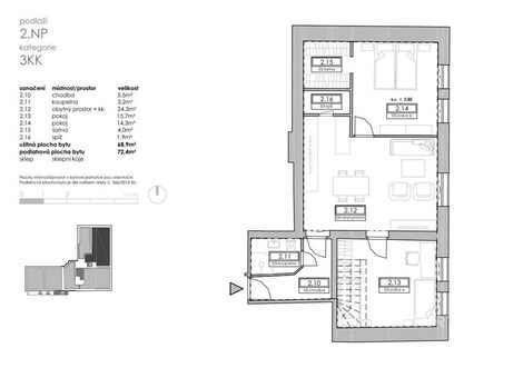
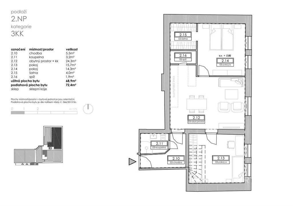
Investiční příležitost - Rezidence Volyňka, Vimperk Nově zrekonstruovaný byt 3+kk | 72 m2 | 2. NP | Ihned k nastěhování Nabízím exkluzivně k prodeji atraktivní byt 3+kk o podlahové ploše 72 m2, který se nachází v 2. nadzemním podlaží nově zrekonstruovaného bytového domu v rámci projektu Rezidence Volyňka.Tento byt je jedním z prvních dokončených a představuje skvělou investiční příležitost - jak pro dlouhodobý pronájem, tak i pro zhodnocení v čase. O projektu Rezidence Volyňka Rezidence Volyňka je unikátní developerský projekt, který přetváří areál bývalých tiskáren ve Vimperku v moderní rezidenční komplex.V rámci rekonstrukce zde vznikne více než 60 bytů - od útulných 1+kk až po prostorné mezonety 3+kk. Každá jednotka nese podpis kvalitního designu, důrazu na detail a funkčního uspořádání prostoru.Díky tomuto konceptu se projekt stává ideální volbou pro investory, kteří hledají stabilní a rostoucí hodnotu nemovitosti, nízkou vstupní cenu oproti větším městům, vysoký potenciál pronájmu v lokalitě s omezenou nabídkou moderních bytů. Dispozice bytu Byt nabízí promyšlené řešení: vstupní předsíň, koupelnu se sprchovým koutem a WC, prostorný obývací pokoj s kuchyní a jídelnou, včetně přípravy na kuchyňskou linku a praktické spíže, dvě ložnice, z nichž jedna disponuje vlastní šatnou. Byt se prodává nezařízený - ideální pro přizpůsobení dle vlastního vkusu nebo vybavení pro pronájem. Součástí nabídky je i sleva 10 % na nákup nábytku včetně kuchyňské linky v přilehlém nábytkovém studiu, které je součástí komplexu. Lokalita Vimperk je město s kompletní občanskou vybaveností - školy, školky, úřady, pošta, restaurace, lékař, obchody i sportoviště v docházkové vzdálenosti. Navíc se nachází v bráně Šumavy, která láká turisty po celý rok. To přináší výborný potenciál pro krátkodobé i dlouhodobé pronájmy (rekreační i pracovní). Proč investovat právě zde? Atraktivní cena za m2 oproti srovnatelným projektům. Silná poptávka po kvalitním pronájmu v regionu. Stabilní zhodnocení díky rostoucímu zájmu o Šumavu. Možnost okamžitého pronájmu - byt je ihned k dispozici. Možnost financování hypotékou - zajistíme kompletní servis včetně nezávislého porovnání financování. Rezidence Volyňka - investice, která roste s časem.. Tento byt nabízí kombinaci klidné lokality, kvalitního provedení a silného investičního potenciálu. Neváhejte mě kontaktovat pro více informací nebo osobní prohlídku.



Nahoru