Pronájem, Administrativní prostory a objekty, Ostrava
Makléř: Mgr. Renata Valicová
Telefon: 420 604 ...
E-mail: info@nem ...
Zobrazit celý kontaktTelefon: 420 604 453 223
E-mail: info@nemovitostiren.cz
pronájem
Komerční, Kanceláře a administrativní prostory
N00243
12.11.2025
osobní
275 m2
C - Úsporná
Makléř: Mgr. Renata Valicová
Telefon: 420 604 ...
E-mail: info@nem ...
Zobrazit celý kontaktTelefon: 420 604 453 223
E-mail: info@nemovitostiren.cz
Nemovitost nabízí
Nemovitosti REN
Do Dědiny 2079, Ostrava
Zobrazit kontakt na RK604 453 223
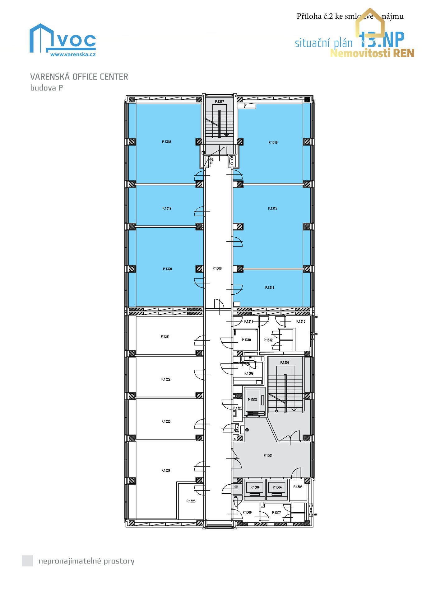
Moderní a atraktivní prostředí nabízí kancelářské prostory o celkové ploše 275 m2, které se nacházejí ve 13. patře administrativní budovy. Jedná se o oddělený kancelářský celek, který tvoří 4 kanceláře o velikosti cca 40 m2 a 2 kanceláře o velikosti cca 20 m2, doplněné o společné prostory - chodbu a sociální zázemí. Preferován je pronájem celého prostoru jako jednoho celku. Přístup do objektu je zajištěn schodištěm i výtahy. Bezpečnost budovy zaručuje non-stop bezpečnostní služba, kontrolovaný vstup přes recepci s nepřetržitým provozem a elektronické zabezpečení celého objektu. Kanceláře jsou klimatizované, světlé a nabízejí krásný výhled na Ostravu. Jsou vybaveny hliníkovými žaluziemi a rozvody PC sítí a internetu. V jedné z místností je umístěna kuchyňská linka. V okolí je veškerá občanská vybavenost, včetně nákupního centra Futurum, restaurací i služeb. Výborná je rovněž dopravní dostupnost - v blízkosti se nachází zastávky MHD (tramvaj, autobus, trolejbus) i přímé napojení na hlavní silniční tahy a dálnici. Cena nájmu: 265,83 Kč / m2 / měsíc/ bez DPH Služby a energie: 180 Kč / m2 / měsíc / bez DPH Pokud Vás tato nabídka zaujala, neváhejte mě kontaktovat. Těším se na Vás na společné prohlídce!
Pronájem kanceláře 210 m2, Ostrava, Masarykovo náměstí
Ve výhradním zastoupení majitele nabízíme pronájem atraktivních prostor s výhledem na Masarykovo náměstí rozsáhlého kancelářského prostoru ve 2.…
Kancelář, pronájem, Uhlířská, Slezská Ostrava, Ostrava, Ostrava-město
V zastoupení majitele Vám nabízíme k pronájmu kancelářské prostory, které se nacházejí v 1 patře udržované nemovitosti v blízkosti centra města…