Vybírejte z nabídky 38 690 nemovitostí od 826 realitních kanceláří
lupa mobilní menu
Přehled nemovitostí: pronájem byty > 1+kk > Praha Zpět na přehled nabídek

Pronájem bytu 1+kk s terasou, ulice Hartigova, Praha 3, po kompletní rekonstrukci, klimatizace

Prodejce

Makléř: Tomáš Klaban

Telefon: 604 900 ...

E-mail: klaban@a ...

Zobrazit celý kontakt

pronájem

Praha (okres Praha 3)

Hartigova

Byty, Byt 1+kk, garsonka

N13861

28.11.2025

5 (dům má 5 podlaží)

osobní

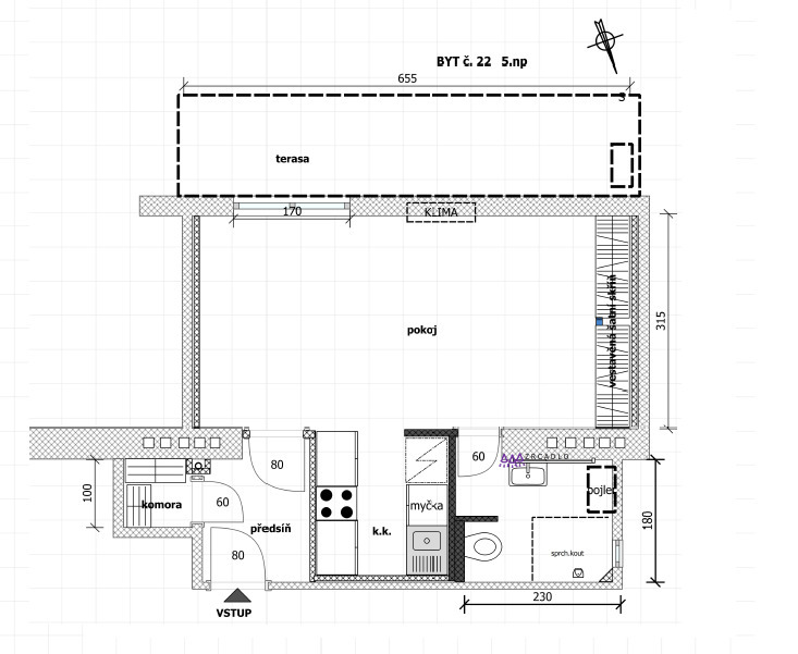
42 m2

33 m2

C - Úsporná

Cena: 17500 CZK / objekt / měsíc
Poznámka k ceně: + služby 650 Kč/os., energie (cca 1500); kauce 15000 Kč; provize RK 17000 Kč 1
Prodejce

Makléř: Tomáš Klaban

Telefon: 604 900 ...

E-mail: klaban@a ...

Zobrazit celý kontakt
Poslat dotaz k nabídce
Zásady používání osobních údajů

Nemovitost nabízí

/images/img-no-foto-small.png

Altoja Living, s.r.o.

Lomnického 1742/2a, Praha

Zobrazit kontakt na RK

Zobrazit všechny nabídky RK

Nabízíme Vám pronájem nově zrekonstruovaného bytu 1+kk s terasou a klimatizací v ulici Hartigova, Praha 3 - Žižkov. Byt se nachází ve zrekonstruovaném cihlovém domě (zateplený), 5. nadzemní podlaží (bez výtahu), celková užitná plocha 32,8 m2 + terasa 9,6 m2. Orientace bytu a terasy na jih. Byt je po celkové komplexní rekonstrukci a modernizaci - nové sádrokartony, zateplené, odhlučněné, nové štuky a obklady, nově vymalováno, totálně zateplené (jak strop a vnější stěna, tak fasáda k terase), topení tepelným čerpadlem / klimatizace (v zimě topí, v létě chladí) + záložní zdroj elektrické podstropní topení ovládané pokojovým termostatem: nízké náklady, vlastní regulace. Klimatizace je tepelné čerpadlo a proto je velmi vhodná a efektivní nejen pro chlazení v létě, ale také pro topení, kdy pracuje s topným faktorem až 4 (s poklesem venkovní teploty klesá). Ohřev teplé užitkové vody TUV bojler 80 l / vlastní regulace a nastavení na „noční“ proud, rekuperace (rozvod vzduchotechniky s nucenou výměnou vzduchu a s rekuperací - zpětným ziskem tepla - čerstvý vzduch bez větrání a beze ztrát tepla, nové velké balkonové dveře - trojsklo /tepelně a akusticky výborně izoluje/ s venkovní roletou ovládanou elektromotorem a s vnitřní žaluzií. Nové vstupní bezpečnostní dveře a nové interiérové dveře vč. kování, koupelna se sprchovým koutem s walk in, závěsným WC a umývadlem a s vestavěným zrcadlem a teplometem, příprava pro pračku (hl. 40 cm), kuchyňský kout s novou kuchyňskou linkou vč. spotřebičů - sklokeramická deska, digestoř s odtahem, elektrická vestavná trouba, myčka, LED pásek pro osvětlení pracovní plochy, místo pro chladničku a mikrovlnku. Dále nová šatní skříň v pokoji bílá s posuvnými dveřmi, komora s regály pod uzavřením a v každé místnosti vestavěná LED svítidla /nízká spotřeba. V místě velmi dobrá občanská vybavenost a zeleň, restaurace, kavárny, služby, tramvajová zastávka "Kněžská Luka" u domu (tram. č. 2, 9, 31, 25, 98) a bus č. 146 k metru Želivského, Kaufland cca 5min chůzí od domu. Parkování na ulici před domem. Vhodné pro 1-2 osoby, k nastěhování od 1. prosince. Majitel upřednostní zájemce bez zvířat. U inzerátu naleznete plánek bytu s možným rozmístěním nábytku (několik variant). Více informací u makléře.



Nahoru