Prodej rodinného domu 5+kk, 122 m2, pozemek 1048 m2, Cerhonice okres Písek
Makléř: Ing. J. Přibylová Denisa
Telefon: 226 259 ...
E-mail: synergy@ ...
Zobrazit celý kontaktTelefon: 226 259 498
E-mail: synergy@century21.cz
prodej
970975
25.11.2025
1
osobní
1 048 m2
122 m2
C - Úsporná
Makléř: Ing. J. Přibylová Denisa
Telefon: 226 259 ...
E-mail: synergy@ ...
Zobrazit celý kontaktTelefon: 226 259 498
E-mail: synergy@century21.cz
Nemovitost nabízí
Century 21 Synergy
Ke Štvanici 656/3, 180 00 Praha 8 - Karlín
www.century21.cz/kancelar-synergy
Zobrazit kontakt na RK
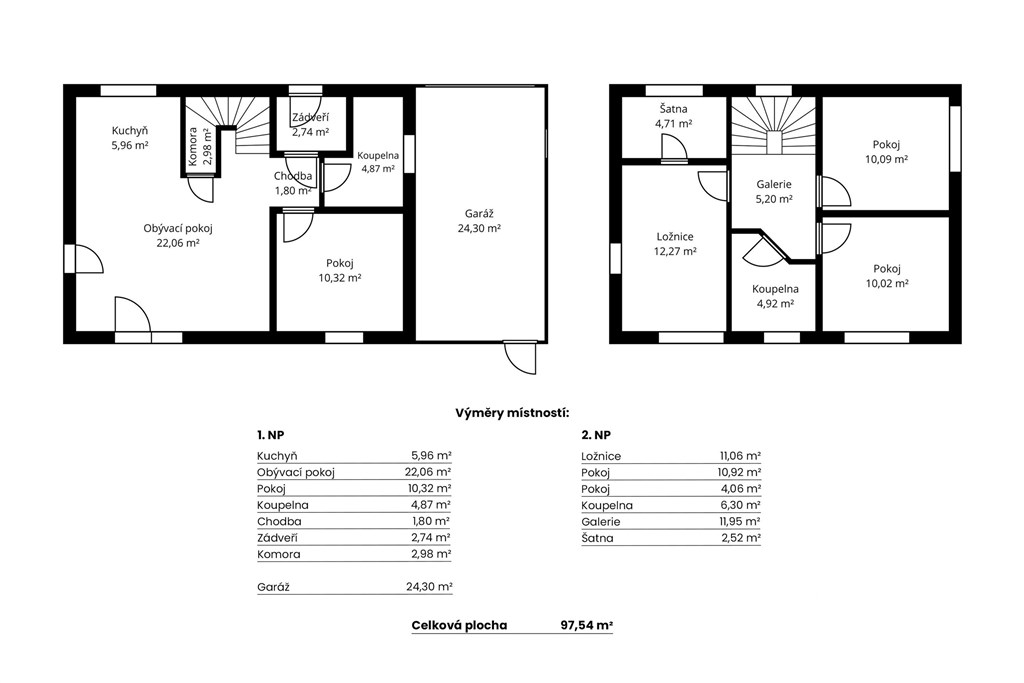
Hledáte dokonalé místo pro klidný rodinný život, kde se snoubí moderní design, kvalitní provedení a harmonické prostředí jihočeské krajiny? Právě pro vás je určena tato zcela nová, prostorná dřevostavba, situovaná v malebné obci Cerhonice. Tato moderní dřevostavba splňuje vysoké standardy současného bydlení - nabízí skvělou tepelnou úspornost, příjemné vnitřní klima a nadčasový design. Dům je kompletně nový a nezařízený, což umožňuje budoucím majitelům vytvořit si interiér přesně podle vlastních představ a životního stylu, jako inspirace slouží vizualizace místností. Dům je koncipován v dispozici 5+kk, obsahuje pět obytných místností, 2 koupelny, spíž plus kuchyň s jídelním prostorem, který je ideálním místem pro rodinné stolování. Obývací pokoj je dostatečně prostorný a díky velkým francouzským oknům je plný denního světla, což prostor činí velmi příjemným. V horním patře jsou 3 světlé pokoje z čehož 1 obsahuje vlastní šatnu. Nemovitost je situována na krásném, slunném pozemku o rozloze 1048 m2, jenž poskytuje dostatek prostoru pro rodinný život, volnočasové aktivity i budoucí zahradní úpravy. Dům je postaven z kvalitních materiálů, což zaručuje nízkou energetickou náročnost (energetický štítek C). Je vytápěný tepelným čerpadlem vzduch/vzduch, ohřev vody zajišťuje přímotopy zásobník Ariston Nuos Primo o objemu 200 litrů. V domě je také klimatizace, která může sloužit i jako doplňkový zdroj tepla. Kanalizace je řešena vlastní ČOV. Na pozemku je vrt a uvnitř domu je čistička vody. Cerhonice jsou malebná jihočeská obec obklopená přírodou, která nabízí klidné bydlení mimo ruch města. Zároveň zde najdete veškerou potřebnou občanskou vybavenost v dosahu několika minut jízdy. Pro rodiny s dětmi i milovníky přírody jde o ideální místo. Také dopravní dostupnost je velmi dobrá díky autobusovému spojení a blízkosti větších měst, jako je Písek. Pro ty, kteří hledají klidné a příjemné bydlení v srdci Jihočeského kraje, je tento dům ideální volbou. Relaxe v rozlehlé zahradě, moderní vybavení domu a dostatek prostoru pro život činí z tohoto domova opravdu výjimečnou nabídku na trhu.
Rodinný dům, prodej, Zámecká, Protivín, Písek
V zastoupení majitele nabízíme ke koupi rodinný dům v lokalitě města Protivín, ul. Zámecká. Nemovitost se nachází v docházkové vzdálenosti od centra…
Rodinný dům, prodej, Nová, Hradiště, Písek
V zastoupení majitele nabízíme k prodeji luxusní rodinný dům s dechberoucím výhledem na celé město Písek, na ul. Nová, Písek - Hradiště. Hledáte…