Pronájem bytu 3+kk, Konšelská, Libeň, 24900 Kč/měs, 62 m2, Praha
Makléř: Miloslava Kačerová
Telefon: 222 703 ...
E-mail: podpora@ ...
Zobrazit celý kontaktTelefon: 222 703 030
E-mail: podpora@idealninajemce.cz
pronájem
Konšelská
N6995
28.11.2025
2 (dům má 3 podlaží)
osobní
62 m2
62 m2
G - Mimořádně nehospodárná
Makléř: Miloslava Kačerová
Telefon: 222 703 ...
E-mail: podpora@ ...
Zobrazit celý kontaktTelefon: 222 703 030
E-mail: podpora@idealninajemce.cz
Nemovitost nabízí
Ideální nájemce
Lazaretní 925/9, 615 00 Brno
Zobrazit kontakt na RK222 703 030
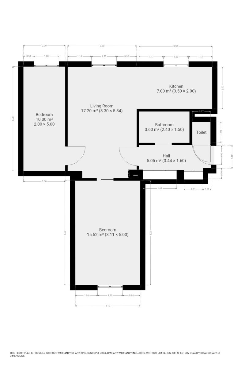
K dlouhodobému podnájmu nabízíme světlý byt o dispozici 3+kk v klidné lokalitě Praha 8 - Libeň. Byt o celkové výměře 62 m2 se nachází ve 2. patře udržovaného bytového domu v klidné ulici. Rezidenti mají možnost využívat příjemné posezení na společné zahradě za domem. Byt se nabízí volný k zařízení dle vlastních představ. Kuchyně disponuje lednicí s mrazákem, myčkou, elektrickou troubou, plynovou varnou deskou a digestoří. V obývací části je vestavěná knihovna a ve větší ložnici je šatní skříň. V koupelně je vana, umyvadlo, zrcadlo, koupelnová skříňka a pračka. Toaleta je umístěna samostatně. V předsíni jsou vestavěné skříně a botník. V okolí domu najdeme restaurace a kavárny, prodejny potravin, základní a mateřskou školu, zdravotnické zařízení s lékárnou, koupaliště Stírka, veřejnou zeleň (Park Pod Korábem, Thomayerovy sady, Lesopark Okrouhlík, Lesopark Bílá skála), městskou knihovnu, divadlo, sportoviště, cyklostezky atd. Pár minut chůze od domu jsou vzdáleny tramvajové zastávky Vosmíkových a U kříže, umožňující rychlé spojení na všechny linky metra. Parkování je možné na ulici (modrá zóna). Byt je volný k nastěhování ihned. Energetická třída: G (průkaz nedodán).
Pronájem bytu 3+kk, 81,8 m s balkonem Rezidence Parková čtvrť, Žižkov
Hledáte moderní a komfortní bydlení v jedné z nejrychleji se rozvíjejících částí Prahy? Nabízíme k pronájmu byt 3+kk v prestižním projektu Rezidence…
Pronájem zařízeného bytu: Praha 3 - Žižkov, Kubelíkova
Nabízíme k pronájmu nově zařízený byt s klimatizací o velikosti 3+kk v 5. patře kompletně zrekonstruovaného secesního domu s výtahem. Byt s plochou…