Vybírejte z nabídky 38 678 nemovitostí od 825 realitních kanceláří
lupa mobilní menu
Přehled nemovitostí: prodej domy > rodinné domy > Bohdalice - Pavlovice Zpět na přehled nabídek

Bohdalice-Pavlovice, RD k celkové rekonstrukci, zahrada - rodinný dům, Bohdalice - Pavlovice

Prodejce

Makléř: Mgr. Antonina Liashko

Telefon: 773 756 ...

E-mail: a.liashk ...

Zobrazit celý kontakt

prodej

Bohdalice - Pavlovice (okres Vyškov)

Domy, Rodinné domy

AE1428B004

28.11.2025

2

1 356 m2

neuvedeno

G - Mimořádně nehospodárná

Cena: 3499000 CZK / objekt
Poznámka k ceně: Celková cena je konečná, včetně právního servisu, provize, DPH a všech poplatků. Je však také možné 1
Prodejce

Makléř: Mgr. Antonina Liashko

Telefon: 773 756 ...

E-mail: a.liashk ...

Zobrazit celý kontakt
Poslat dotaz k nabídce
Zásady používání osobních údajů

Nemovitost nabízí

/loga_velka/7702.jpg

COLOSEUM NEMOVITOSTI s.r.o.

Květná 167/3, 603 00 Brno

www.coloseumreality.cz

Zobrazit kontakt na RK

Zobrazit všechny nabídky RK

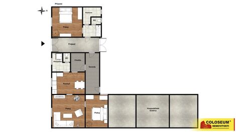
Exkluzivně nabízíme k prodeji řadový rodinný dům s velkým pozemkem v samém centru klidné malebné obce Bohdalice-Pavlovice. Plocha pozemku je (dle katastru nemovitostí) 1.356 m2, zastavěná plocha je přibližně 250m2. Nemovitost je určena k celkové rekonstrukci nebo demolici. Dům je nepodsklepený, je postaven ze smíšeného zdiva (pálená a nepálená cihla). Na pozemku jsou všechny inženýrské sítě (voda a elektřina jsou zavedeny do domu, plyn a kanalizace jsou před domem). Do domu je vchod i vjezd přes prostornou garáž/stodolu, která je průjezdná až do zahrady (což je ideální vzhledem k nutným stavebním úpravám domu). Zahrada za domem je kompletně oplocená. Dům byl původně koncipován jako dvougenerační, jsou zde samostatné vchody do bytových jednotek z průjezdu domu. Bytové jednotky jsou dispozičně řešeny jako 2+1. Pro představu přikládáme přibližný půdorys domu. Díky přibližné uliční šíři 20 metrů je nemovitost vhodná i jako investice. Obce Bohdalice-Pavlovice, která se nachází v srdci přírody, disponuje výbornou dostupností do okolních měst. Vyškov je vzdálený pouhých 15 km a Brno 30 km, což zajišťuje skvělé spojení s městským životem a pracovními příležitostmi. Dům se nachází v centru obce, kde najdete veškerou občanskou vybavenost mateřskou a základní školu, obchody, jídelnu, poštu či knihovnu. Obec také nabízí sportovní vyžití a krásné přírodní okolí, ideální pro procházky, cyklistiku a další aktivity. Tato lokalita je ideální pro ty, kteří hledají pohodlný život v klidném a přátelském prostředí, ale nechtějí se vzdát snadného přístupu do městského života. Dům je skvélé místo pro trvalé bydlení. Veškeré uvedené plochy jsou přibližné a mají orientační charakter. PENB nebyl dodán - proto uvádíme třídu G. Nemovitost lze financovat hypotečním úvěrem s jehož vyřízením Vám rádi pomůžeme. Pro více informací či domluvení prohlídky kontaktujte realitní makléřku.




Prodej rodinného domu Bohdalice-Pavlovice na Eurobydleni.cz


Nahoru