Prodej prostorného domu s variabilním využitím ve Svitavách, Svitavy
Makléř: Müllerová Alice
Telefon: 226 259 ...
E-mail: 4plus@ce ...
Zobrazit celý kontaktTelefon: 226 259 499
E-mail: 4plus@century21.cz
prodej
Tyrše a Fügnera
Komerční, Kanceláře a administrativní prostory
948897
osobní
750 m2
G - Mimořádně nehospodárná
Makléř: Müllerová Alice
Telefon: 226 259 ...
E-mail: 4plus@ce ...
Zobrazit celý kontaktTelefon: 226 259 499
E-mail: 4plus@century21.cz
Nemovitost nabízí
CENTURY 21 4Plus
Gorkého 754/3, 568 02 Svitavy
Zobrazit kontakt na RK
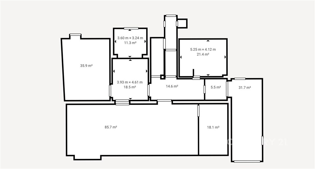
Při rychlém jednání možná sleva! Zde se vaše podnikatelské vize stanou skutečností! Tento rozlehlý objekt s podlahovou plochou přes 700 m2 a prostornou zahradou více jak 1300 m2 skýtá mnoho možností, jak ho využít. Dům je ideální například pro: ✅ Výstavbu moderních bytových jednotek ✅ Kombinaci bydlení a podnikání (ateliéry, kanceláře, showroomy) ✅ Sídlo firmy s dostatkem prostoru pro kanceláře i sklad ✅ Investiční příležitost - apartmány k pronájmu nebo ubytovací zařízení ✅ Rekonstrukci na rodinné bydlení s velkorysým zázemím Hlavní výhody? ✅ v zadní části domu je vydáno stavebné povolení na přístavbu k domu ✅ strategická poloha v centru Svitavy ✅ dostatek místa pro parkování či venkovní aktivity ✅ potenciálu pro komerční nebo soukromé objekty ✅ dům kompletně podsklepený Zkrátka tato nemovitost čeká na někoho, kdo ji dá nový život! Větší detail můžete video na videu, fotkách a virtuální prohlídce, každopádně vás ráda vezmu na osobní prohlídku. V ceně je veškerý právní servis, advokátní úschova a nejlepší financování. Co s touto nemovitostí uděláte vy, je pouze na vás, stačí se do toho pustit.
Prodej multifunkčního domu s mezonetovým bytem , 858m2 - Svitavy - Město
Multifunkční dům s mezonetovým bytem v historické části města Svitavy nyní nabízí výjimečnou investiční i podnikatelkou příležitost! Mezi hlavní…
Prodej budovy vhodné pro kanceláře i bydlení v centru Svitav
Nabízíme k prodeji prostorný dům o celkové užitné ploše 401 m2 nacházející se ve vyhledávané lokalitě nedaleko centra Svitav. Dům nabízí velkorysé…