Byt 2+kk, Postupice
Makléř: Veselská Martina
Telefon: 420 777 ...
E-mail: martina. ...
Zobrazit celý kontaktTelefon: 420 777 737 112
E-mail: martina.veselska@century21.cz
prodej
Blanická
954838
01.02.2026
1 (dům má 2 podlaží)
osobní
78 m2
78 m2
E - Nehospodárná
Makléř: Veselská Martina
Telefon: 420 777 ...
E-mail: martina. ...
Zobrazit celý kontaktTelefon: 420 777 737 112
E-mail: martina.veselska@century21.cz
Nemovitost nabízí
CENTURY 21 Birdie Reality - pobočka NextRound
28. října 813/248, 709 00 Ostrava
www.century21.cz/kancelar-birdie-reality-pobocka-nextround
Zobrazit kontakt na RK
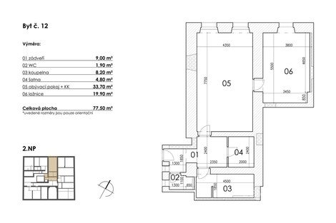
V unikátním rezidenčním projektu v Postupicích u Benešova nabízíme moderní byt 2+kk o velikosti 80,6 m2 ve 2. nadzemním podlaží. Projekt spojuje kouzlo historie s nejvyšším standardem současného bydlení. Každý byt je pečlivě navržen tak, aby poskytoval maximální pohodlí, dostatek světla a funkční uspořádání pro moderní život. Vhodné pro rodiny, jednotlivce i investory. Parkovací stání a možnost garáží přímo v areálu Dětské hřiště v bezpečném vnitrobloku Klidná lokalita s rychlou dostupností do Benešova i Prahy Kompletní občanská vybavenost v docházkové vzdálenosti (škola, školka, obchody, restaurace) Technické informace o stavbě: Rekonstrukce probíhá s respektem k historické hodnotě objektu a zároveň s důrazem na moderní standardy Konstrukce: Smíšené a cihelné zdivo, zdi o tloušťce 300-1000 mm, založené na kamenných pasech. Stropy: Dřevěné trámové, často zdvojené pro lepší akustiku a nosnost. Příčky: Porobeton (Ytong KLASIK) pro výbornou tepelnou a zvukovou izolaci. Vytápění: Teplovodní systém - podlahové topení. Vlastní elektrokotel 6 kW, umístěný v koupelně, chodbě nebo šatně. Ohřev vody: Elektrické akumulační bojlery (100-120 l) v každé jednotce. Společné prostory: Temperované elektrickými přímotopy na 15 °C. Napojení na inženýrské sítě: Nové přípojky na veřejný vodovod a kanalizaci v ulici Průběžná, napojení na silnoproudou elektřinu (ČEZ). Kanalizace dešťová: Řešena zasakováním a napojením na stávající systém. Přepokládaný termín dokončení: 6/2027 Začněte novou kapitolu v unikátním prostředí historického domu s duší a pohodlím moderního domova. Kontaktujte nás pro více informací nebo sjednání prohlídky!
Byt 2+kk
V unikátním rezidenčním projektu v Postupicích u Benešova nabízíme moderní byt 2+kk o velikosti 54,9 m2 ve 2. nadzemním podlaží. Projekt spojuje…
Byt 2+kk s předzahrádkou
Moderní byt s historickým nádechem - Postupice u Benešova V unikátním projektu v Postupicích u Benešova nabízíme moderní byt 2+kk o velikosti 68,4 m2…