Zavedené hospodářství s pozemky o velikosti 33224m2, Barchovice
Makléř: Vintr Patrik
Telefon: 777 946 ...
E-mail: patrik.v ...
Zobrazit celý kontaktTelefon: 777 946 694, 777 946 694
E-mail: patrik.vintr@century21.cz
prodej
Domy, Zemědělské usedlosti, statky a farmy
955316
3
osobní
33 224 m2
105 m2
G - Mimořádně nehospodárná
Makléř: Vintr Patrik
Telefon: 777 946 ...
E-mail: patrik.v ...
Zobrazit celý kontaktTelefon: 777 946 694, 777 946 694
E-mail: patrik.vintr@century21.cz
Nemovitost nabízí
CENTURY 21 Birdie Reality
Rumunská 18/22, 120 00 Praha 2
www.century21.cz/kancelar-birdie-reality
Zobrazit kontakt na RK
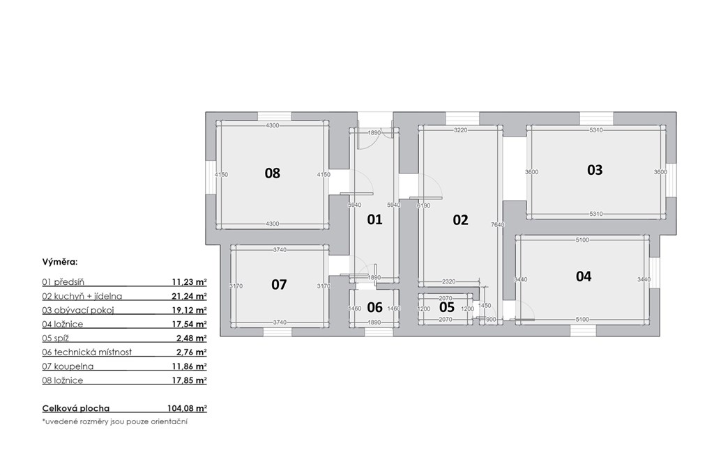
Nabízíme k prodeji připravené hospodářství s bohatou historií a s domovním číslem 4, který se nachází v Radlicích v obci Barchovice, PSČ 28163. Hospodářství na 33224m2 nabízí: Chlév pro přežvýkavce 24 boxy s napáječkami, jeslemi a elektřina na dojení. Chlév pro prasata s napáječkami a koryty. Přípravna krmiv. Králíkárna s osmi kotci. Zděný kurník. Dílna 100 m2. Stodola na uskladnění sena. Prostor na chov brojlerů cca 200 ks. Černá kuchyň s mrazákem 8m3 se zavedenou vodu a to včetně teplé. Mlékárna s registrací. Dostatek prostoru pro vytvoření stájí pro koně. Možnost Komerčního využití, např. svatební resort. Všechny střechy prošly nedávnou rekonstrukcí a jsou ve výborném stavu. Na rekonstrukci byly použity pálené tašky. Statek je nyní plně funkční a v zaběhlém stavu. Dům s celkovou užitnou plochou 105 m2 nabízí komfortní zázemí a lze jej díky přípravě v podkroví zdvojnásobit. Patro obytné nemovitosti je osazeno okny a připraveno pro vybudování dalšího obytného prostoru. Také se zde nad rámec užitné plochy nachází 1 500 m2 nebytového prostoru, který může sloužit pro různé využití, například jako další prostor k bydlení, sklad, nebo prostory pro jiné komerční využití. Dům pro bydlení je jednopodlažní s útulnými prostorami koncipovanými jako 3+1, tím je ideální jak pro rodiny s dětmi, tak pro páry. Nechybí ani špajzka a oddělená toaleta s koupelnou. Veškeré pokoje jsou neprůchozí. Nemovitost je částečně zařízena a nový majitel tak bude mít možnost dovybavit si interiér podle vlastních možností a představ. Topení je řešeno kamny s výměníkem a zároveň kondenzačním kotlem na plyn. Velkou výhodou této nemovitosti jsou dva sklepy, každý o ploše 15 m2, které vám poskytnou další úložný prostor pro skladování úrody, zásob a nebo vína. U domu najdete také prostornou terasu, která vyzývá k odpočinku. Statek také nabízí nejrůznější zákoutí, které můžete přizpůsobit dle vlastních představ. Nechybí ani sauna. Důležité je zdůraznit, že nemovitost disponuje vlastní studnou s UV čističkou, což je zajímavou alternativou, jak vyřešit zásobování vodou. Studna byla zbudována, aby obstála velký odběr vody dobytkem. Vodovod je v řešení a bude zbudován v následujících letech. Kanalizace je řešena prostřednictvím jímky 8m3. Na statek navazuje 3ha louka, která je součástí prodeje. Co se zemědělské techniky týče, lze se lze domluvit na jejím přenechání. Nemovitost lze financovat pomocí hypotečního úvěru. S celým procesem vyřízení hypotéky Vám rád pomůže náš finanční specialista. Tato lokalita pár kilometrů od města Kolín ve středočeském kraji je ideální pro ty, kteří hledají klid a zároveň dobré dopravní spojení. Uhříněves je vzdálena 35 km. V případě zájmu či dotazů neváhejte kontaktovat makléře.
Zemědělská usedlost Březinka - Kokořín, 9 289 m2 pozemků, dům + hospodářské budovy
Usedlost Březinka u Kokořína představuje místo, kde historie, prostor a příroda tvoří dokonalou rovnováhu. Dnes zde stojí funkční areál s obytným…
Zemědělská usedlost se třemi domy a velkým pozemkem Břežany - Lešany
Patříte k těm, kteří si dokáží s očištěným domem na cihlu poradit a využít ho k rekonstrukci? Nebo hledáte stavební pozemek? Na tomto pozemku leží…