Prodej nemovitosti v obci Karle
Makléř: Hubáček Karel
Telefon: 420 602 ...
E-mail: karel.hu ...
Zobrazit celý kontaktTelefon: 420 602 278 512
E-mail: karel.hubacek@century21.cz
prodej
Komerční, Areály pro podnikání
959685
996 m2
G - Mimořádně nehospodárná
Makléř: Hubáček Karel
Telefon: 420 602 ...
E-mail: karel.hu ...
Zobrazit celý kontaktTelefon: 420 602 278 512
E-mail: karel.hubacek@century21.cz
Nemovitost nabízí
CENTURY 21 Premium
Zlatnická 1582/10, 110 00 Praha 1
www.century21.cz/kancelar/premium/
Zobrazit kontakt na RK603 892 407
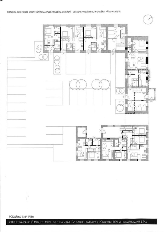
Dovolujeme si Vám exkluzivně nabídnout nemovitost vhodnou ke kompletní rekonstrukci v obci Karle. Tento objekt z roku 1919 nabízí několik možností budoucího využití. Je možné zde mít místo pro výstavbu soukromého sídla nebo k výstavbě ubytovacích jednotek. Možnost také vybudovat bytový dům. Samotné umístění nemovitost obklopené zelení zaručuje, po jeho citlivé rekonstrukci, vyjímečnost celého objektu. Velikostně je možné vybudovat až 18 bytových jednotek o velikosti 1+kk a 2+kk, v přízemí s vlastními předzahrádkami, v patře díky volné půdě ke zbudování galérií v každém bytě. V případě zájmu pomůžeme se zajištěním projektové dokumentace. Obec Karle je vzdálená 10 km od města Svitavy a 14 km od Poličky. V obci jsou dva rybníky, Horní a Dolní, nacházející se na říčce Loučná, která pramení na samém začátku obce Karle. Obec byla pojmenovaná, po dnes již zaniklém, hradu Karle. V obci je obecní úřad, smíšený obchod Coop, Mateřská školka, hasičská zbrojnice. Dopravní dostupnost do města Litomyšl, Svitavy a do Poličky zajišťuje příměstská autobusová doprava od společnosti BusLine Pardubicko a.s. s intervaly každých cca 50 minut. Tato nemovitosti je určena pro toho kdo rád tvoří nové věci a má odvahu vdechnout nový život tomuto domu tak, aby byl následně chloubou celé obce. Rádi Vám poskytneme více informací, domluvte si prohlídku ještě dnes.
Prodej projektu RD, pozemek o celkové výměře 1.263 m2, Jevíčko
Jevíčko je městem s neuvěřitelně bohatou historií. Až sem došli Římané pod vedením Marka Aurelia. Po celém městě budete potkávat barokní sochy a…
Historický měšťanský dům na náměstí - Moravská Třebová, čp. 114
Adresa, která se neokouká: měšťanský dům na náměstí Moravské Třebové Nabízíme dům, který má to, co novostavba nikdy mít nebude - genius loci…