Nízkoenergetický rodinný dům 4+kk s pozemkem 445 m2 v klidné části Narysova
Makléř: Ing. Holanová Diana
Telefon: 420 734 ...
E-mail: diana.ho ...
Zobrazit celý kontaktTelefon: 420 734 799 274
E-mail: diana.holanova@century21.cz
prodej
954076
06.01.2026
2
osobní
445 m2
118 m2
A - Mimořádně úsporná
Makléř: Ing. Holanová Diana
Telefon: 420 734 ...
E-mail: diana.ho ...
Zobrazit celý kontaktTelefon: 420 734 799 274
E-mail: diana.holanova@century21.cz
Nemovitost nabízí
CENTURY 21 Real4Life
Sezemická 2757/2, 193 00 Praha 20
www.century21.cz/kancelar-real4life
Zobrazit kontakt na RK
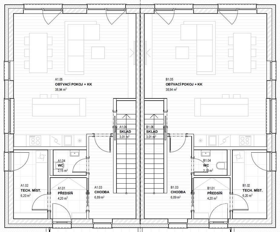
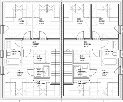
Moderní nízkoenergetický dům 4+kk se zahradou a pracovnou, v klidné lokalitě u Příbrami V projektu Zelená Narysov nabízíme k prodeji novostavbu prostorného rodinného domu 4+kk o podlahové ploše 124,49 m2 s pozemkem o velikosti 445 m2. Jednotka je součástí moderního dvojdomu, ve kterém má každá bytová jednotka vlastní vstup, soukromou oplocenou zahradu a dvě parkovací místa na zpevněné ploše. Dům je navržen v nízkoenergetickém standardu, který kombinuje vysoký komfort a dlouhodobou úsporu provozních nákladů. Součástí ceny je tepelné čerpadlo vzduch-voda napojené na podlahové vytápění, fotovoltaický systém, plastová okna s trojsklem a venkovními roletami, dokončené koupelny, finální podlahy, interiérové dveře, oplocení a parkování na vlastním pozemku. Dispozice domu je navržena s důrazem na praktické členění a rodinné fungování - vzdušný obývací pokoj s kuchyňským koutem má přímý vstup na terasu a zahradu. Dále jsou zde tři ložnice, samostatná toaleta, koupelna s vanou a technická místnost. Velká hlavní ložnice nabízí příjemný bonus v podobě vlastní koupelny se sprchovým koutem, šatny a oddělené pracovny - ideální kombinace pro pohodlné soukromí i home office. Součástí projektu je možnost dokončení domu na klíč přesně dle vašich představ, včetně kuchyňské linky, vestavěného nábytku nebo terasy. Zelená Narysov je moderní rezidenční projekt situovaný v malebném prostředí nedaleko brdských lesů. Klidná atmosféra menší obce se zde přirozeně doplňuje s výbornou dostupností do Příbrami i Prahy. Lokalita se postupně rozvíjí - v budoucnu zde vznikne školka, dětské hřiště i nabíjecí stanice pro elektromobily, což dále zvyšuje kvalitu života v místě a přirozenou hodnotu vaší nemovitosti. Tento dům je ideální volbou pro rodinu, která hledá moderní a úsporné bydlení s dostatkem prostoru, soukromí a přírody. Rádi vás provedeme osobně. Kontaktujte nás pro více informací nebo domluvení prohlídky.
Nízkoenergetický rodinný dům 4+kk s pozemkem 568 m2 v klidné části Narysova
Moderní nízkoenergetické bydlení 4+kk se zahradou v přírodě, pár minut od Příbrami V rámci projektu Zelená Narysov nabízíme k prodeji jednotku 4+kk…
Prodej, Rodinný dům, Narysov
Nabízíme nezávaznou prohlídku zachovalého RD v obci Narysov, v části obce Výfuk, připojeného na elektřinu, obecní tlak. kanalizaci i na obecní…