Luxusní 5+kk/L s terasou a zahradou, kompletně zařízený, v moderní čtvrti Chodov, Praha 4, s výtahem a garáží, ideální pro rodinu.
Makléř: Vilímková Jana
Telefon: 420 602 ...
E-mail: jana.vil ...
Zobrazit celý kontaktTelefon: 420 602 846 940
pronájem
U kolonie
961143
05.01.2026
3
osobní
70 m2
250 m2
B - Velmi úsporná
Makléř: Vilímková Jana
Nemovitost nabízí
Vilímková reality
Exnárova 1029/7, Praha
Zobrazit kontakt na RKjana.vilimkova@vilimkovareality.cz
602 846 940
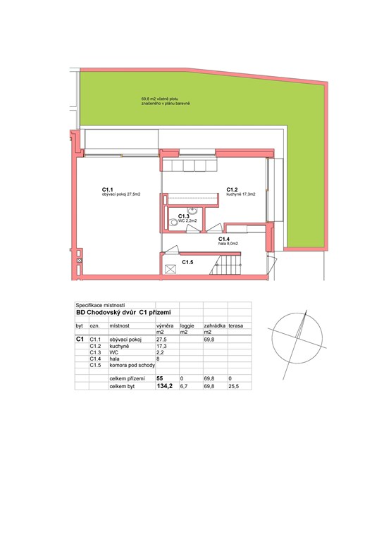
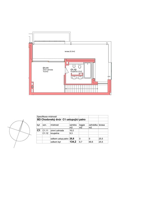
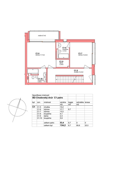
K pronájmu nabízíme exkluzivní 5+kk v prestižní lokalitě Praha 4, Chodov. Tento prostorný byt s podlahovou plochou 151 m2 a užitnou plochou 250 m2 se pyšní moderním vybavením a vysoce kvalitním provedením. Byt se nachází v prvním až třetím podlaží cihlové budovy s výtahem, postavené v roce 2014, a nabízí vše, co moderní bydlení vyžaduje. Jeho dispozice zahrnuje tři ložnice, z nichž každá má vlastní koupelnu, prostorný obývací pokoj propojený s plně vybavenou a moderní kuchyní, samostatnou toaletu, chodby a šatnu. Kuchyň je vybavena moderními spotřebiči, jako je varná deska, vestavěná lednice s mrazákem, mikrovlnná trouba, elektrická trouba a myčka nádobí. Obývací pokoj je prostorný, s přímým vstupem na zahradu s terasou o ploše 70 m2, která poskytuje ideální místo pro trávení společných chvil na čerstvém vzduchu. Ložnice v posledním podlaží navíc disponuje terasou o velikosti 25,5 m2, která nabízí nádherný výhled do sousedního parku. Byt dále disponuje uzavřenou lodžií (6,7 m2) a sklepem (4 m2). Součástí bytu jsou také dvě parkovací stání v garáži. Byt se pronajímá kompletně zařízený nábytekem. Měsíční nájem bytu činí 70 000 Kč, vybavení domu za 20 000 Kč měsíčně. Kauce je stanovena na trojnásobek měsíčního nájmu a skládá se při podpisu smlouvy. Provize za zprostředkování činí výši jednoho měsíčního nájmu. V ceně nájmu nejsou zahrnuty poplatky SVJ ve výši 8 100 Kč a poplatky za spotřebu elektrické energie ve výši 1 200 Kč. Poloha nabízí kompletní občanskou vybavenost školy, školky, obchody, restaurace a zdravotnická zařízení jsou na dosah. Dopravní dostupnost je vynikající, v blízkosti se nachází autobusy a metro C, což zajišťuje snadný přístup do ostatních částí Prahy. Tento byt je ideální volbou pro ty, kteří hledají komfortní a reprezentativní bydlení v klidné části Prahy s rychlým spojením do centra města. Byt je k dispozici k pronájmu dlouhodobě (minimálně na rok) a je již kompletně zařízen, připraven k okamžitému nastěhování. Objekt se nachází v městské části Chodov a nabízí všechny přednosti života ve velkoměstě, přičemž si zachovává pocit soukromí a pohodlí. Přijďte se přesvědčit o kvalitách tohoto jedinečného bytu, který může být brzy vaším novým domovem.
Novostavba ŘRD 7+kk + terasa + balkon + garáž, 220 m2, Praha 4 - Háje, přímo u Hostivařské přehrady.
Novostavba ŘRD 7+kk + terasa + balkon + garáž a parkovací stání v domě - užitná plocha 220 m2, který se nachází na pozemku o celkové výměře 132 m2 v…
Pronájem domu s bazénem: Praha 6, Nebušice, Nebušická
Nabízíme k pronájmu reprezentativní rodinnou vilu s dispozicí 5+1 ve vyhledávané lokalitě v Praze 6 - Nebušice. Vila je součástí uzavřeného…