Prodej, Rodinný dům, Ostrov
Makléř: David Keilhauer
Telefon: 736 504 ...
E-mail: keilhaue ...
Zobrazit celý kontaktTelefon: 736 504 780
E-mail: keilhauer@dumrealit.cz
prodej
650263
02.11.2025
2
osobní
1 746 m2
156 m2
B - Velmi úsporná
Makléř: David Keilhauer
Telefon: 736 504 ...
E-mail: keilhaue ...
Zobrazit celý kontaktTelefon: 736 504 780
E-mail: keilhauer@dumrealit.cz
Nemovitost nabízí
Dumrealit.cz
Svornosti 8, 150 00 Praha 5
Zobrazit kontakt na RK
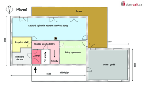
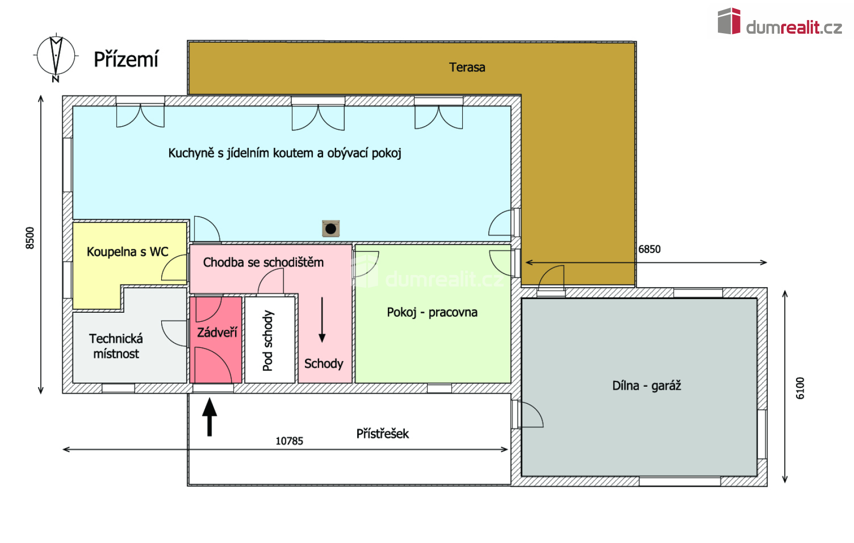
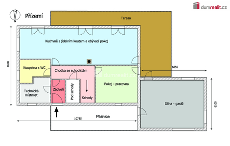
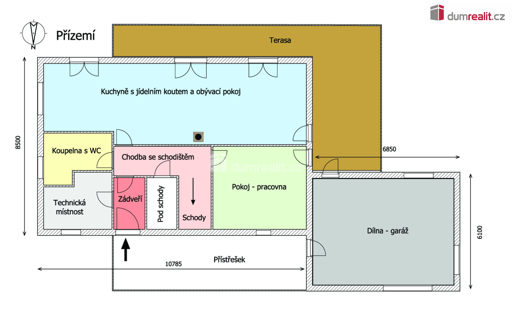
Dumrealit.cz Vám zprostředkuje prodej dvoupodlažního rodinného domu (dřevostavby) v podkrušnohorském městě Ostrov, místní části Vykmanov, 15 km od Karlových Varů. Dům o velikosti 5+kk (zast. plocha cca 134 m2, podlahová plocha domu cca 156 m2, podlahová plocha dílny cca 42 m2) je postaven na rovinatém pozemku o výměře 1.746 m2 a jeho orientace umožňuje sluneční svit od východu po západ. Hlavní stavba je spojena s dílnou, která má samostatné vstupy a vjezd a lze ji využít také jako garáž. V přízemí je vstup do domu se zádveřím, chodbou a schodištěm do patra, technická místnost, koupelna s WC, pokoj, kuchyňský kout s jídelnou a obývací pokoj s krbovými kamny. Z obývacího pokoje lze vyjít přímo na venkovní dřevěnou terasu, která je v západní části zastřešena. Hlavní vstup do domu je chráněn zastřešenou přístavbou. V 1. NP je chodba, samostatná koupelna, samostatné WC, komora a tři pokoje, z nichž dva jsou oddělené dřevěnými posuvnými dveřmi, takže se dají propojit v jeden velký. Veškerá okna v celém objektu jsou plastová s trojskly, v horním patře mají některá okna venkovní mechanické žaluzie. Součástí vybavení domu je technologické zázemí (tepelné čerpadlo, bojler) a kuchyňská linka se spotřebiči (indukční deska, el. trouba, vestavěná mikrovlnná trouba, myčka, digestoř). Vytápění domu a ohřev teplé vody je zajištěn tepelným čerpadlem, podlahové topení je v celém přízemí (včetně dílny) a všech koupelnách a WC. V obytných pokojích jsou radiátory. Druhým zdrojem tepla jsou krbová kamna v obývacím pokoji. Dodávka studené vody je z veřejného vodovodního řádu, kanalizace je napojena do domovní čistírny odpadních vod (DČOV). V současné době probíhají přípravy k realizaci napojení do obecního veřejného kanalizačního řádu a rekonstrukce příjezdové komunikace. Na zahradě je vlastní studna pro zalévání zahrady. Parkování je možné na pozemku nebo před vjezdem k domu. Stavba je nízkoenergetická a dle platné legislativy je zařazena do energetické třídy B. Tuto nemovitost lze hradit hypotečním úvěrem, který Vám rádi pomůžeme vyřídit. Ev. číslo: 650263. Energetický štítek: B (58 kWh/m2/rok).
Prodej, Rodinný dům, Mladá Boleslav
Pokud jste rodina nebo se teprve chystáte, tak vás tato nabídka bude určitě zajímat. V klidné lokalitě Láskov, která je součástí obce Debř,…
Prodej, Rodinný dům, Spálené Poříčí
Ve výhradním zastoupení Vám nabízíme jedinečnou nabídku prodeje dvou nových, cihlových, řadových domů ve Spáleném Poříčí. Projekt bydlení - BYDLENÍ…