Prodej, Byt 2+kk, Horní Blatná
Makléř: Martina Filipová
Telefon: 721 500 ...
E-mail: filipova ...
Zobrazit celý kontaktTelefon: 721 500 400
E-mail: filipova@dumrealit.cz
prodej
Horní Blatná (okres Karlovy Vary)
náměstí Sv. Vavřince
651559
05.01.2026
3 (dům má 4 podlaží)
osobní
60 m2
60 m2
F - Velmi nehospodárná
Makléř: Martina Filipová
Telefon: 721 500 ...
E-mail: filipova ...
Zobrazit celý kontaktTelefon: 721 500 400
E-mail: filipova@dumrealit.cz
Nemovitost nabízí
Dumrealit.cz
Svornosti 8, 150 00 Praha 5
Zobrazit kontakt na RK
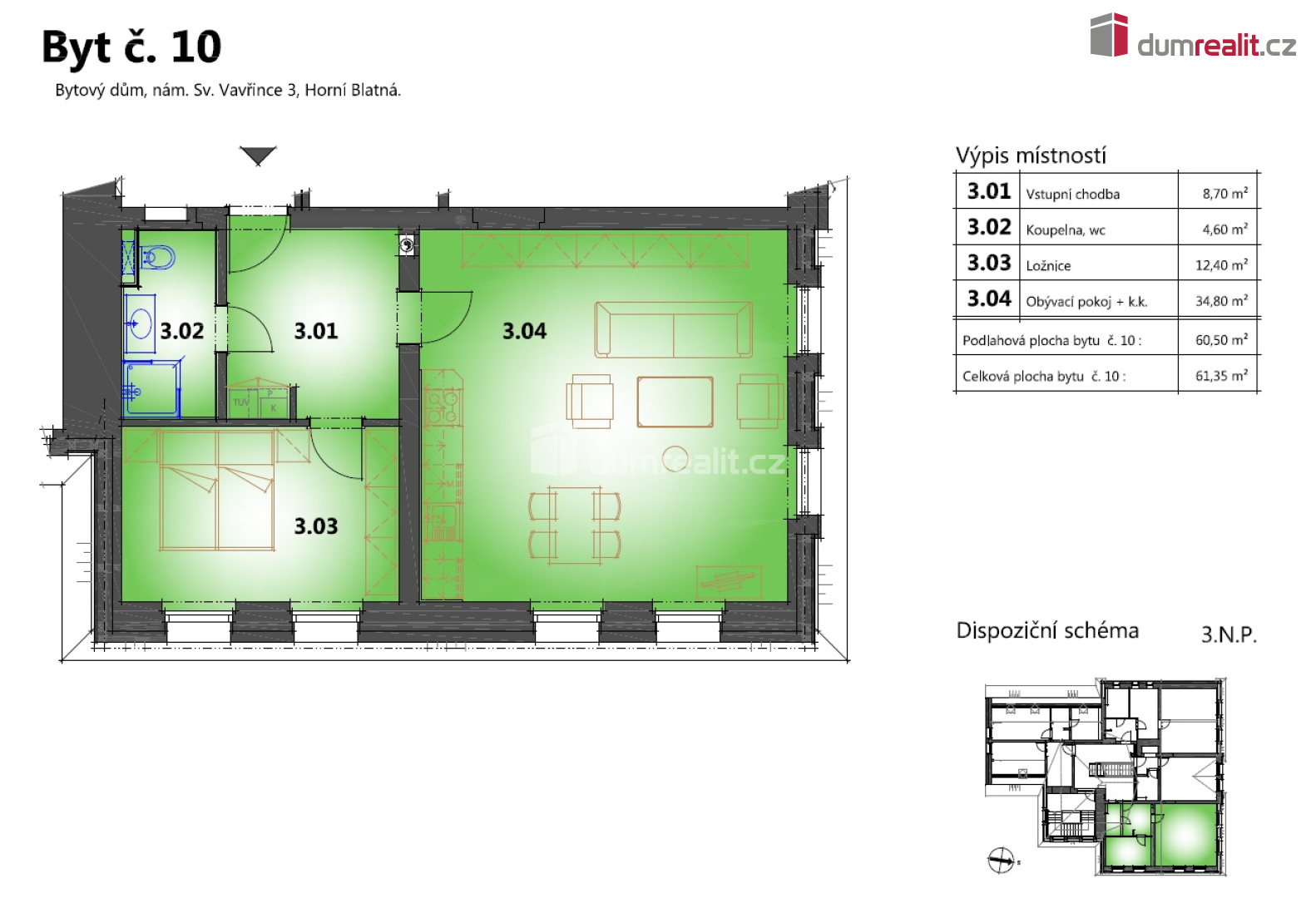
Dumrealit.cz Vám zprostředkuje prodej apartmánů na náměstí Sv. Vavřince v Horní Blatné, které se nachází v blízkosti několika lyžařských areálů jako je Plešivec, Potůčky nebo Klínovec. Apartmán číslo 10. se nachází v druhém patře, je o velikosti 60,5 m2 s výhledem na náměstí a kostel Sv.Vavřince. Dispozice bytu 2+KK. Všechny apartmány jsou vybaveny sanitární keramikou v koupelnách, sprchovým koutem Walk-in, podlahovou krytinou a to v kombinaci velkoformátové dlažby a plovoucí podlahy v dekoru dřeva, obložkami, interiérovými a vstupními dveřmi. Součástí jsou také nádherné společné prostory a to včetně sklepního prostoru s možností posezení. Vytápění apartmánů je elektrické s dálkovým ovládáním s připojením na Wi-Fi. V apartmánovém domě se nachází 12 jednotek od 1+KK až po 3+KK různých podlahových výměr. Ke každému apartmánu patří jedno soukromé parkovací místo hned u domu a jedna sklepní kóje, vše je již započítáno v uvedené ceně. Několik apartmánů je již prodáno. Izolant obvodových stěn 16-18cm polystyrenové dílce a 28cm minerální vlna v podkrovní části domu. V uvedené ceně je započítána kuchyňská linka se spotřebiči. Nemovitost se nachází přímo na náměstí s výhledem na hory a kostel Sv. Vavřince. Koupě apartmánu je ideální také jako investice, kdy jsou Krušné hory celoročně navštěvovány turisty a Horní Blatná patří svým umístěním mezi nejvíce vyhledávané. V blízkosti apartmánu se nachází Blatenský vrch, Vlčí jámy a mnoho turistických a cyklo tras. Nemovitost s možností odpočtu DPH z uvedené kupní ceny. Doporučuji nezávaznou prohlídku objektu s možností vybrat si právě ten VÁŠ apartmán. Ev. číslo: 651559. Energetický štítek: F
Prodej, Byt 2+kk, Horní Blatná
Dumrealit.cz Vám zprostředkuje prodej apartmánů na náměstí Sv. Vavřince v Horní Blatné, které se nachází v blízkosti několika lyžařských areálů jako…
Prodej, Byt 2+kk, Horní Blatná
Dumrealit.cz Vám zprostředkuje prodej apartmánů na náměstí Sv. Vavřince v Horní Blatné, které se nachází v blízkosti několika lyžařských areálů jako…