Rodinný dům 6+1 Hořovice, vnitřní bazén, sauna, posilovna, dvougaráž, 495 m2 plochy+1070 m2 pozemek
Makléř: Jiří Šimon
Telefon: 602 304 ...
E-mail: jirisimo ...
Zobrazit celý kontaktTelefon: 602 304 070
E-mail: jirisimon@jirisimon.cz
prodej
Lipová
N00391
3
osobní
1 070 m2
neuvedeno
G - Mimořádně nehospodárná
Makléř: Jiří Šimon
Telefon: 602 304 ...
E-mail: jirisimo ...
Zobrazit celý kontaktTelefon: 602 304 070
E-mail: jirisimon@jirisimon.cz
Nemovitost nabízí
ORANGE PROPERTY s.r.o.
Kaprova 42/14, Praha
Zobrazit kontakt na RK
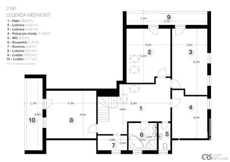
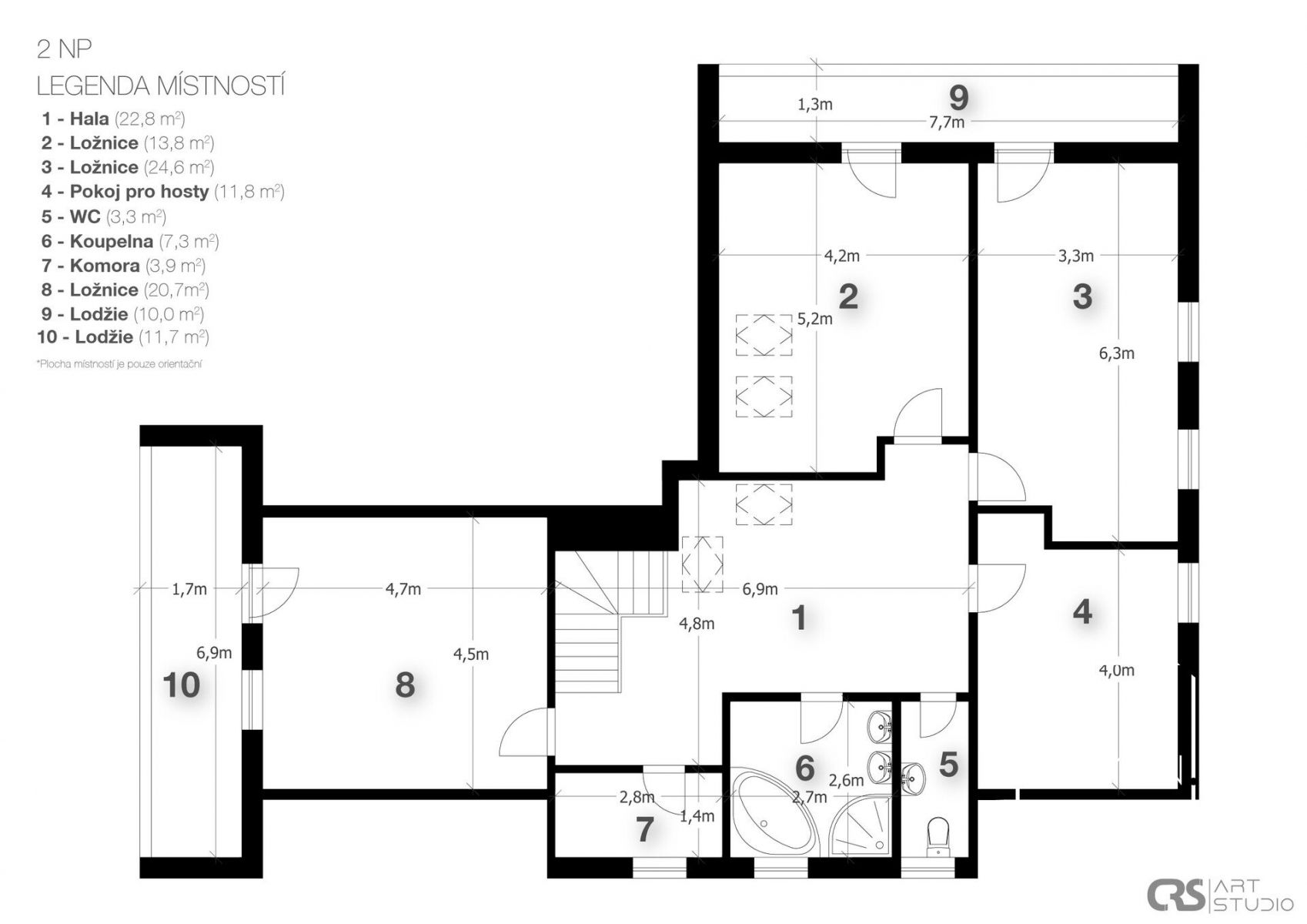
Na prodej rodinný dům v Hořovicích v krásné rezidenční čtvrti v ulici Lipová 1433/11 s dispozicí 6+1, dvougaráží, terasou, vnitřním bazénem, posilovnou, saunou a krásnou udržovanou zahradou. Obytná plocha domu je 275 m2 + užitná plocha je 220 m2 a stojí na pozemku 1070 m2. Jedná se o prodej těchto nemovitých věci: Rodinný dům č.p. 1433/11 a pozemek parc. č. 92/1; 92/10; 92/11 v obci Hořovice, okres Beroun, katastrální území Velká Víska. Rodinný dům je samostatný objekt. Má 2 nadzemní podlaží a 1 částečně podzemní podlaží. V domě je půda. Dům je postaven částečně z cihlové konstrukce a částečně z tvárnic. Základy jsou betonové izolované. Tloušťka obvodové konstrukce činí 36 cm + zateplení z polystyrenu. Stropy jsou železobetonové montované, střecha je valbová, krytinu tvoří betonová taška a klempířské prvky jsou měděné a plechové. Vnější omítky jsou latexové. Měsíční náklady na kompletní provoz domu činé díky kvalitnímu zateplení, instalaci tepelného čerpadla a fotovoltaické elektrárny pouhých 6.000,- Kč / měs. Dům byl postaven v roce 1998. V roce 2001 proběhla rekonstrukce zateplení pláště celková. V roce 2010 byla provedena instalace klimatizace a trávníkové závlahy. V roce 2022 byl vybudován nový zdroj vytápění tepelným čerpadlem, přičemž byla zachována možnost vytápění plynovým kotlem. Dále byla instalována fotovoltaická elektrárna 9,9 kWp s Aku 10,2 kWh a Wallbox 22 kW na nabíjení elektromobilu v garáži. Stav objektu lze charakterizovat jako velmi dobrý bez vad a vždy perfektně udržovaný. Rodinný dům byl postaven z velmi kvalitních materiálů a je ve velmi zachovalém stavu. Podlahy, dveře, obložky, kuchyně jsou z masivního dřeva. Kuchyňská deska je žulová, stejně jako radiátory a parapety v obývacím pokoji. Vybavení horní koupelny je z imitace kamene. Dům má nadstandardní příslušenství vnitřní bazén s vířivkou, sauna, posilovna, tělocvična. Dům má přípravu na možnost rozdělení na 2 bytové jednotky v každém patře jednu. Ve městě je kompletní občanská vybavenost vč. nemocnice. Hořovice jsou umístěny u dálnice D5 s dostupností 20 km do Berouna, 45 km do Plzně a 42 km od metra Zličín v Praze.
Prodej nových moderních řadových RD v Hořovicích
Nabízíme moderně pojaté řadové rodinné domy, které vynikají praktickým řešením půdorysu. Domy o dispozici 5+kk s obytnou plochou 116m2 jsou navrženy…
Nabízíme k prodeji rodinný dům v Hořovicích 164 m2
Nabízíme k prodeji patrový rodinný dům v centru Hořovic. Tato řadová nemovitost o užitné ploše 164 m2 a celkové ploše pozemku 231 m2 je ideální…
Prodej rodinného domu Hořovice na Eurobydleni.cz