Prodej rodinného domu, 165 m2, k rekonstrukci, se schváleným stavebním projektem v Bratříkově, Pěnčín
Makléř: Řehák Vladimír
Telefon: 420 226 ...
E-mail: synergy@ ...
Zobrazit celý kontaktTelefon: 420 226 259 498
E-mail: synergy@century21.cz
prodej
Pěnčín (okres Jablonec nad Nisou)
965087
26.11.2025
2
osobní
1 009 m2
165 m2
G - Mimořádně nehospodárná
Makléř: Řehák Vladimír
Telefon: 420 226 ...
E-mail: synergy@ ...
Zobrazit celý kontaktTelefon: 420 226 259 498
E-mail: synergy@century21.cz
Nemovitost nabízí
Century 21 Synergy
Ke Štvanici 656/3, 180 00 Praha 8 - Karlín
www.century21.cz/kancelar-synergy
Zobrazit kontakt na RK
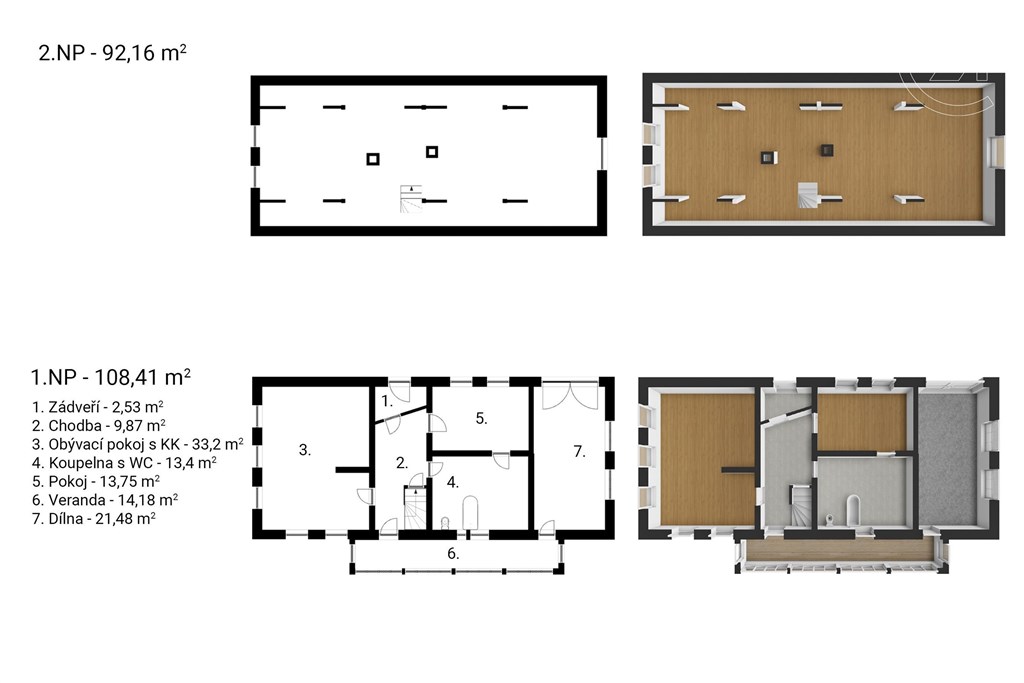
Tento dům a nového majitele čeká rekonstrukce. Pro pohodlný průběh nechal současný majitel vytvořit kompletní projekt, který počítá s exteriérovými a interiérovými úpravami domu. V rámci obálky domu zateplení, novou střechu, ale i přesunutí vstupu do domu, aby bylo vše pohodlné a odpovídalo moderním standardům bydlení. Přibylo parkovací stání a je počítáno s vybudování čističky odpadních vod, stejně tak i tepelného čerpadla. Interiér je vyprojektován pro pohodlné bydlení čtyřčlenné rodiny. Dá se říci, že nezůstal kámen na kameni a mění se tak dispozice jak prvního, tak i druhého nadzemního podlaží. V projektu je kladen důraz na klidovou část domu orientovanou v druhém nadzemním podlaží a společný prostor v přízemí. K tomu slouží i propojení jídelny s kuchyňskou linkou se zamýšleným výhledem do zeleně a zbylo místo i na společenskou místnost. Pokud nový majitel dodrží navrhovaný postup a technologie, je energetická náročnost budovy vypočítána na druhou nejlepší třídu, tedy B. Statika objektu bez závažných vad. Zahrada náležící k domu má přes tisíc metrů a díky svažitému profilu terénu, lze vybudovat moderní kaskádové terasy. Noví majitelé mají možnost čerpat z dotačních programů na rekonstrukci nemovitosti. Schválený projekt je součástí prodeje tohoto domu. Rád jej poskytnu na prohlídce tohoto domu, kde zároveň vyřešíme detaily financování a projdeme veškeré náležitosti a možnosti této nemovitosti. Těším se na viděnou, Vladimír Řehák.
Prodej rodinného domu v Pěnčíně - Krásná
Krásný srubový dům s dispozicí 6+kk a užitnou plochou cca 240 m2 a velkorysým pozemkem o rozloze 2434 m2. Tento dům je ideálním domovem pro ty, kdo…
Prodej rodinného domu, 323 m2, Pěnčín
Prodej prostorného domu po rekonstrukci z roku 2022 v klidné části obce Pěnčín u Jizerských hor. Dům nabízí moderní a úsporné bydlení díky tepelnému…