Prodej, Byt 3+1, Všeradice
Makléř: Martin Kareš
Telefon: 724 322 ...
E-mail: kares@du ...
Zobrazit celý kontaktTelefon: 724 322 483
E-mail: kares@dumrealit.cz
prodej
652478
03.11.2025
3 (dům má 4 podlaží)
osobní
84 m2
84 m2
G - Mimořádně nehospodárná
Makléř: Martin Kareš
Telefon: 724 322 ...
E-mail: kares@du ...
Zobrazit celý kontaktTelefon: 724 322 483
E-mail: kares@dumrealit.cz
Nemovitost nabízí
Dumrealit.cz
Svornosti 8, 150 00 Praha 5
Zobrazit kontakt na RK
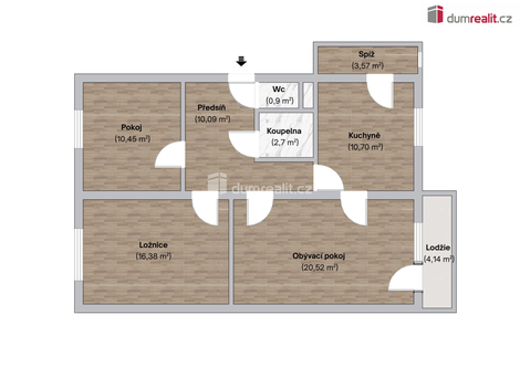
Dumrealit.cz Vám zprostředkuje prodej bytu 3+1 84,6 m2 v OV s L/S/G/, obec Všeradice. Jedná se o prostorný světlý byt s neprůchozími pokoji, samostatnou koupelnou s rohovou vanou a samostatným WC. U kuchyně je praktická komora, další komora je přímo vedle bytu na chodbě. Byt je ve 2.patře (3.NP). Z obývacího pokoje je vstup na lodžii s výhledy do zeleně a na les-Brdské Hřebeny. K bytu patří garáž, 2x sklep, parkování je možné ještě před domem. Dům má novou střechu včetně okapů. Stavba je z r. 1990 z tvárnic a cihel. Dům je napojen na vlastní studnu, na obecní kanalizaci. Byt je vytápěn samostatným kotlem na tuhá paliva s rozvody do radiátorů, možno vyřešit plynovým kotlem. Do domu je přiveden plyn. V r. 2020 byly vyměněny okna za plastová. Podlahová plocha bytu je 75 m2, pokoj 1. 14 m2, pokoj 2. 20 m2, pokoj 3. 16 m2, kuchyně 14 m2, koupelna 2,7 m2, lodžie má 4 m2, dále pak sklepy a komora. Byt se nachází v centru obce, nedaleko autobusové zastávky, obchodu Coop, kavárny, zámeckého areálu Všerad, kde je restaurace, minipivovar, sportovní zázemí hřiště, tenisových kurtů, minigolfu. V obci působí i zájmové kroužky pro děti i dospělé. V obci je MŠ. Dopravní spojení s okolím zajišťují autobusy a vlak směr Zadní Třebaň-Lochovice. Na dálnici D5 exit 18 do Berouna je to 15 km (13 minut), do Zdic exit 28 je to 13,5 km (14 minut), na Dobříš D4 18 km (20 minut). Byt je možné koupit na hypoteční úvěr, který vám pomůžeme zajistit. Více informací u makléře M. Kareše Ev. číslo: 652478. Energetický štítek: G
Prodej, Byt 3+1, Bavoryně
Hledáte zrekonstruovaný a vybavený byt s vlastní zahradou, pergolou, sklepem, dílnou a dostatkem parkovacích míst? Pokud ano, tak pro Vás mám tento…
Prodej, byty/3+1, 58 m2, Husova 12, Beroun-Zavadilka, 26601 Beroun, Beroun [ID 73771]
Exkluzivně Vám nabízíme prostorný byt o dispozici 3+1 a výměře 58m2 v lokalitě Beroun - Zavadilka. V bytě je k dispozici kuchyně, prostorný obývací…