Vybírejte z nabídky 38 677 nemovitostí od 824 realitních kanceláří
lupa mobilní menu
Přehled nemovitostí: prodej byty > 2+kk > Postupice Zpět na přehled nabídek

Byt 2+kk, Postupice

Prodejce

Makléř: Veselská Martina

Telefon: 420 777 ...

E-mail: martina. ...

Zobrazit celý kontakt

prodej

Postupice (okres Benešov)

Blanická

Byty, Byt 2+kk

BJ10

1 (dům má 2 podlaží)

osobní

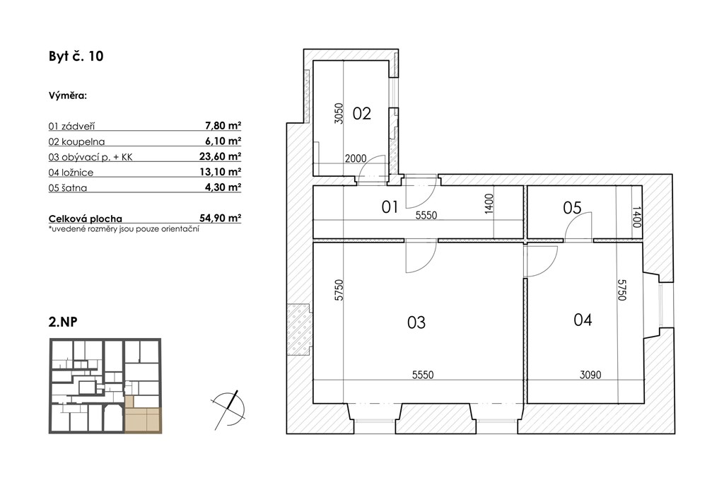
55 m2

55 m2

E - Nehospodárná

Cena: 4194470 CZK / objekt
Poznámka k ceně: Poslední šance na koupi za současnou cenu! Aktuální ceny platí jen do konce roku 2025. 1
Prodejce

Makléř: Veselská Martina

Telefon: 420 777 ...

E-mail: martina. ...

Zobrazit celý kontakt
Poslat dotaz k nabídce
Zásady používání osobních údajů

Nemovitost nabízí

/loga_velka/10035.webp

CENTURY 21 Birdie Reality - pobočka NextRound

28. října 813/248, 709 00 Ostrava

www.century21.cz/kancelar-birdie-reality-pobocka-nextround

Zobrazit kontakt na RK

Zobrazit všechny nabídky RK

V unikátním rezidenčním projektu v Postupicích u Benešova nabízíme moderní byt 2+kk o velikosti 54,9 m2 ve 2. nadzemním podlaží. Projekt spojuje kouzlo historie s nejvyšším standardem současného bydlení. Každý byt je pečlivě navržen tak, aby poskytoval maximální pohodlí, dostatek světla a funkční uspořádání pro moderní život. Vhodné pro rodiny, jednotlivce i investory. ✔ Parkovací stání a možnost garáží přímo v areálu ✔ Dětské hřiště v bezpečném vnitrobloku ✔ Klidná lokalita s rychlou dostupností do Benešova i Prahy ✔ Kompletní občanská vybavenost v docházkové vzdálenosti (škola, školka, obchody, restaurace) Technické informace o stavbě: Rekonstrukce probíhá s respektem k historické hodnotě objektu a zároveň s důrazem na moderní standardy: Konstrukce: Smíšené a cihelné zdivo, zdi o tloušťce 300-1000 mm, založené na kamenných pasech. Stropy: Dřevěné trámové, často zdvojené pro lepší akustiku a nosnost. Příčky: Porobeton (Ytong KLASIK) pro výbornou tepelnou a zvukovou izolaci. Vytápění: Teplovodní systém - podlahové topení. Vlastní elektrokotel 6 kW, umístěný v koupelně, chodbě nebo šatně. Ohřev vody: Elektrické akumulační bojlery (100-120 l) v každé jednotce. Společné prostory: Temperované elektrickými přímotopy na 15 °C. Napojení na inženýrské sítě: Nové přípojky na veřejný vodovod a kanalizaci v ulici Průběžná, napojení na silnoproudou elektřinu (ČEZ). Kanalizace dešťová: Řešena zasakováním a napojením na stávající systém. Začněte novou kapitolu v unikátním prostředí historického domu s duší a pohodlím moderního domova. Kontaktujte nás pro více informací nebo sjednání prohlídky!



Nahoru