Vybírejte z nabídky 38 818 nemovitostí od 827 realitních kanceláří
lupa mobilní menu
Přehled nemovitostí: prodej komerční > obchodní prostory > Broumov Zpět na přehled nabídek

Komerční nemovitosti 750 m2, Broumov - Poříčí

Prodejce

Makléř: Bureš Jaroslav

Telefon: 720 209 ...

E-mail: jbures@e ...

Zobrazit celý kontakt

prodej

Broumov (okres Náchod)

Komerční, Obchodní prostory

00596

24.11.2025

750 m2

G - Mimořádně nehospodárná

Cena: na dotaz v RK
Poznámka k ceně: volejte makléři, včetně DPH, včetně poplatků, včetně provize, včetně právního servisu 1
Prodejce

Makléř: Bureš Jaroslav

Telefon: 720 209 ...

E-mail: jbures@e ...

Zobrazit celý kontakt
Poslat dotaz k nabídce
Zásady používání osobních údajů

Nemovitost nabízí

/loga_velka/9800.webp

ERS reality eu

Podhorská 377/20, 466 01 Jablonec nad Nisou

www.ersreality.cz

Zobrazit kontakt na RK

Zobrazit všechny nabídky RK

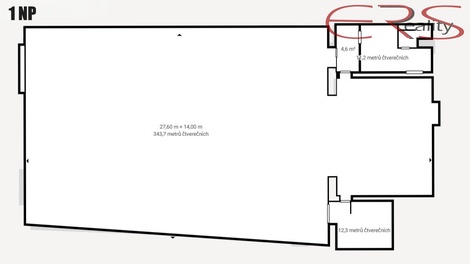
KDE SE HISTORIE DOTÝKÁ BUDOUCNOSTI - SECESNÍ KLENOT ČEKÁ 750 m2 příběhů, prostoru a nekonečných možností v srdci Broumova Představte si budovu, která pamatuje smích hostinských večerů z roku 1911, tiché modlitby pod vitrážovými okny a tisíce příběhů, jež se odehrály v jejích zdech. Teď čeká na ten váš. PŘÍBĚH, KTERÝ STOJÍ ZA TO VYPRÁVĚT 1911 - Narodil se hostinec. Místo setkávání, oslav a života.1934 - Architekt Hubert Meier mu vdechl nový dech. Z hostince se stala modlitebna s nádherným secesním průčelím.2025 - Co napíšete vy? Tato budova není jen nemovitost. Je to plátno pro vaši vizi, kde každá vitráž, každý architektonický detail šeptá: "Udělej ze mě něco výjimečného." CO VLASTNĚ ZÍSKÁTE? Architektonický unikát s duší Secesní průčelí s originálními vitrážemi, které mění sluneční paprsky v barevnou symfonii. Památková zóna, která vašemu projektu dává prestižní razítko autenticity. Prostory, které dýchají potenciálem: - Velký sál s podiem 387 m2 - koncertní sál • svatební venue • divadlo • výstavní prostor • tanečnice pod secesními stropy - Členitý suterén 363 m2 - vinárna s klenbami • tajemné ateliéry • wellness oáza • stylové apartmány • galerie s atmosférou - Dvůr a zahrada 331 m2 letní kavárna • zahradní kino • pivní zahrada • meditační zahrada • dětský koutek Broumov není ospalé městečko. Je to kulturní a turistické srdce regionu s neskutečným potenciálem: - Barokní kostely - kandidát na UNESCO, - Broumovské stěny - ráj pro turisty a fotografy, - Kulturní akce - festivaly, koncerty, trhy, - Strategická poloha - 90 min z Prahy, hodina z Polska, - Rostoucí zájem - turismus i nových obyvatel Centrum města znamená denní ruch, zákazníky na dosah ruky a adresu, která imponuje. Vlastnit historickou budovu v památkové zóně není pro každého. Je to symbol vkusu, zodpovědnosti a úspěchu. Vaše jméno spojené s obnovou tohoto klenotu bude znít v Broumově ještě dlouho. PRAKTICKÉ INFO - Užitná plocha: 750 m2 čistého potenciálu - Stav: K rekonstrukci (čisté plátno pro vaši vizi) - Lokalita: Centrum Broumova, čtvrť Poříčí - Památková ochrana: Ano (= dotace + prestiž) - Pozemek: 331 m2 dvůr a zahrada - Parkování: Vlastní dvůr - Dostupnost: Všechna občanská vybavenost v docházce Chcete vidět vitráže na vlastní oči? Projít se velkým sálem a cítit jeho atmosféru? Ozvěte se. Tato budova čeká právě na vás.



Nahoru