Vybírejte z nabídky 37 080 nemovitostí od 812 realitních kanceláří
lupa mobilní menu
Přehled nemovitostí: pronájem komerční > skladové prostory > Nové Dvory Zpět na přehled nabídek

Pronájem, Skladové prostory, Nové Dvory

Prodejce

Makléř: Filip Hecl

Telefon: 723 063 ...

E-mail: hecl@rea ...

Zobrazit celý kontakt

pronájem

Nové Dvory (okres Kutná Hora)

Masarykovo nám.

Komerční, Skladové prostory

23706

30.12.2025

osobní

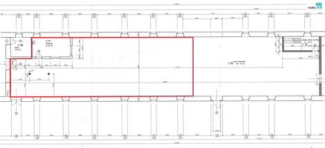
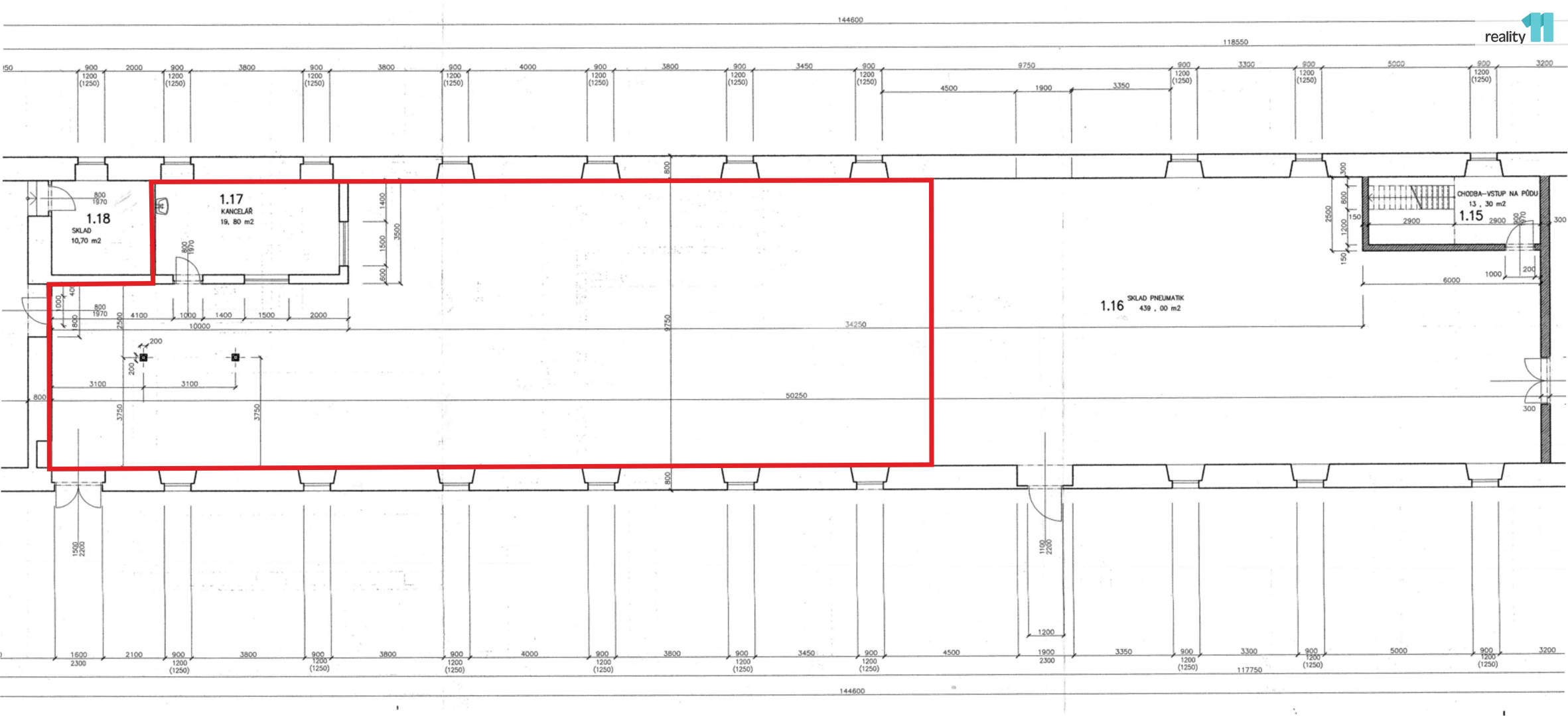
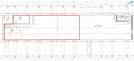
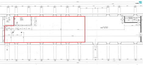
300 m2

G - Mimořádně nehospodárná

Cena: 22500 CZK / objekt / měsíc
Poznámka k ceně: + energie 1
Prodejce

Makléř: Filip Hecl

Telefon: 723 063 ...

E-mail: hecl@rea ...

Zobrazit celý kontakt
Poslat dotaz k nabídce
Zásady používání osobních údajů

Nemovitost nabízí

/loga_velka/5042.jpg

REAL ESTATE CZECH REPUBLIC a.s.

www.reality11.cz

Zobrazit kontakt na RK

Zobrazit všechny nabídky RK

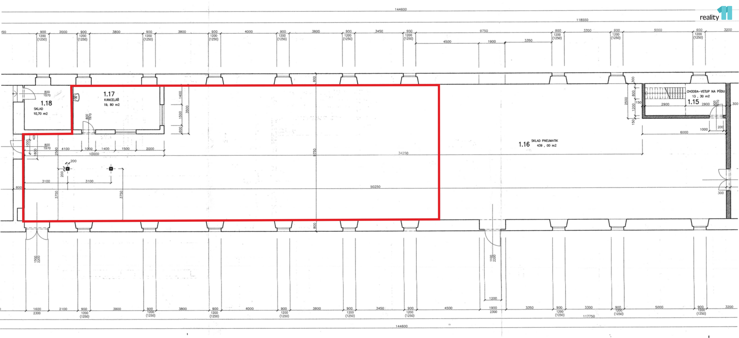
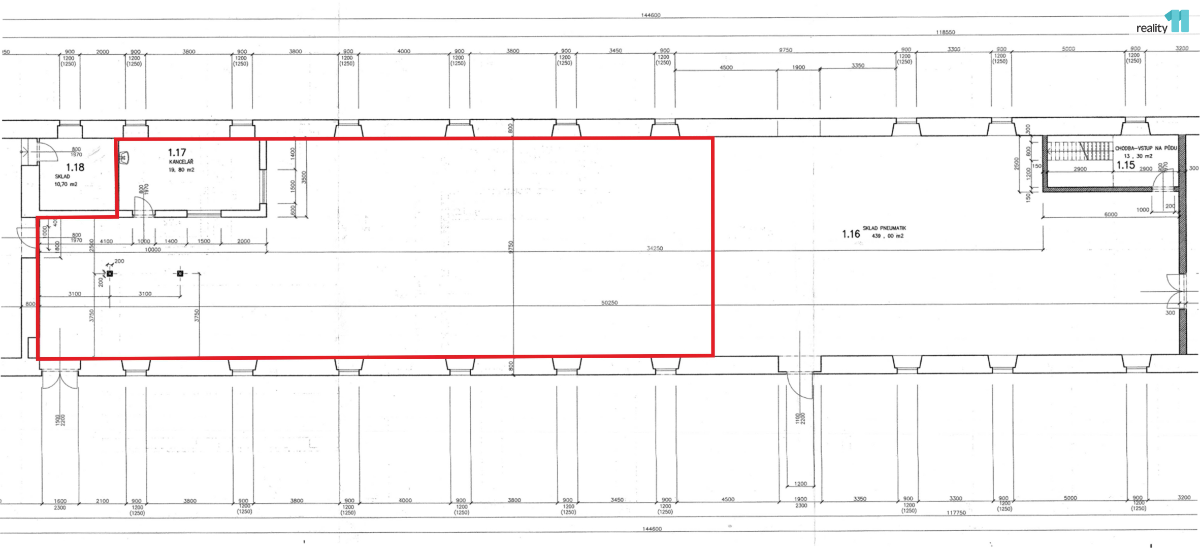
Reality 11 Vám zprostředkují pronájem komerčního či skladového prostoru o užitné ploše cca 300 m2 s možností pronajmutí venkovní plochy o výměře až 2 000 m2, nedaleko Kutné Hory v obci Nové Dvory. V objektu je zavedena elektřina, samostatný elektroměr. V areálu momentálně funguje jeden autoservis, truhlárna a několik skladů. Vjezdová vrata na pozemek jsou dostatečně velká, projede i nákladní vozidlo. Venkovní plochu lze pronajmout za 33,-Kč za 1 m2 měsíčně. Vchodové dveře do objektu jsou široká 160 cm a výška činí 190 cm, možnost vybudovat i rampu. Prostory jsou suché a budou připravené pro nového nájemníka. Měsíční nájemné ve výší 22.500,-Kč + elektřina (přepis na nájemce), kauce ve výši 45.000,-Kč. Provizi RK neplatíte.. Volné od 1.1.2026. Obec se nachází nedaleko zámku Kačina, vedle Kutné Hory. V případě prohlídky, či dalších dotazů, mě neváhejte kontaktovat. Ev. číslo: 23706. Energetický štítek: G (286 kWh/m2/rok).



Nahoru