Vybírejte z nabídky 38 918 nemovitostí od 774 realitních kanceláří
lupa mobilní menu
Přehled nemovitostí: pronájem komerční > obchodní prostory > Červený Kostelec Zpět na přehled nabídek

Pronájem obchodně komerčních prostor, Červený Kostelec

Prodejce

Makléř: Jirásek Jaroslav

Telefon: 800 100 ...

E-mail: info@mmr ...

Zobrazit celý kontakt

pronájem

Červený Kostelec (okres Náchod)

Komerční, Obchodní prostory

922368

osobní

180 m2

G - Mimořádně nehospodárná

Cena: 8000 CZK / objekt / měsíc
Prodejce

Makléř: Jirásek Jaroslav

Telefon: 800 100 ...

E-mail: info@mmr ...

Zobrazit celý kontakt
Poslat dotaz k nabídce
Zásady používání osobních údajů

Nemovitost nabízí

/loga_velka/7301.jpg

M&M reality holding a.s.

Krakovská 1675/2, 110 00 Praha 1

www.mmreality.cz

Zobrazit kontakt na RK

Zobrazit všechny nabídky RK

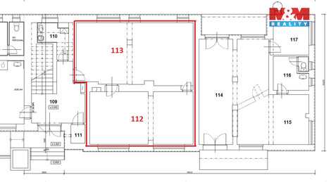
Pronájem kancelářských nebo obchodně - komerčních prostor o celkové ploše 180 m2, show room, obchodní prostor a skladování. Dále kanceláře 70 m2 v 1. NP , a 30 m2 v 2 NP. Prostor pronájmu přístupný a umístěné u hlavní silnice v obci Červený Kostelec, část Lhota u Červeného Kostelce. Při výjezdu na Trutnov. Dálnice D 11 v dosahu do 20 minut, centrum města a nákladové nádraží do 5 minut vozem. Služby areálu jsou cca 15 Kč/ m2 (zahrnuje ostrahu 24/7, údržba komunikací a zeleně Prostory jsou vybaveny starším nábytkem Možnost rozšíření dle dohody s majitelem. Majitel nemovitosti po dohodě provede úpravy interiéru nebo stavební úpravy dle přání zájemce. Nebytové prostory jsou vhodné pro call centra, kanceláře, drobnou výrobu, opracování nebo po úpravě i pro skladování. V budoucnu po provedených stavebních úpravách jako obchod, provozování lékárny, soukromé ordinace, obchodu, služeb nebo distribučního skladu. .Plastová okna, zateplení, sociální zázemí. Vytápění a a teplá voda centrální zdroj.



Nahoru