Vybírejte z nabídky 36 556 nemovitostí od 815 realitních kanceláří
lupa mobilní menu
Přehled nemovitostí: prodej pozemky > stavební pozemky > Starý Kolín Zpět na přehled nabídek

Prodej, Pozemek pro stavbu RD, bytů, Starý Kolín

foto16_11390662_03154.jpg foto16_11390662_59090.jpg foto16_11390662_04229.jpg foto16_11390662_31553.jpg foto16_11390662_76507.jpg foto16_11390662_35114.jpg Aktivní
Prodejce

Makléř: Roman Kotek

Telefon: 725 293 ...

E-mail: roman@rk ...

Zobrazit celý kontakt

prodej

Starý Kolín (okres Kolín)

Pozemky, Pozemky pro stavbu RD, bytů

0449

04.01.2026

27 971 m2

Cena: 42935500 CZK / objekt
Prodejce

Makléř: Roman Kotek

Telefon: 725 293 ...

E-mail: roman@rk ...

Zobrazit celý kontakt
Poslat dotaz k nabídce
Zásady používání osobních údajů

Nemovitost nabízí

/loga_velka/9999.webp

RK Kotek

Kutnohorská 31, Kolín

www.rkkotek.cz

Zobrazit kontakt na RK

Zobrazit všechny nabídky RK

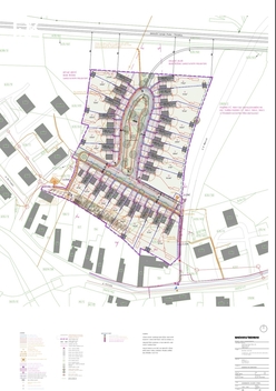
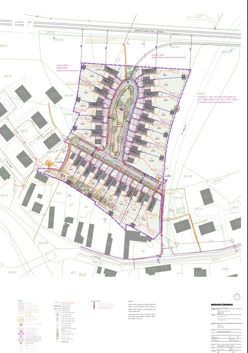
K prodeji je developerský projekt v obci Starý Kolín, 5 minut od města Kolín, připravený k další fázi realizace. Projekt je vhodný pro developera nebo investora hledajícího rychle realizovatelný rezidenční projekt s optimalizovanou hustotou zástavby. Celková výměra řešeného území činí 27 971 m2, z toho 20 565 m2 tvoří zastavitelná plocha. Projekt má vydané pravomocné územní rozhodnutí původně na výstavbu 22 samostatně stojících rodinných domů včetně kompletní infrastruktury, komunikací a dopravního napojení. V současné době je projekt optimalizován z pohledu návratnosti kapitálu. Nové řešení, které bylo projednáno a schváleno dotčenými orgány, počítá s: • 14 rodinnými domy • 8 objekty se dvěma bytovými jednotkami Celkem tedy 30 prodejných nemovitostí (14 rodinných domů + 16 bytových jednotek), což umožňuje vyšší výnos na m2 pozemku, lepší cashflow projektu a rychlejší návratnost investice oproti původní koncepci. Z technického hlediska je projekt připraven k realizaci: • zpracovaná dokumentace přeložky VN • schválené umístění trafostanice společností ČEZ • zajištěné připojení na vodohospodářskou infrastrukturu • kladný postoj obce k realizaci projektu Projekt lze převést: • v aktuální fázi s vydaným územním rozhodnutím, • případně včetně zajištění stavebního povolení, dle dohody s investorem. Jedná se o projekt v pokročilé fázi přípravy, který umožňuje investorovi okamžitý vstup do realizace bez časových ztrát spojených s povolovacími procesy, s jasně definovaným rozsahem a potenciálem dalšího zhodnocení.



Nahoru