Usedlost s potenciálem 2 budovy, stodola, sklípek a velký pozemek, kousek od Labe, Kojice 31
Makléř: Bc. Petr Kubášek
Telefon: 603 417 ...
E-mail: petr.kub ...
Zobrazit celý kontaktTelefon: 603 417 599
E-mail: petr.kubasek@re-max.cz
prodej
Domy, Zemědělské usedlosti, statky a farmy
285-NP00308
18.11.2025
2
2 446 m2
neuvedeno
G - Mimořádně nehospodárná
Makléř: Bc. Petr Kubášek
Telefon: 603 417 ...
E-mail: petr.kub ...
Zobrazit celý kontaktTelefon: 603 417 599
E-mail: petr.kubasek@re-max.cz
Nemovitost nabízí
Denisa Dřevěná
Větrná 453, Králův Dvůr
Zobrazit kontakt na RK
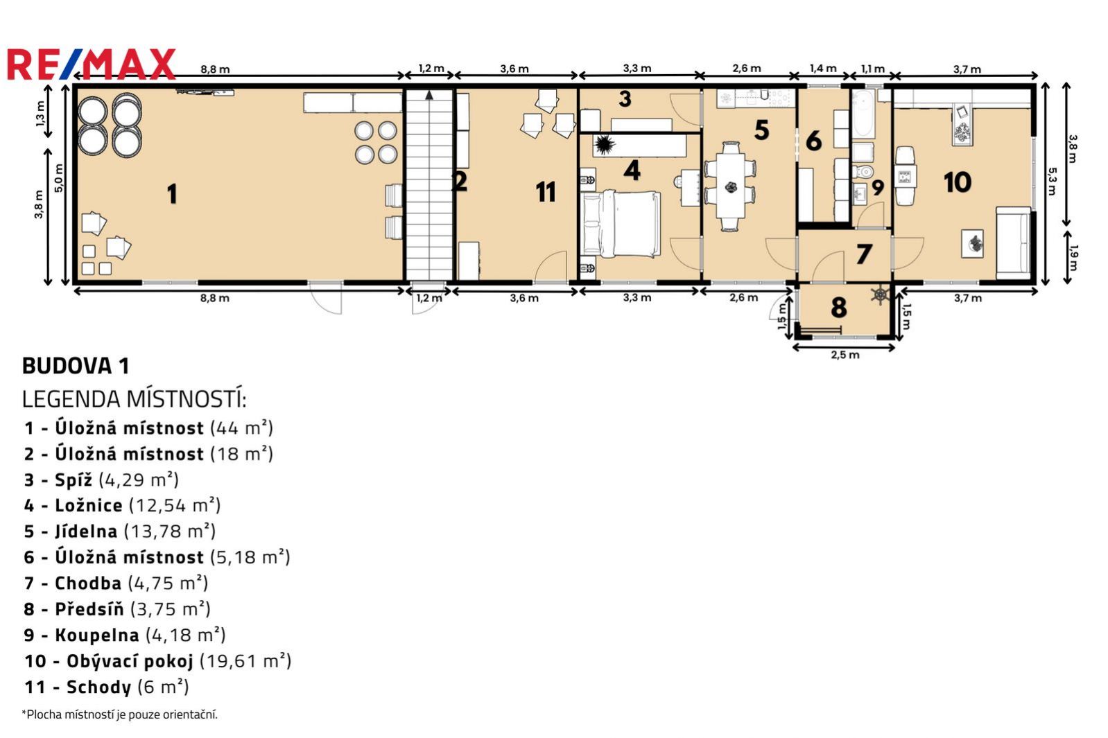
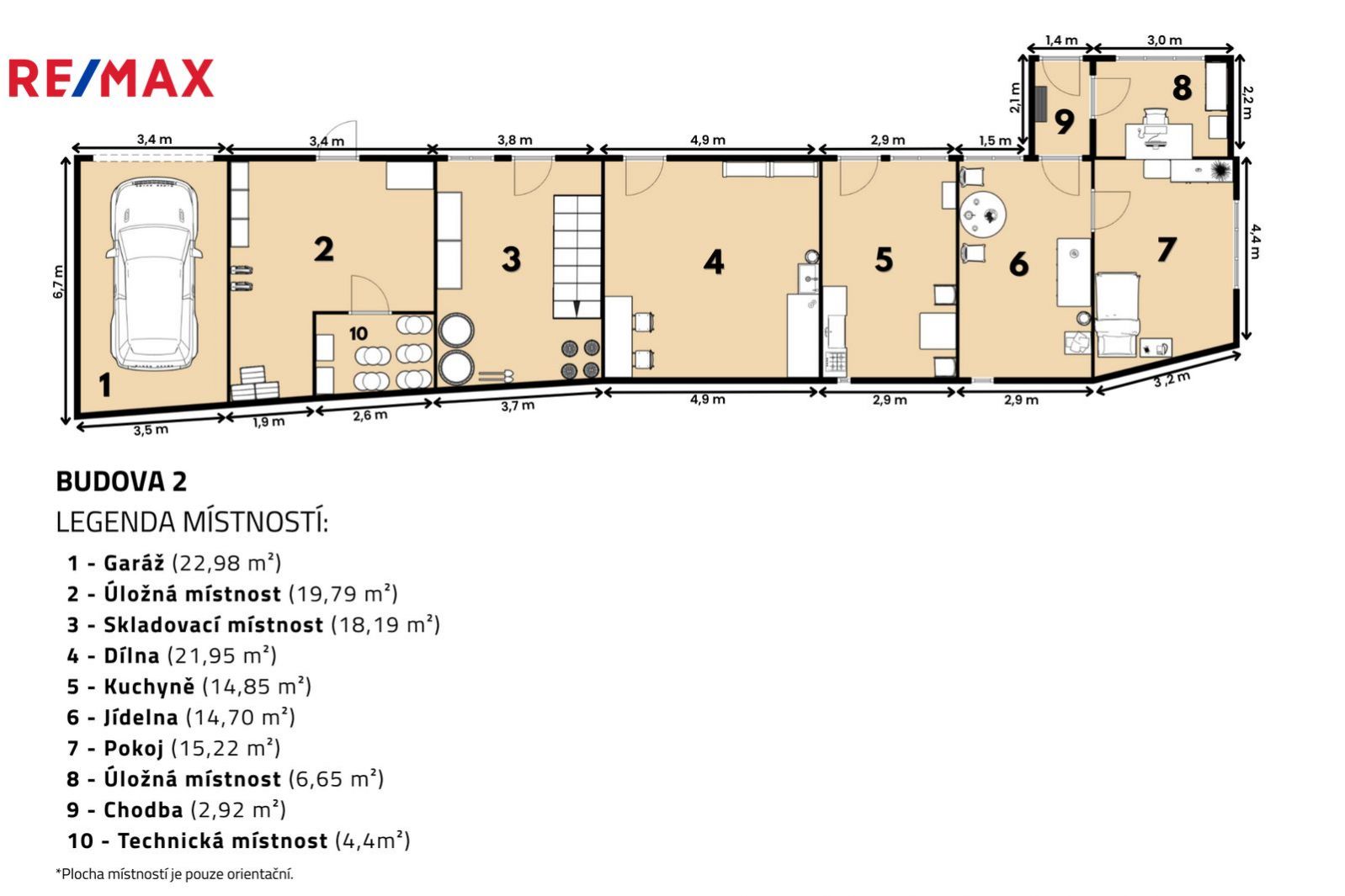
Hledáte místo, kde se snoubí klid venkova, čisté ovzduší a potenciál pro bydlení, rekreaci i hospodaření? Za výhodnou cenu můžete mít tradiční zemědělskou usedlost s velkým potenciálem přestavby v malebné obci Kojice, nedaleko řeky Labe a místních rybníků. Na rozlehlém slunném pozemku o celkové výměře 2 446 m se nachází dvě obytné budovy, prostorná stodola a samostatný sklípek ve svahu. Celá usedlost je obklopena úrodnou půdou a ovocným sadem, který poskytuje nejen krásné prostředí, ale i možnost vlastní úrody a chovu zvířat se zázemím. Hlavní přednosti: Dvě obytné budovy, první ihned obyvatelná s novou elektřinou a plynovým topením, vše s možností další rekonstrukce dle vlastních představ Ideální prostředí a dostatek místa i pro chovná a domácí zvířata Velké půdní prostory (165 m2+32 m2) vhodné k vestavbě či rozšíření obytné plochy Stodola ideální pro hospodářské využití, skladování nebo přestavbu na ateliér či dílnu Vinný sklípek autentický prvek s atmosférou, vhodný pro uchování vína či potravin i posezení s výhledem Ovocný sad, zahrada a úrodná půda možnost pěstování, zahradničení nebo drobného hospodaření Vlastní studna nezávislý zdroj vody, obecní přípojka vody u domu Plyn a elektřina kompletní inženýrské sítě zavedeny, internet vzduchem Klidná lokalita s čistým ovzduším, ideální pro rodinný život i odpočinek Obec Kojice leží v malebném prostředí Polabí, s výbornou dostupností autem (obchvat) i vlakem do Pardubic, Kolína i Prahy. Díky okolní přírodě, rybníkům a blízkosti Labe je to skvělé místo pro milovníky klidu, rybaření, myslivosti, cykloturistiky i procházky v přírodě. Potraviny, hřiště s hospodou, MŠ na místě, vše ostatní v blízkém okolí, viz web obce. Možnosti využití: Rodinné bydlení s velkou zahradou a hospodářským zázemím pro zvířata Rekreační usedlost pro víkendové pobyty a odpočinek Investiční příležitost přestavba na penzion, agroturistiku, vícegenerační bydlení nebo jiný druh podnikání Tato usedlost v Kojicích nabízí jedinečnou kombinaci tradiční atmosféry, velkého pozemku a širokých možností využití. Je ideální pro ty, kteří hledají klidné místo k životu, chtějí hospodařit, nebo hledají zajímavou investici s potenciálem - viz také vizualizace mezi fotkami... Nenechte si uniknout tuto unikátní příležitost! S případnou hypotékou vám rádi pomůžeme Pište či volejte pro více informací a termín prohlídky. Díky a budu se těšit
Prodej zemědělské usedlosti 2190 m2 se zahradou ve Vendolí
Nabízíme k prodeji zemědělskou usedlost v malebné vesnici Vendolí, která čeká na svého nového majitele a příležitost probudit ji k novému životu. …
Prodej zemědělské usedlosti 1100 m2, Zádolí
Dokážete si představit klidný dům nebo penzion nebo statek v malebné vesničce jen 5 km od Vysokého Mýta? Nabízíme k prodeji rozlehlou zemědělskou…