RD s bytovými jednotkami, garáž, zahrada, Brodek u Konice
Makléř: Varmuža Jaroslav
Telefon: 420 721 ...
E-mail: jaroslav ...
Zobrazit celý kontaktTelefon: 420 721 977 793
E-mail: jaroslav.varmuza@century21.cz
prodej
Brodek u Konice (okres Prostějov)
968555
07.01.2026
2
osobní
1 002 m2
280 m2
G - Mimořádně nehospodárná
Makléř: Varmuža Jaroslav
Telefon: 420 721 ...
E-mail: jaroslav ...
Zobrazit celý kontaktTelefon: 420 721 977 793
E-mail: jaroslav.varmuza@century21.cz
Nemovitost nabízí
CENTURY 21 Relax
9. května 695/14a, 682 01 Vyškov
www.century21.cz/kancelar/relax/
Zobrazit kontakt na RK
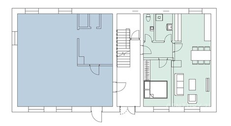
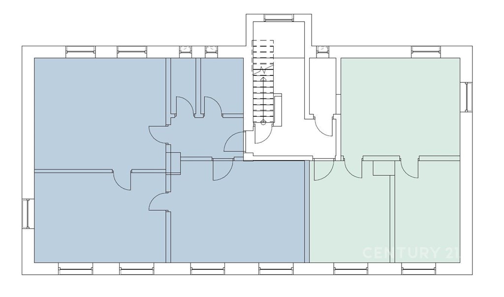
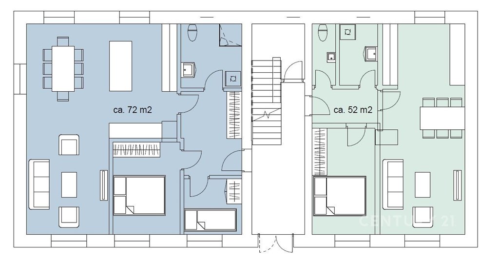
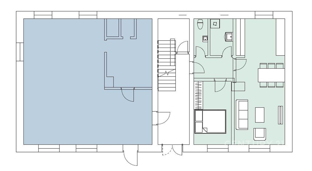
Ve výhradním zastoupení nabízíme k prodeji tento rodinný dům v malebné obci Brodek u Konice. Tato nemovitost je ideální volbou pro investora, který dokáže maximálně využít skrytý potenciál této budovy. Dům je dle katastru nemovitostí vedený jako rodinný dům a kolaudovaný v roce 1946, poslední významnější rekonstrukce proběhla okolo roku 1990, kdy se v přízemí budovy přebudovala levá polovina na obchodní prostor se samostatným vstupem z ulice. Na domě se od tohoto roku prováděla průběžná údržba, např. okolo roku 2000 výměna plynového kotle, kdy každé patro má svůj vlastní plynový kotel a okruh topení, atd.. Dům má kamenné základy a je postavený z pálených cihel. Celkem se skládá z 1.PP (sklep), 1.NP, 2.NP a půdního prostoru s valbovou střechou. Plášť budovy není zateplený. Okna do ulice v 1.NP jsou plastová, ostatní dřevěná kastlová. Za domem se nachází vedlejší stavba s vlastním parcelním číslem, v evidenci jako jiná stavba o rozloze 64m2. Zde se v levé části nachází stodola a v pravé části garáž s dvoukřídlými vraty. Celková plocha je 1002 m2, z toho pozemek o rozloze 768m2, vedený jako zahrada, kde jsou vzrostlé ovocné stromy, které doplňují okrasné dřeviny a keře, včetně záhonů pro pěstování a skleník. Bližší specifikace: 1) 1. PP. sklepní prostory nemovitost je z větší části celého půdorysu podsklepená. tyto prostory lze do budoucna využít jako skladiště, sklepy pro jednotlivé bytové jednotky a například pro umístění společných technologií pro celý dům. 2) 1. NP. resp. přízemí je rozděleno vstupní chodbou a centrálním schodištěm na dvě části. Při vstupu do domu levá část je aktuálně řešena jako obchodní prostora, například zřízení prodejny, provozování služeb či kanceláře, celkový prostor má rozlohu okolo 70m2. Pravá strana je bytová jednotka, aktuálně o dispozici 2+kk, s možností zachování dispozice, případně snadného přebudování na dispozici 2+1. Podlahová plocha činí okolo 52m2. 3) 2.NP. je řešeno jako bytová jednotka o dispozici 5+1 s celkovou podlahovou plochou 145m2. Zde je velký potenciál opět přebudovat na 2 bytové jednotky, kdy by mohla vzniknout dispozice 3+kk (3+1) o cca 83m2 a druhá jednotka o dispozici 2+1 s přibližně 52m2. 4) Půda aktuálně se jedná o klasickou půdní prostoru s valbovou střechou, která by však mohla být přebudována a mohly by zde vzniknout další prostory pro bydlení, ateliéry či kanceláře. Nutná následná konzultace s projektantem a statikem. Celý pozemek je oplocený. Okolí domu nabízí bohaté možnosti pro rekreaci - v blízkosti se nachází bohatá občanská vybavenost, v okolí cyklostezky, turistické stezky a další. Pravidelné autobusové spojení díky systému IDSOK s dopravou do Konice (vlak), Prostějova a Horního Štěpánova. Dům je ideální příležitostí pro investora, který dokáže přetvořit rodinný dům na bytové jednotky, případně na bytové jednotky a obchodní prostor, vhodný je pro okamžité nastěhování či vícegenerační bydlení. Pro více informací a prohlídku kontaktujte prosím makléře.
Prodej nájemního domu, 535 m2, Prostějov, ul. Kostelecká
Investiční příležitost v srdci Prostějova! Exkluzivně nabízíme historický dům z 16. století, vhodný k přestavbě na 5 bytových jednotek (2+1 a 2kk v…
Činžovní dům, prodej, Plumlovská, Krasice, Prostějov
Nabízíme k prodeji dvoupodlažní cihlový dům v širším centru Prostějova na křížení ulic Plumlovská a Nerudova. Dům s historií (bývalá restaurace U…