Vybírejte z nabídky 37 127 nemovitostí od 815 realitních kanceláří
lupa mobilní menu
Přehled nemovitostí: prodej pozemky > stavební pozemky > Mirkovice Zpět na přehled nabídek

Stavební pozemek 901 m vč. zákl. desky, Mirkovice

Prodejce

Makléř: Jan Štěpánek

Telefon: 721 931 ...

E-mail: jan@step ...

Zobrazit celý kontakt

prodej

Mirkovice (okres Český Krumlov)

Pozemky, Pozemky pro stavbu RD, bytů

0037

07.01.2026

901 m2

Cena: 3349000 CZK / objekt
Prodejce

Makléř: Jan Štěpánek

Telefon: 721 931 ...

E-mail: jan@step ...

Zobrazit celý kontakt
Poslat dotaz k nabídce
Zásady používání osobních údajů

Nemovitost nabízí

/images/img-no-foto-small.png

Ing. Jan Štěpánek - Realitní služby

Šrámkova 327, Zliv

Zobrazit kontakt na RK

Zobrazit všechny nabídky RK

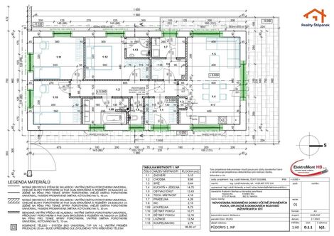
Nabízíme k prodeji stavební parcelu parc. č. 192/61 o ploše 901 m v obci Mirkovice u Českého Krumlova, kde vzniká nová moderní zástavba. Jedná se o jednu z posledních nezastavěných parcel v lokalitě. Pozemek je rovinatý, lichoběžníkového tvaru, s napojením na obecní komunikaci. Na pozemku je již vybudována základová deska a kompletní přípojky inženýrských sítí, součástí převodu je také stavební povolení pro výstavbu rodinného domu 4+kk se dvěma koupelnami a ověřená projektová dokumentace. Dům je navržen jako přízemní s obdélníkovým půdorysem 16,5 × 7,5 m a zastavěnou plochou 123,75 m. V projektu je zahrnuto zádveří, obývací pokoj s kuchyní a jídelnou, tři ložnice, dvě koupelny, technická místnost a terasa. Vytápění je řešeno tepelným čerpadlem vzduchvoda s možností doplnění o krbová kamna. Dům tak bude nabízet prostorné rodinné bydlení s rozumnými náklady na provoz. Pozemek se nachází v klidné vesnici s rychlou dojezdovou vzdáleností do Českého Krumlova i Velešína. K dispozici je parkovací stání přímo na pozemku i možnost parkování na obecním pozemku před domem. Díky již vydanému stavebnímu povolení dle starého stavebního zákona není nutné zpracovávat dokumentaci pro provedení stavby, což ušetří budoucímu majiteli čas i náklady a může ihned pokračovat s výstavbou. Parcela je tak ideální volba pro ty, kteří chtějí moderní bydlení v klidu venkova a zároveň mít město na dosah, ale nechtějí absolvovat dlouhé stavební řízení.




Prodej stavebního pozemku Mirkovice na Eurobydleni.cz


Nahoru