Vybírejte z nabídky 37 139 nemovitostí od 812 realitních kanceláří
lupa mobilní menu
Přehled nemovitostí: prodej komerční > areály pro podnikání > Roztoky Zpět na přehled nabídek

Prodej objektů k rekonstrukci ZP 340 m2, pozemek 690 m2, Vlavská, Roztoky

Prodejce

Makléř: Mgr. Josef Žáček Ředitel společnosti

Telefon: 725 738 ...

E-mail: j.zacek@ ...

Zobrazit celý kontakt

prodej

Roztoky (okres Praha-západ)

Vltavská

Komerční, Areály pro podnikání

3560

05.01.2026

osobní

290 m2

G - Mimořádně nehospodárná

Cena: 12500000 CZK / objekt
Poznámka k ceně: včetně provize a právního servisu 1
Prodejce

Makléř: Mgr. Josef Žáček Ředitel společnosti

Telefon: 725 738 ...

E-mail: j.zacek@ ...

Zobrazit celý kontakt
Poslat dotaz k nabídce
Zásady používání osobních údajů

Nemovitost nabízí

/loga_velka/6865.jpg

Top One reality, s.r.o.

Lidická 2240, 252 63 Roztoky

www.toponereality.cz/

Zobrazit kontakt na RK

Zobrazit všechny nabídky RK

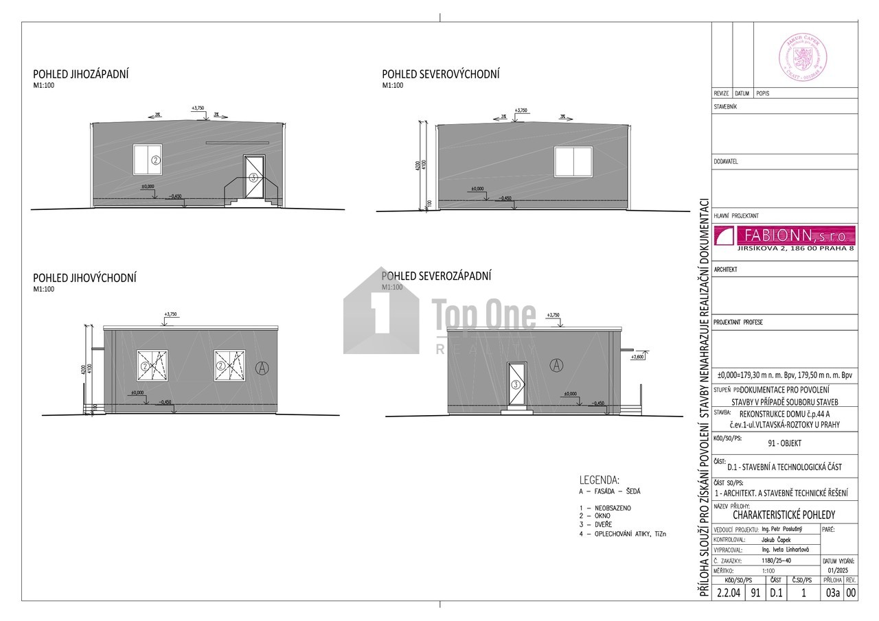
Exkluzivně nabízíme k prodeji soubor objektů, které jsou umístěny na pozemku o celkové rozloze 690 m2 ke komplexní rekonstrukci se zpracovanou kompletní projektovou dokumentací a vydaným stavebním povolením, který se nachází v ulici Vltavská v dolní části Roztok, okres Praha-západ. Po rekonstrukci vznikne přízemní nepodsklepený objekt, který může být využit k bydlení nebo jako kancelářské prostory (sídlo firmy) o půdorysném rozměru 8,8m x 8m o užitné ploše 56 m2. Současně rekonstrukcí vznikne přízemní nepodsklepená hala o půdorysném rozměru 12,5m x 30,8m o užitné ploše 234 m2, kterou bude možno využít ke skladování, případně jak výrobní prostor pro drobnou výrobu. Objekty se nacházejí v pochůzkové vzdálenosti od vlakové a autobusové zastávky s vynikající dostupností do centra Prahy a na Metro A-st. Dejvická. Roztoky disponují kompletní občanskou vybaveností a jsou vyhledávaným místem pro bydlení i podnikání. Pokud Vás tato nabídka oslovila, neváhejte mě kontaktovat.



Nahoru