Dvě obytné budovy s půdou, stodola, sklípek - velký pozemek 2446m2, kousek od Labe, Kojice 31
Makléř: Bc. Petr Kubášek
Telefon: 603 417 ...
E-mail: petr.kub ...
Zobrazit celý kontaktTelefon: 603 417 599
E-mail: petr.kubasek@re-max.cz
prodej
285-NP00311
10.12.2025
2
2 446 m2
neuvedeno
G - Mimořádně nehospodárná
Makléř: Bc. Petr Kubášek
Telefon: 603 417 ...
E-mail: petr.kub ...
Zobrazit celý kontaktTelefon: 603 417 599
E-mail: petr.kubasek@re-max.cz
Nemovitost nabízí
Denisa Dřevěná
Větrná 453, Králův Dvůr
Zobrazit kontakt na RK
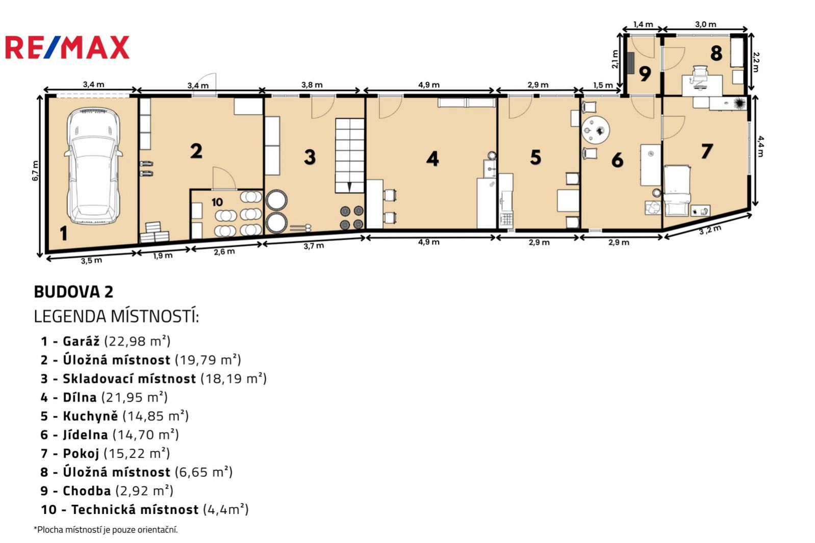
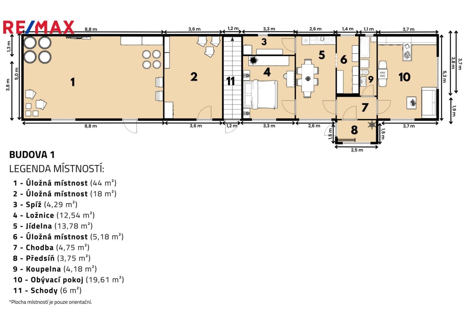
Toto je to ideální místo, kde se snoubí klid, čisté ovzduší a potenciál pro bydlení, rekreaci i hospodaření! Za ještě lepší cenu můžete mít pestrý soubor budov s užitnou plochou 218m2 a hlavně velkým potenciálem úprav plus rozšíření v malebné obci Kojice, nedaleko řeky Labe a místních rybníků. Na rozlehlém slunném pozemku o celkové výměře 2 446 m najdete dvě obytné budovy, prostornou stodolu a samostatný sklípek. Usedlost je obklopena úrodnou půdou a ovocným sadem, který poskytuje nejen krásné prostředí, ale i možnost vlastní úrody. Hlavní přednosti: Dvě obytné budovy, první ihned obyvatelná s nově udělanou elektřinou a plynovým topením, vše s možností dalších úprav a rozšíření dle vlastních představ Ideální prostředí a dostatek místa i pro chovná a domácí zvířata Velké půdní prostory (165m2+32m2) vhodné k vestavbě či rozšíření obytné plochy Stodola ideální pro hospodářské využití, skladování nebo přestavbu na ateliér či dílnu Vinný sklípek autentický prvek s atmosférou, vhodný pro uchování vína či potravin a posezení s výhledem Ovocný sad, zahrada a úrodná půda možnost pěstování, zahradničení nebo drobného hospodaření Vlastní studna nezávislý zdroj vody, obecní přípojka vody u domu Plyn a elektřina kompletní inženýrské sítě zavedeny Klidná lokalita s čistým ovzduším, ideální pro rodinný život i odpočinek Obec Kojice leží v malebném prostředí Polabí, s výbornou dostupností autem (obchvat) i vlakem do Pardubic, Kolína i Prahy. Díky okolní přírodě, rybníkům a blízkosti Labe je to skvělé místo pro milovníky klidu, rybaření, myslivosti, cykloturistiky i procházky v přírodě. Potraviny, hřiště s hospodou, MŠ na místě, vše ostatní v blízkém okolí, viz web obce. Možnosti využití: Rodinné bydlení s velkou zahradou a hospodářským zázemím pro zvířata - bio farma Rekreační usedlost pro klidné víkendové pobyty a odpočinek i pro větší počet lidí Investiční příležitost přestavba na ubytovnu, agroturistiku, vícegenerační bydlení nebo jiný druh podnikání v souladu s územním plánem Tato usedlost v Kojicích nabízí jedinečnou kombinaci tradiční atmosféry, velkého pozemku a širokých možností využití. Je ideální pro ty, kteří hledají klidné místo k životu, chtějí hospodařit, nebo naopak hledají zajímavou investici s velkým potenciálem zhodnocení... Nenechte si uniknout tuto unikátní příležitost! S případnou hypotékou vám rádi pomůžeme Pište či volejte pro více informací a termín prohlídky. Díky a budu se těšit
Prodej rodinného domu, 95 m2, Dolany
Nabízíme k prodeji starší rodinný dům v klidné obci Dolany, jen 10 minut od Pardubic. Tento jednopodlažní dům s užitnou plochou 82 m2 je ideální pro…
Prodej rodinného domu, 121 m2, Sezemice
Nabízíme moderní nízkoenergetický dům 4+kk o podlahové ploše 121 m2 na pozemku 347 m2 v projektu Rezidence Loučná v Sezemicích. Ideální řešení pro ty…