Vybírejte z nabídky 38 803 nemovitostí od 822 realitních kanceláří
lupa mobilní menu
Přehled nemovitostí: prodej domy > rodinné domy > Kojice Zpět na přehled nabídek

Dvě obytné budovy s půdou, stodola, sklípek - velký pozemek a les, kousek od Labe, Kojice 31

Prodejce

Makléř: Bc. Petr Kubášek

Telefon: 603 417 ...

E-mail: petr.kub ...

Zobrazit celý kontakt

prodej

Kojice (okres Pardubice)

Domy, Rodinné domy

285-NP00311

2

2 446 m2

neuvedeno

G - Mimořádně nehospodárná

Cena: 4599030 CZK / objekt
Poznámka k ceně: Cena zahrnuje veškerý právní servis 1
Prodejce

Makléř: Bc. Petr Kubášek

Telefon: 603 417 ...

E-mail: petr.kub ...

Zobrazit celý kontakt
Poslat dotaz k nabídce
Zásady používání osobních údajů

Nemovitost nabízí

/images/img-no-foto-small.png

Denisa Dřevěná

Větrná 453, Králův Dvůr

www.denisadrevena.cz

Zobrazit kontakt na RK

Zobrazit všechny nabídky RK

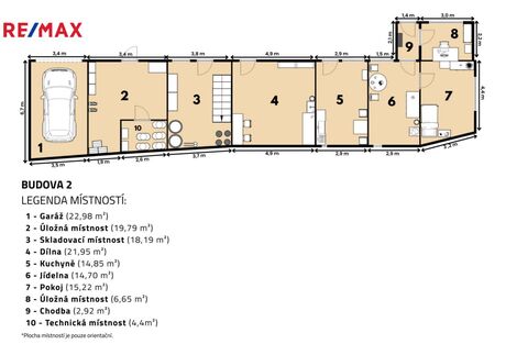
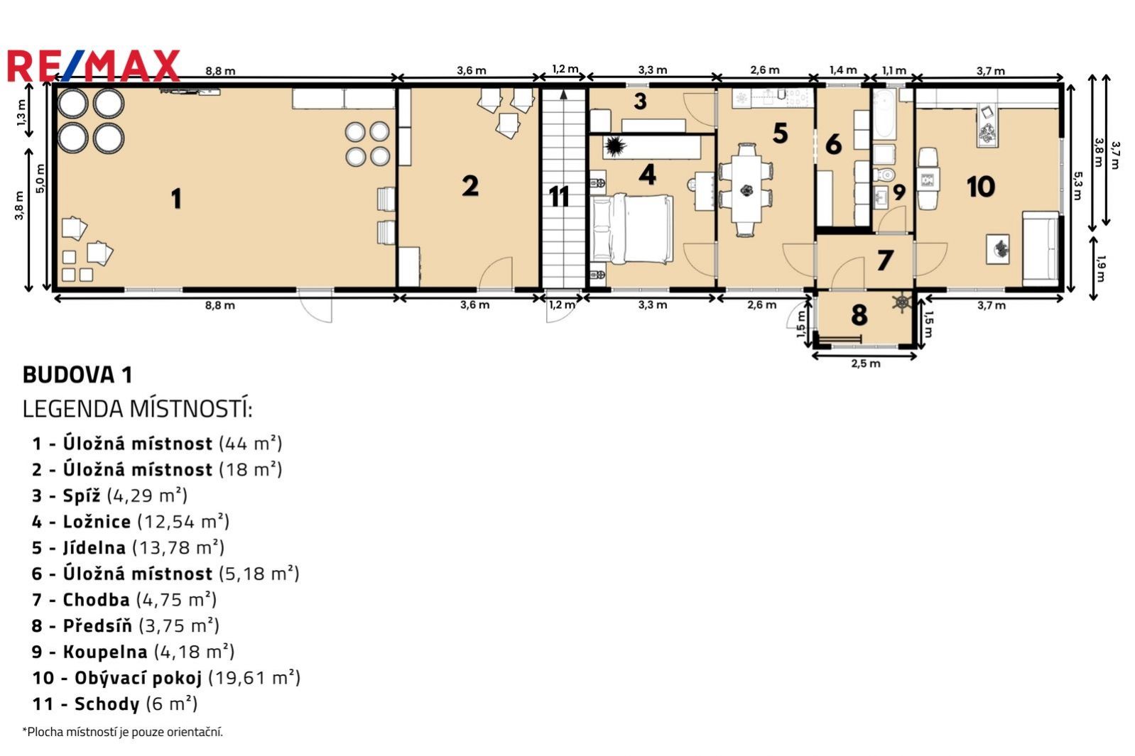
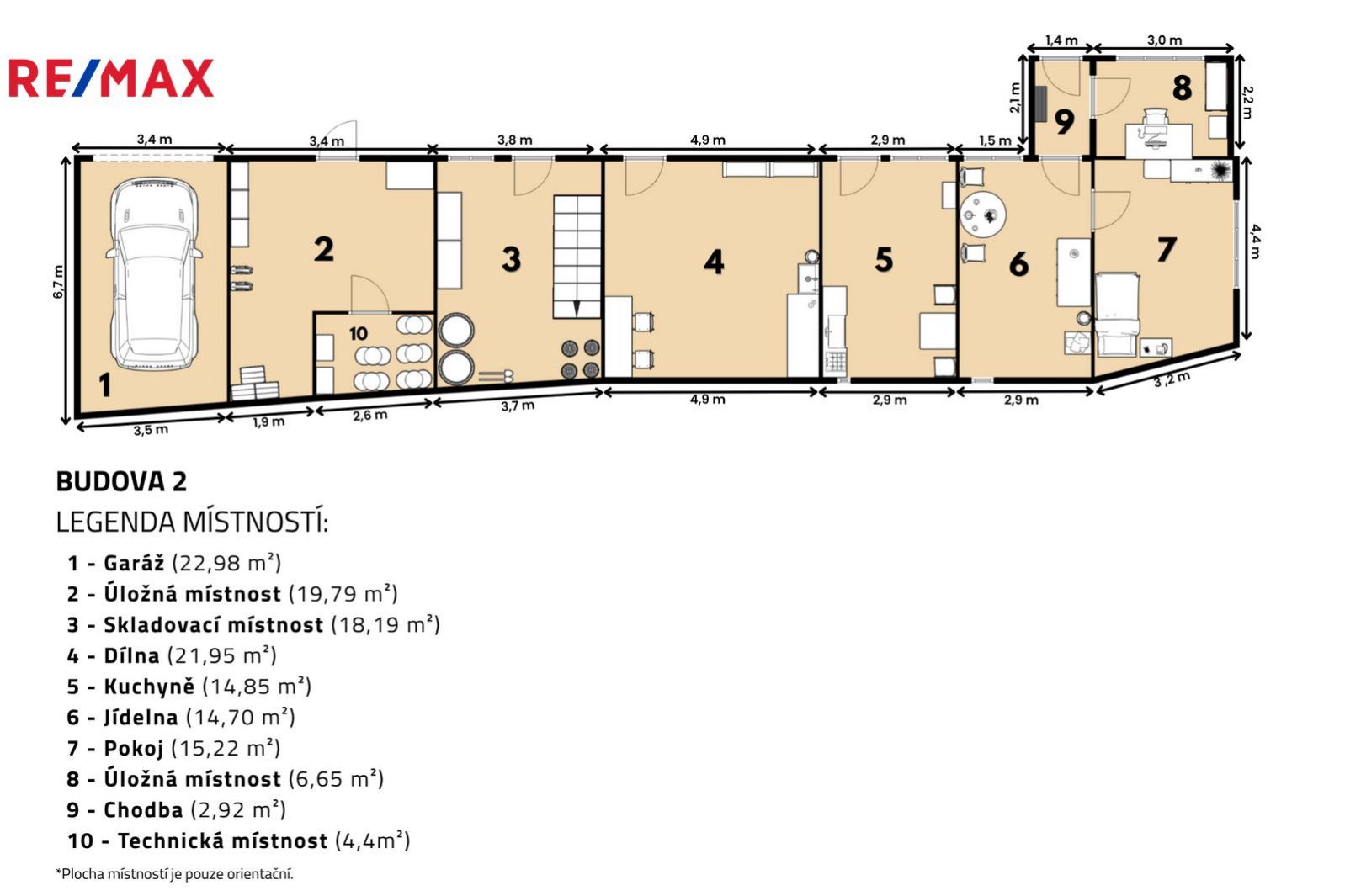
Hledáte místo, kde se snoubí klid venkova, čisté ovzduší a potenciál pro bydlení, rekreaci i hospodaření? Za výhodnou cenu můžete mít pestrý soubor budov s velkým potenciálem přestavby v malebné obci Kojice, nedaleko řeky Labe a místních rybníků. Na rozlehlém slunném pozemku o celkové výměře 2 446 m najdete dvě obytné budovy, prostornou stodolu a samostatný sklípek. Usedlost je obklopena úrodnou půdou a ovocným sadem, který poskytuje nejen krásné prostředí, ale i možnost vlastní úrody. A jako bonus vám přidáme 5000m2 lesa 2km daleko! Hlavní přednosti: Dvě obytné budovy, první ihned obyvatelná s novou elektřinou a plynovým topením, vše s možností další rekonstrukce dle vlastních představ Ideální prostředí a dostatek místa i pro chovná a domácí zvířata Velké půdní prostory (165m2+32m2) vhodné k vestavbě či rozšíření obytné plochy Stodola ideální pro hospodářské využití, skladování nebo přestavbu na ateliér či dílnu Vinný sklípek autentický prvek s atmosférou, vhodný pro uchování vína či potravin a posezení s výhledem Ovocný sad, zahrada a úrodná půda možnost pěstování, zahradničení nebo drobného hospodaření Vlastní studna nezávislý zdroj vody, obecní přípojka vody u domu Plyn a elektřina kompletní inženýrské sítě zavedeny Klidná lokalita s čistým ovzduším, ideální pro rodinný život i odpočinek Obec Kojice leží v malebném prostředí Polabí, s výbornou dostupností autem (obchvat) i vlakem do Pardubic, Kolína i Prahy. Díky okolní přírodě, rybníkům a blízkosti Labe je to skvělé místo pro milovníky klidu, rybaření, myslivosti, cykloturistiky i procházky v přírodě. Potraviny, hřiště s hospodou, MŠ na místě, vše ostatní v blízkém okolí, viz web obce. Možnosti využití: Rodinné bydlení s velkou zahradou a hospodářským zázemím pro zvířata Rekreační usedlost pro víkendové pobyty a odpočinek Investiční příležitost přestavba na penzion, agroturistiku, vícegenerační bydlení nebo jiný druh podnikání Tato usedlost v Kojicích nabízí jedinečnou kombinaci tradiční atmosféry, velkého pozemku a širokých možností využití. Je ideální pro ty, kteří hledají klidné místo k životu, chtějí hospodařit, nebo hledají zajímavou investici s potenciálem -viz také vizualizace mezi fotkami... Nenechte si uniknout tuto unikátní příležitost! S případnou hypotékou vám rádi pomůžeme Pište či volejte pro více informací a termín prohlídky. Díky a budu se těšit



Nahoru