Prodej stavebních pozemků o výměře 13.327 m2 11 parcel. Nepomuk., Vrčeň
Makléř: Zdeněk Polesný
Telefon: 777 852 ...
E-mail: info@zde ...
Zobrazit celý kontaktTelefon: 777 852 905
E-mail: info@zdenekpolesny.cz
prodej
Pozemky, Pozemky pro stavbu RD, bytů
239
02.01.2026
13 327 m2
Makléř: Zdeněk Polesný
Telefon: 777 852 ...
E-mail: info@zde ...
Zobrazit celý kontaktTelefon: 777 852 905
E-mail: info@zdenekpolesny.cz
Nemovitost nabízí
Zdeněk Polesný
K Dráze 425/37, Plzeň
Zobrazit kontakt na RK
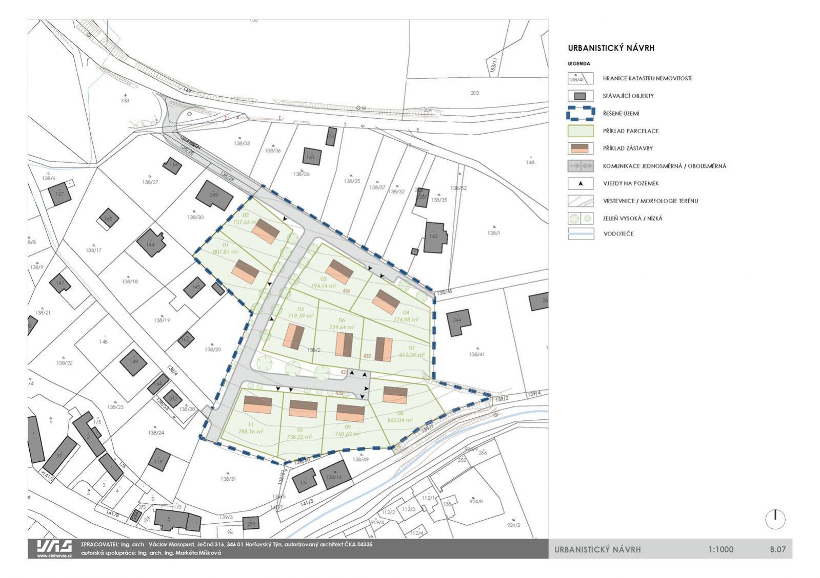
Představujeme nově vzniklou lokalitu určenou pro výstavbu 11. rodinných domů o celkové výměře 13.327 m2! Jedná se o zcela novou lokalitu o 11 parcelách v obci Vrčeň, ležící cca 3km od Nepomuka. Dle územního plánu je lokalita Vrčeň Z03 určena pro výstavbu rodinných domů. Předmětem prodeje jsou pozemky p.č.: 139/1, 138/2, 138/29,138/28, 139/34 o celkové výměře 13.327 m2. V lokalitě již byla zpracována územní studie, která je schválená zastupitelstvem obce. Dále pak stanovisko Povodí Vltavy a vyjádření od Kanalizace a Vodovody Starý Plzenec a.s., ohledně dostatečné kapacity vodovodu. V lokalitě je také naplánována obecní kanalizace, do její realizace bude využívána k rodinným domům DČOV se zásakem (viz. stanovisko Povodí Vltavy). Na budoucím investorovi bude lokalitu zasíťovat a tyto pozemky prodat nebo na nich postavit nové RD, případně investici kombinovat. Pro jakékoliv další informace kontaktujte makléře nebo si zavolejte rovnou o prohlídku. Jedinečná investice, DOPORUČUJEME!
Prodej pozemku k bydlení, 1884 m2, Drahkov
Nabízíme k prodeji atraktivní stavební pozemek o rozloze 1885 m2 v malebné lokalitě na okraji obce Drahkov. Tento pozemek je ideální pro výstavbu…
Stavební pozemek s parcelou o celkové ploše 2909 m2 v obci Prádlo, okres Plzeň-jih
Nabízíme dva na sebe plynule navazující pozemky v obci Prádlo (Plzeň-jih). Pozemky se prodávají jako jeden celek o celkové výměře 2909m2. Stavební…