Vybírejte z nabídky 38 708 nemovitostí od 825 realitních kanceláří
lupa mobilní menu
Přehled nemovitostí: prodej domy > rodinné domy > Valtice Zpět na přehled nabídek

Prodej rodinného domu 5+1, 222 m, zahrada, garáž, Valtice

Prodejce

Makléř: Igor Kahánek

Telefon: 608 776 ...

E-mail: kahanek@ ...

Zobrazit celý kontakt

prodej

Valtice (okres Břeclav)

21. dubna

Domy, Rodinné domy

00143

18.11.2025

2

880 m2

neuvedeno

G - Mimořádně nehospodárná

Cena: 14495000 CZK / objekt
Poznámka k ceně: včetně poplatků, včetně provize, včetně právního servisu 1
Prodejce

Makléř: Igor Kahánek

Telefon: 608 776 ...

E-mail: kahanek@ ...

Zobrazit celý kontakt
Poslat dotaz k nabídce
Zásady používání osobních údajů

Nemovitost nabízí

/loga_velka/1691.jpg

Úvěrové Centrum Reality s.r.o.

Dukelských hrdinů 2772/21, 69002 Břeclav

www.uverove-centrum.cz/reality

Zobrazit kontakt na RK

Zobrazit všechny nabídky RK

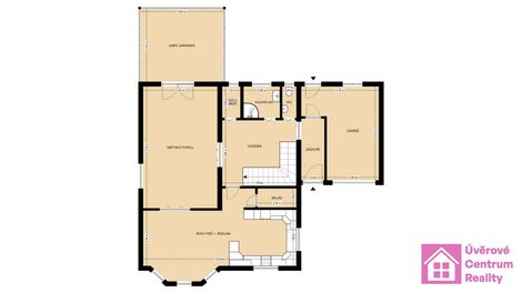
Hledáte ke koupi prostorný rodinný dům se zahradou, bazénem a garáží ve Valticích? Ve výhradním zastoupení Vám zprostředkuji koupi novostavby rodinného domu o velikosti 5+1, v ulici 21.dubna č.p. 1113, v městečku Valtice, okres Břeclav. Dům byl kolaudován v 09/2016. Zastavěná plocha domu 150 m s pozemkem o celkové ploše 880 m a celkovou plochou 222 m. Dispozice domu: 1.nadzemní podlaží: garáž, zádveří, chodba, schodiště, toaleta, koupelna (se sprchovým koutem), technická místnost, obývací pokoj, zimní zahrada, jídelna s kuchyní a špajz. 2.nadzemní podlaží: schodiště, pokoj, chodba, koupelna (vana), toaleta, pracovna a tři pokoje. Půdorysy obou podlaží domu naleznete ve fotogalerii. Vytápění a ohřev vody v domě je zajištěn plynovým kondenzačním kotlem. Rozvody topení v mědi s deskovými radiátory Korado, druhým zdrojem tepla nebo chlazení jsou klimatizační jednotky s tepelnými čerpadly. Dům je napojen na veškeré inženýrské sítě. Celý pozemek domu je oplocen. Zahrada s vzrostlými stromy a krytým bazénem zajištuje dostatek soukromí. Pro Vaše děti je před domem, avšak na oploceném pozemku menší dětské hřiště. Město Valtice disponuje kompletní občanskou vybaveností (mateřská škola, základní škola, střední škola, lékař, několik restaurací, obchod, pošta, kostel a jiné) Na dálnici D2 (Brno Bratislava) dojedete za 17 minut. Do okresního města Břeclav nebo do Mikulova za 15 minut. Dále je zde možné doprava autobusem nebo vlakem. Ihned k předání. Zaujala Vás tato nabídka? Máte zájem o prohlídku domu? Vám vyhovující termín prohlídky (datum a čas) s kontakty na Vás (e-mail + tel. číslo) zasílejte formou odpovědi na tuto inzerci. Realitní makléř Vás následně bude telefonicky kontaktovat a domluví se s Vámi na přesném termínu prohlídky domu.



Nahoru