Vybírejte z nabídky 38 714 nemovitostí od 825 realitních kanceláří
lupa mobilní menu
Přehled nemovitostí: pronájem byty > 3+1 > Praha Zpět na přehled nabídek

Pronájem bytu 3+1, Pujmanové, Nusle, 27000 Kč/měs, 68 m2, Praha

Prodejce

Makléř: Miloslava Kačerová

Telefon: 222 703 ...

E-mail: podpora@ ...

Zobrazit celý kontakt

pronájem

Praha (okres Praha 4)

Pujmanové

Byty, Byt 3+1

N6861

28.11.2025

7 (dům má 7 podlaží)

osobní

68 m2

68 m2

B - Velmi úsporná

Cena: 23700 CZK / objekt / měsíc
Poznámka k ceně: vratná jistota, náklady na bydlení 7139 Kč, poplatek za podnájem 1
Prodejce

Makléř: Miloslava Kačerová

Telefon: 222 703 ...

E-mail: podpora@ ...

Zobrazit celý kontakt
Poslat dotaz k nabídce
Zásady používání osobních údajů

Nemovitost nabízí

/loga_velka/9652.jpg

Ideální nájemce

Lazaretní 925/9, 615 00 Brno

idealninajemce.cz

Zobrazit kontakt na RK

Zobrazit všechny nabídky RK

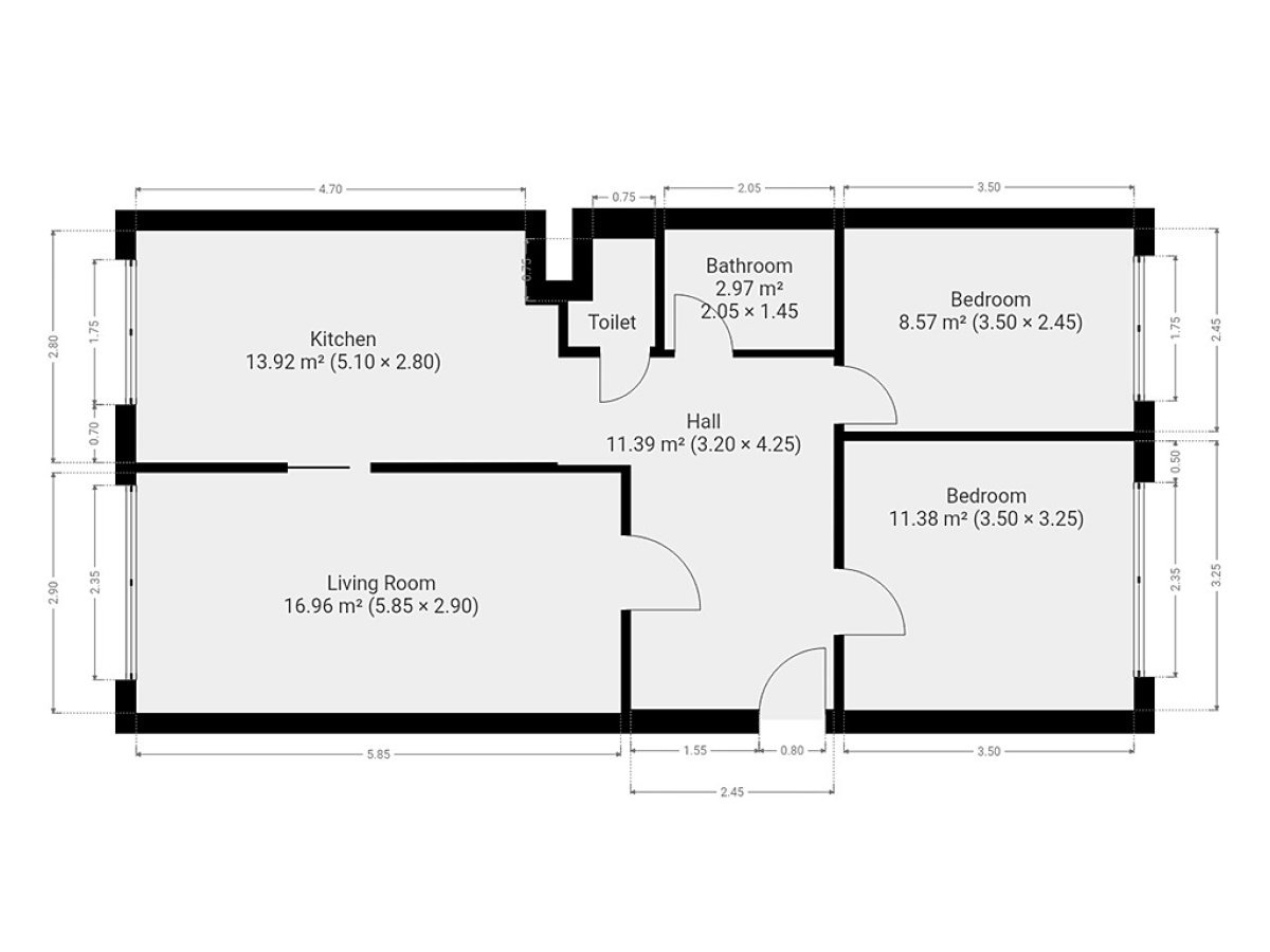
Ke krátkodobému podnájmu a to do 31.8.2026, nabízíme světlý byt o dispozici 3+1 v oblíbené lokalitě Praha 4 - Nusle, ideálně pro tři osoby. Byt o celkové výměře 68 m2 se nachází v 7. patře udržovaného panelového domu s výtahem. Střecha domu je nově zateplena a byt má výborné zvukové izolační vlastnosti. K bytu náleží také praktický sklep. Byt je nabízen částečně vybavený, což dává možnost doladit si interiér podle vlastního vkusu. Kuchyně je vybavena lednicí s mrazákem, elektrickou troubou, varnou deskou, digestoří, myčkou a jídelním koutem. Obývací pokoj je zařízen pohovkou, konferenčním stolem a úložným prostorem. K dispozici jsou rovněž dva samostatné pokoje, které lze využít jako ložnice, dětský pokoj nebo pracovna. Oba jsou vybaveny postelí a úložným prostorem. Koupelna je vybavena vanou, umyvadlem, koupelnovou skříňkou a pračkou, toaleta je umístěna samostatně. V okolí domu je kompletní občanská vybavenost - nákupní centrum Arkády Pankrác, supermarket Albert, restaurace a kavárny, školy a školky, lékařská péče, sportovní vyžití. Pro volný čas je ideální blízký Centrální park Pankrác, vzdálený jen pár minut chůze. Výbornou dopravní dostupnost zajišťuje blízká stanice metra C- Pankrác nebo autobusová doprava. Byt je volný k nastěhování ihned. Domácí mazlíčci v bytě jsou povoleni. Energetická třída: B (velmi úsporná).



Nahoru