Vybírejte z nabídky 36 708 nemovitostí od 816 realitních kanceláří
lupa mobilní menu
Přehled nemovitostí: pronájem komerční > obchodní prostory > Brno Zpět na přehled nabídek

Pronájem, Prostory a objekty pro obchod a služby, Brno

Prodejce

Makléř: Petra Baťková

Telefon: 731 193 ...

E-mail: batkova@ ...

Zobrazit celý kontakt

pronájem

Brno (okres Brno-město)

Bubeníčkova

Komerční, Obchodní prostory

652844

16.01.2026

osobní

193 m2

D - Méně úsporná

Cena: 59000 CZK / objekt / měsíc
Poznámka k ceně: (+ 11.000,- Kč zálohy na energie a služby) 1
Prodejce

Makléř: Petra Baťková

Telefon: 731 193 ...

E-mail: batkova@ ...

Zobrazit celý kontakt
Poslat dotaz k nabídce
Zásady používání osobních údajů

Nemovitost nabízí

/loga_velka/6242.jpg

Dumrealit.cz

Svornosti 8, 150 00 Praha 5

www.dumrealit.cz

Zobrazit kontakt na RK

Zobrazit všechny nabídky RK

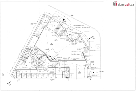
Dumrealit.cz Vám zprostředkuje pronájem obchodního prostoru o výměře 193m2 v přízemí budovy na frekventované ulici Bubeníčkova, Brno - Židenice. Vstup do prostoru přímo z ulice. Kolaudace proběhla v roce 2000. Jedná se o velmi lukrativní a reprezentativní prostor, vhodný pro banku, finanční služby, showroom, kanceláře, právní služby...aj. Prostor tvoří: - hlavní - obchodní prostor 118m2 a dále zázemí - denní místnost s kuchyňkou - sociální zařízení pro zaměstnance - šatna - úklidová místnost - trezorová místnost + sklad Prostor je vybaven klimatizací, vzduchotechnikou, datovou sítí, klimatizovanou serverovnou, zabezpečovacím systémem. Prostory je možno označit vlastní značkou či světelnou reklamou na budově. Prostor bude k dispozici od 1.3.2026, ale možno dohodnout i na dřívějším termínu uvolnění. Při podpisu nájemní smlouvy bude požadována úhrada nájemného + zálohy, vratná kauce a provize realitní kanceláře 1měsíční nájemné +DPH. V případě dotazů či domluvení prohlídky kontaktujte makléře. Ev. číslo: 652844. Energetický štítek: D



Nahoru