Vybírejte z nabídky 38 816 nemovitostí od 827 realitních kanceláří
lupa mobilní menu
Přehled nemovitostí: prodej pozemky > stavební pozemky > Fulnek Zpět na přehled nabídek

Stavební pozemek se stavebním povolením a výhledem na Beskydy, Zámek Fulnek

Prodejce

Makléř: Rubina Patrik

Telefon: 720 044 ...

E-mail: patrik.r ...

Zobrazit celý kontakt

prodej

Fulnek (okres Nový Jičín)

Pozemky, Pozemky pro stavbu RD, bytů

965631

osobní

1 229 m2

Cena: 1960000 CZK / objekt
Prodejce

Makléř: Rubina Patrik

Telefon: 720 044 ...

E-mail: patrik.r ...

Zobrazit celý kontakt
Poslat dotaz k nabídce
Zásady používání osobních údajů

Nemovitost nabízí

/loga_velka/10049.webp

CENTURY 21 Real Tip

Poděbradova 909/41, 702 00 Ostrava

www.century21.cz/kancelar-real-tip

Zobrazit kontakt na RK

Zobrazit všechny nabídky RK

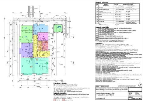
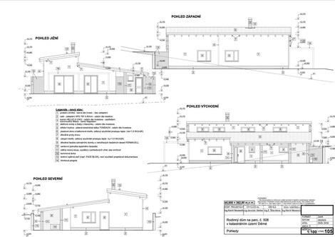
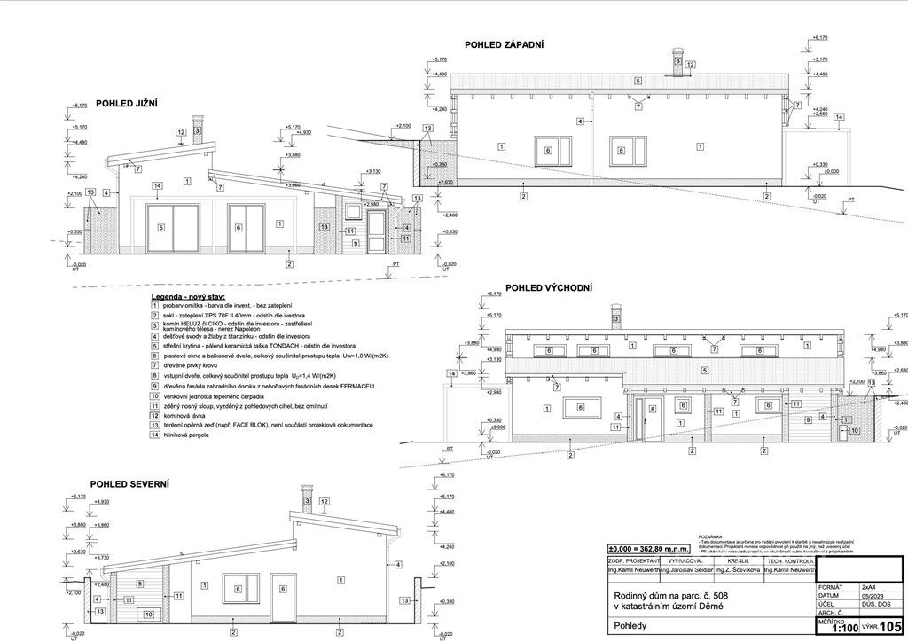
Chcete začít stavět ihned bez zbytečného čekání na úřady? Tenhle pozemek se schváleným stavebním povolením Vám to umožní. Máte sen o vlastním rodinném domě, kde se příroda snoubí s pohodlím moderního života? Tento stavební pozemek o rozloze 1229m2, s nádherným výhledem na Zámek Fulnek a Beskydy, je připraven splnit vaše očekávání. Pozemek se nachází v klidné části Fulneku - Děrné. Přímo za ním se rozprostírá louka, kde se pasou koně, a okolí doplňují pole a lesík, které zajistí absolutní soukromí a pohodu. Všechny inženýrské sítě jsou na hranici pozemku a součástí stavebního povolení je i výstavba příjezdové cesty, přípojek a čističky odpadních vod. V dosahu máte vše potřebné obchod je 4 minuty pěšky, zastávka autobusu jen 270 metrů, v centru Fulneku jste autem za 5 minut a do Ostravy se dostanete během 25 minut po dálnici. Tento pozemek kombinuje klid venkova s výhodami města. Navíc díky orientaci pozemku na jihozápad si budete moct vychutnat nespočet západů slunce přímo z Vašeho obýváku. Navíc je již schválené stavební povolení na moderní jednopodlažní dům 4+kk o užitné ploše 103m2. Tento jednopodlažní dům je navržen tak, aby splňoval potřeby moderní rodiny velký obývací pokoj s kuchyňským koutem, odkud se přes francouzská okna dostanete na prostornou terasu s výhledem na zahradu, zámek Fulnek a Beskydy. Samostatná ložnice s šatnou bude váš klidný úkryt s dostatkem místa pro vše potřebné. V domě jsou další dva pokoje, z nichž jeden má přímý vstup ze zahrady. Díky tomu je ideální jako pracovna nebo pokoj pro hosty. Prostorná koupelna je vybavena vanou i sprchovým koutem. Technická místnost a venkovní sklad zajistí dostatek místa pro sezónní věci nebo zahradní vybavení. Podlahové topení a kamna v obývacím pokoji nabízí maximální komfort a úsporu peněz. Kryté parkovací stání pro vaše auto zajistí, že už nikdy nebudete muset ometat sníh z auta. Jste připraveni postavit svůj vysněný domov? Zavolejte mi pro více informací a domluvíme si prohlídku!



Nahoru