Vybírejte z nabídky 37 141 nemovitostí od 812 realitních kanceláří
lupa mobilní menu
Přehled nemovitostí: prodej domy > rodinné domy > Rataje Zpět na přehled nabídek

Pasivní novostavba 4+kk s dvojgaráží v obci Rataje u Kroměříže

Prodejce

Makléř: Grossmanová Lenka

Telefon: 420 226 ...

E-mail: synergy@ ...

Zobrazit celý kontakt

prodej

Rataje (okres Kroměříž)

Domy, Rodinné domy

968059

23.12.2025

2

osobní

412 m2

98 m2

A - Mimořádně úsporná

Cena: 8950000 CZK / objekt
Poznámka k ceně: Včetně provize a právního servisu 1
Prodejce

Makléř: Grossmanová Lenka

Telefon: 420 226 ...

E-mail: synergy@ ...

Zobrazit celý kontakt
Poslat dotaz k nabídce
Zásady používání osobních údajů

Nemovitost nabízí

/images/img-no-foto-small.png

Century 21 Synergy

Ke Štvanici 656/3, 180 00 Praha 8 - Karlín

www.century21.cz/kancelar-synergy

Zobrazit kontakt na RK

Zobrazit všechny nabídky RK

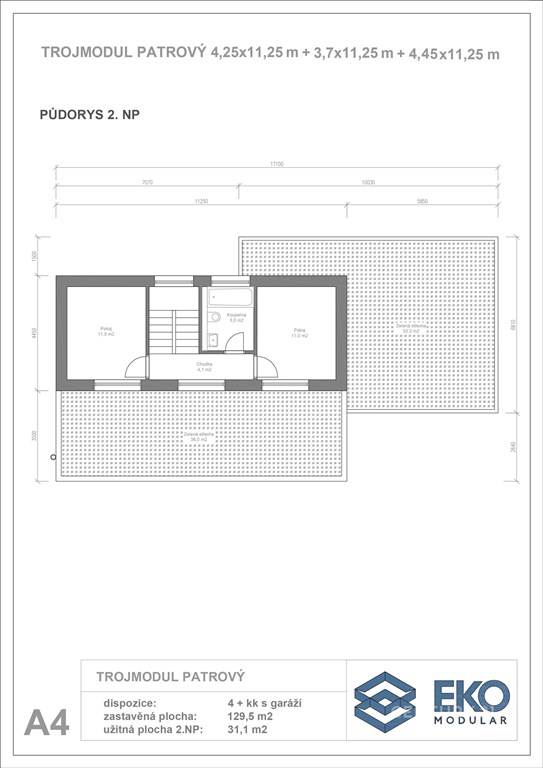
REZERVOVÁNO! Představuji vám právě dokončený pasivní rodinný dům, který se nachází v malebné obci Rataje v okrese Kroměříž, ve Zlínském kraji. Tento moderní dům s dispozicí 4+kk nabízí 98 m2 obytné plochy a stojí na pozemku o rozloze 412 m2. Součástí domu je garáž pro dva automobily (36 m2) a terasa o velikosti 33,8 m2, která plynule navazuje na obývací prostor. Zahrada poskytne dostatek prostoru pro odpočinek i rodinné aktivity na čerstvém vzduchu, zároveň vám ale nesebere celý víkend při jejím sekání. Pozemek je zavezen novou zeminou, takže je připraven k dalším úpravám přesně podle představ nového majitele. Dům byl navržen s maximálním důrazem na energetickou efektivitu a ekologii. Jedná se o pasivní novostavbu, spadající do energetické třídy A, s mimořádně nízkou spotřebou energie. Na střeše garáže jsou fotovoltaické panely pro ohřev vody. O komfortní a úsporný provoz se stará vzduchové tepelné čerpadlo, podlahové vytápění a nechybí ani rekuperace. Díky tomu jsou provozní náklady velmi nízké a bydlení mimořádně komfortní. Interiér je řešen moderně a funkčně - světlý obývací pokoj s kuchyní a jídelnou tvoří otevřené a útulné srdce celého domu. Z obývací části se vstupuje přímo na terasu, ideální pro relaxaci nebo posezení s rodinou. V přízemí se dále nachází malá, ale velmi užitečná komora pod schodištěm, ložnice s šatnou (případně vhodná i jako pracovna), technická místnost a vstupní chodba s dostatkem prostoru pro vestavěnou šatní stěnu. V každém patře je navíc koupelna s toaletou - v přízemí se sprchovým koutem, v patře s vanou. V horním patře najdete dva pokoje s okny orientovanými do zahrady, které nabízejí klid a soukromí pro každého člena rodiny. Dům je zcela nový - právě probíhá kolaudační řízení. K dispozici jsou všechny inženýrské sítě: elektřina (220 V), veřejný vodovod i kanalizace. Rataje nabízejí příjemné prostředí s rychlou dostupností do Kroměříže, krásnou přírodou v okolí a zázemím pro pohodový rodinný život. Pokud hledáte moderní, pasivní a úsporné bydlení s minimálními provozními náklady, které kombinuje komfort, styl a blízkost přírody, může být právě tento dům tím místem, kde se budete cítit opravdu doma. Cena domu nezahrnuje kuchyňskou linku a osvětlení. Tyto prvky tak může nový majitel dotvořit podle vlastního vkusu a potřeb.



Nahoru