PRODEJ DOMU 2+1, PONĚTOVSKÁ PRACE, Prace
Makléř: Gablas David
Telefon: 420 538 ...
E-mail: bonusbrn ...
Zobrazit celý kontaktTelefon: 420 538 728 645
E-mail: bonusbrno@century21.cz
prodej
Ponětovská
969335
1
osobní
482 m2
80 m2
G - Mimořádně nehospodárná
Makléř: Gablas David
Telefon: 420 538 ...
E-mail: bonusbrn ...
Zobrazit celý kontaktTelefon: 420 538 728 645
E-mail: bonusbrno@century21.cz
Nemovitost nabízí
CENTURY 21 Bonus Brno
Křenová 479/71, Brno
www.century21.cz/kancelar-bonus-brno
Zobrazit kontakt na RK737 199 849
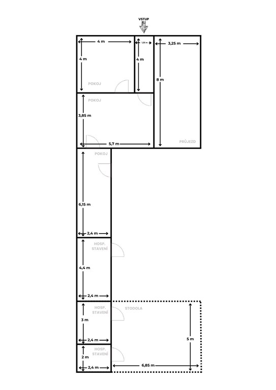
Dostatečná uliční šíře, zahrada se soukromím a možnost parkování na vlastním pozemku… To jsou základní parametry právě tohoto řadového rodinnému domu s dispozicí 2+1, který se nachází na ulici Ponětovská v obci Prace. Podlahová plocha domu činí přibližně 58 m2, přičemž na hlavní stavbu navazují hospodářské přístavky o ploše cca 22,6 m2 a otevřená stodola s výměrou 33,5 m2. Hospodářské přístavky jsou částečně podsklepené. Celková plocha pozemku činí 482 m2. Dům je svým stavem určen ke generální rekonstrukci nebo demolici. Dle současného územního plánu lze u nové výstavby počítat s jedním nadzemním podlažím a obytným podkrovím. Dále je potřeba počítat se sedlovou střechou. Minimální poměr zeleně na pozemku musí činit 40 %. Současná konstrukce domu je ze smíšeného zdiva a není zateplena. Základy jsou smíšené kamenné bez hydroizolací. Okna jsou původní - dřevěná kastlová. Na domě je v uliční části sedlová střecha a ve dvorní části pak pultová. Do domu je zavedena elektřina a je zde také zbudovaná přípojka k plynu (aktuálně odpojeno). Vodovodní a kanalizační řád je doveden do průjezdu domu. Přípojky do domu nejsou vybudovány. Na pozemku je dále studna na užitkovou vodu. Dispozice domu se skládá ze vstupní chodby a tří pokojů. V současném dispozičním řešení není koupelna ani WC. Jak již bylo zmíněno v úvodu, hlavními přednostmi nemovitosti je zejména uliční šíře, která Vám umožní jednak parkovat více vozidel přímo na pozemku, ale zajistí také lepší obslužnost zahrady. Další devízou je bezesporu prostorná zahrada s dostatkem soukromí, na kterou se Vám bez větší námahy vejde i bazén a zbude dostatek místa pro drobné zahradničení. Pokud tedy právě hledáte nemovitost, která má zajímavý pozemek, dobrou uliční šíři a nebojíte se pustit do větší rekonstrukce či výstavby, pak by pro Vás tato možnost mohla být tou pravou. Nemovitost je k dispozici ihned, prohlídky jsou možné po předchozí telefonické dohodě.
Prodej rodinného domu 4+kk v obci Prace s pozemkem o celkové ploše 266 m2
Nabízíme novostavbu patrového rodinného domu 4+kk o užitné ploše 140 m2, vč. terasy, ležící v obci Prace (ul. Blažovská, parcelní číslo. 398/2 a 399…
Novostavba NED 4+kk s garáží, Prace
Dvoupodlažní rodinný dům se čtyřmi pokoji a garáží v řadové zástavbě v Praci u Brna (parc. č. 398). Dům je ve fázi výstavby, předpokládané dokončení…