Vybírejte z nabídky 38 842 nemovitostí od 826 realitních kanceláří
lupa mobilní menu
Přehled nemovitostí: prodej byty > 2+kk > Vimperk Zpět na přehled nabídek

Prodej bytu 2+KK investiční příležitost, Vimperk

Prodejce

Makléř: Bardová Marie

Telefon: 724 217 ...

E-mail: marie.ba ...

Zobrazit celý kontakt

prodej

Vimperk (okres Prachatice)

Jirchářská

Byty, Byt 2+kk

968579

26.11.2025

neuvedeno

osobní

54 m2

54 m2

G - Mimořádně nehospodárná

Cena: 3450000 CZK / objekt
Prodejce

Makléř: Bardová Marie

Telefon: 724 217 ...

E-mail: marie.ba ...

Zobrazit celý kontakt
Poslat dotaz k nabídce
Zásady používání osobních údajů

Nemovitost nabízí

/loga_velka/10061.webp

CENTURY 21 4fin Reality

Na Hřebenech II 1718/8, 140 00 Praha 4

www.4finreality.cz

Zobrazit kontakt na RK

Zobrazit všechny nabídky RK

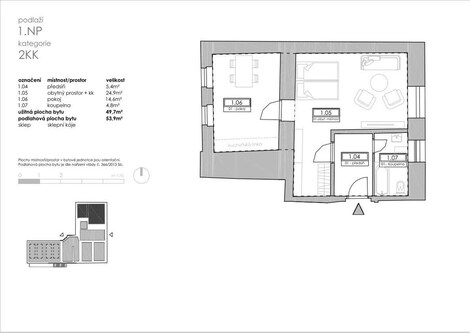
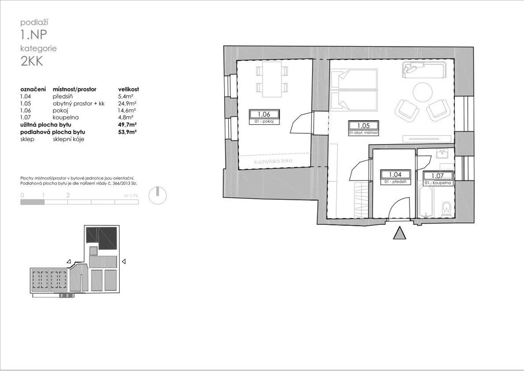
Investiční příležitost - nově zrekonstruovaný byt 2+kk, 54 m2 - Rezidence Volyňka, Vimperk Nabízím exkluzivně k prodeji nově zrekonstruovaný byt 2+kk (54 m2), který se nachází ve zvýšeném přízemí modernizovaného bytového domu v rámci projektu Rezidence Volyňka. Tento byt je součástí první etapy výstavby a představuje ideální investici - jak pro dlouhodobý pronájem, tak i jako startovací byt s jistým zhodnocením do budoucna. O projektu Rezidence Volyňka je unikátní projekt, který přetváří areál bývalých tiskáren ve Vimperku v moderní rezidenční komplex s více než 60 bytovými jednotkami. Projekt propojuje industriální charakter s moderním designem a vysokým standardem provedení. Díky tomu se stává jedinečnou příležitostí pro investory, kteří chtějí být u zrodu nového rezidenčního centra regionu s velkým růstovým potenciálem. Dispozice bytu Byt nabízí praktické a promyšlené uspořádání: vstupní předsíň, koupelnu s vanou a WC, obývací pokoj / ložnici, kuchyň s jídelnou (příprava na kuchyňskou linku), francouzské okno s výstupem na malý dvorek - ideální pro relax nebo posezení. Byt je nezařízený, připravený k okamžitému vybavení dle vlastních představ. Majitel navíc nabízí slevu 10 % na nákup nábytku včetně kuchyňské linky v přilehlém nábytkovém studiu - součásti celého komplexu. Lokalita Vimperk nabízí kompletní občanskou vybavenost - školy, školky, úřady, poštu, restaurace, obchody i lékaře.Navíc se nachází v bráně Šumavy, v oblasti s celoroční turistickou atraktivitou.To zaručuje vysokou poptávku po pronájmu - jak dlouhodobém, tak rekreačním. Proč investovat právě zde? ✅ Atraktivní výnos z dlouhodobého i krátkodobého pronájmu. ✅ Nízké vstupní náklady oproti větším městům. ✅ Stabilní poptávka po moderních bytech v regionu. ✅ Projekt s růstovým potenciálem - nově vznikající rezidenční čtvrť. ✅ Možnost hypotéky a kompletní finanční servis od zkušeného týmu. Rezidence Volyňka - místo, kde se investice proměňuje v jistotu. Tento byt spojuje moderní standard, atraktivní lokalitu a dlouhodobou hodnotu. Kontaktujte mě pro více informací nebo domluvte osobní prohlídku - takové příležitosti se dlouho neobjevují.



Nahoru