Vybírejte z nabídky 36 426 nemovitostí od 815 realitních kanceláří
lupa mobilní menu
Přehled nemovitostí: prodej byty > 2+kk > Vimperk Zpět na přehled nabídek

AKCE PREMIUM: UŽ NEČEKEJTE! Prodej bytu 2+KK investiční příležitost, Vimperk

Prodejce

Makléř: Bardová Marie

Telefon: 724 217 ...

E-mail: marie.ba ...

Zobrazit celý kontakt

prodej

Vimperk (okres Prachatice)

Jirchářská

Byty, Byt 2+kk

968579

19.01.2026

neuvedeno

osobní

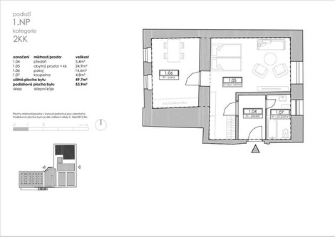
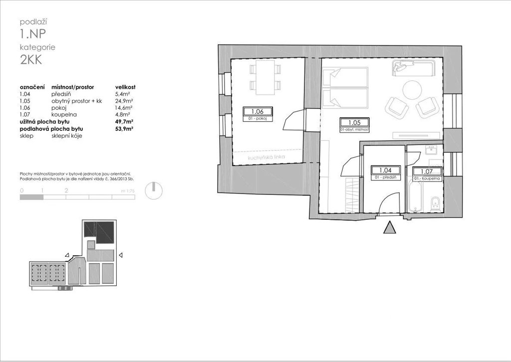
54 m2

54 m2

G - Mimořádně nehospodárná

Cena: 3186000 CZK / objekt
Prodejce

Makléř: Bardová Marie

Telefon: 724 217 ...

E-mail: marie.ba ...

Zobrazit celý kontakt
Poslat dotaz k nabídce
Zásady používání osobních údajů

Nemovitost nabízí

/loga_velka/10061.webp

CENTURY 21 4fin Reality

Na Hřebenech II 1718/8, 140 00 Praha 4

www.4finreality.cz

Zobrazit kontakt na RK

Zobrazit všechny nabídky RK

AKCE PREMIUM: UŽ NEČEKEJTE! NEJLEPŠÍ CENA ZA NOVÉ BYDLENÍ VE VIMPERKU! Jedinečné 2+KK v Rezidenci Volyňka. STOP ZVYŠOVÁNÍ CEN! Nenechte si ujít nejvýhodnější nabídku v celém projektu Rezidence Volyňka. Máte jedinečnou šanci získat moderní, zrekonstruovaný byt k okamžitému nastěhování za PREMIUM CENU, která se již nebude opakovat! Majitel spouští časově omezenou prodejní akci: PREMIUM CENA: JEN 59 000 Kč/m2! Podmínky pro získání slevy Tato exkluzivní nabídka platí pouze pro nejrychlejší zájemce a je striktně podmíněna: 1. Podpisem kupní smlouvy 2. Složením celé kupní ceny A to vše nejpozději do: 31. LEDNA 2026! Proč jednat IHNED? FINANČNÍ JISTOTA: Fixní cena 59 000 Kč/m2 je výrazně pod standardní tržní hodnotou nového bydlení v lokalitě. Je to transparentní úspora. K OKAMŽITÉMU UŽÍVÁNÍ: Byty jsou dokončené, zkolaudované a připravené k nastěhování. Žádné čekání na dokončení stavby, bydlíte hned! KVALITA A PRESTIGE: Získáváte byt v unikátním projektu Rezidence Volyňka (bývalé tiskárny), který kombinuje industriální historii s moderním rezidenčním komfortem, přímo u řeky Volyňky a na dohled od Šumavy. Neodkládejte prohlídku! Volejte dnes a zarezervujte si svůj byt, než ho získá někdo jiný za PREMIUM CENU 59 000 Kč/m2! Investiční příležitost - nově zrekonstruovaný byt 2+kk, 54 m2 - Rezidence Volyňka, Vimperk Tento byt je součástí první etapy výstavby a představuje ideální investici - jak pro dlouhodobý pronájem, tak i jako startovací byt s jistým zhodnocením do budoucna. O projektu Rezidence Volyňka je unikátní projekt, který přetváří areál bývalých tiskáren ve Vimperku v moderní rezidenční komplex s více než 60 bytovými jednotkami. Projekt propojuje industriální charakter s moderním designem a vysokým standardem provedení. Díky tomu se stává jedinečnou příležitostí pro investory, kteří chtějí být u zrodu nového rezidenčního centra regionu s velkým růstovým potenciálem. Byt nabízí praktické a promyšlené uspořádání: vstupní předsíň, koupelnu s vanou a WC, obývací pokoj / ložnici, kuchyň s jídelnou (příprava na kuchyňskou linku), francouzské okno s výstupem na malý dvorek - ideální pro relax nebo posezení. Byt je nezařízený a majitel navíc nabízí slevu 30 % na nákup nábytku včetně kuchyňské linky v přilehlém nábytkovém studiu - součásti celého komplexu. Vimperk nabízí kompletní občanskou vybavenost - školy, školky, úřady, poštu, restaurace, obchody i lékaře.Navíc se nachází v bráně Šumavy, v oblasti s celoroční turistickou atraktivitou.To zaručuje vysokou poptávku po pronájmu - jak dlouhodobém, tak rekreačním. Proč investovat právě zde? ✅ Atraktivní výnos z dlouhodobého i krátkodobého pronájmu. ✅ Nízké vstupní náklady oproti větším městům. ✅ Stabilní poptávka po moderních bytech v regionu. ✅ Projekt s růstovým potenciálem - nově vznikající rezidenční čtvrť. ✅ Možnost hypotéky a kompletní finanční servis od zkušeného týmu. Kontaktujte mě pro více informací nebo domluvte osobní prohlídku - takové příležitosti se dlouho neobjevují.



Nahoru