Kanceláře Olomoucká 77, Brno
Makléř: Friedbergová Iveta
Telefon: 734 799 ...
E-mail: iveta.fr ...
Zobrazit celý kontaktTelefon: 734 799 447
E-mail: iveta.friedbergova@century21.cz
pronájem
Olomoucká
Komerční, Kanceláře a administrativní prostory
969560
08.01.2026
44 m2
G - Mimořádně nehospodárná
Makléř: Friedbergová Iveta
Telefon: 734 799 ...
E-mail: iveta.fr ...
Zobrazit celý kontaktTelefon: 734 799 447
E-mail: iveta.friedbergova@century21.cz
Nemovitost nabízí
CENTURY 21 4fin Reality
Na Hřebenech II 1718/8, 140 00 Praha 4
Zobrazit kontakt na RK
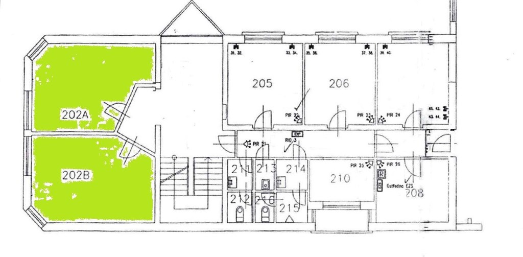
K pronájmu nabízíme dvě kanceláře v moderní administrativní budově na ulici Olomoucká v Brně. Kanceláře se nacházejí v 1. patře, jsou orientovány na jih. Každá kancelář má samostatný vstup, ale jsou i vzájemně propojené uzamykatelnými dveřmi. Celková plocha činí 44 m2 (21,3 m2 a 23,3 m2 ). Měsíční náklady: nájemné 13.000, Kč, paušální platby: odvoz odpadu 600, Kč, údržba komunikace 500, Kč, úklid spol. prostor 400, Kč, ostraha 600, Kč Zúčtovatelné zálohy: elektřina 2 500, Kč, topení plyn 2.500,Kč, voda 1000, Kč Všechny ceny + DPH. Majitel požaduje vratnou kauci ve výši jednoho měsíce včetně všech záloh, tedy: 21.100, Kč + DPH. Lokalita je dobře dostupná autem z D1, z centra města trolejbusem. Parkování před budovou. Více informací u makléře.
Kancelář 18 m2 - Brno-Židenice, ul. Šámalova
Pronájem kanceláře 17,76 m2 v Brně - Židenicích, v ul. Šámalova. Kancelář v 1. patře administrativní budovy umístěné v průmyslovém areálu.…
Pronájem: kancelářské prostory 297 m2
BEZ PROVIZE nabízíme k pronájmu klimatizované administrativní prostory o celkové volné ploše 297 m2. Kanceláře se nachází v hlavní budově výrobního…