Vybírejte z nabídky 36 950 nemovitostí od 815 realitních kanceláří
lupa mobilní menu
Přehled nemovitostí: prodej byty > 1+1 > Abertamy Zpět na přehled nabídek

Prodej, Byt 1+1, Abertamy

Prodejce

Makléř: Petr Kraus

Telefon: 734 766 ...

E-mail: p.kraus@ ...

Zobrazit celý kontakt

prodej

Abertamy (okres Karlovy Vary)

Blatenská

Byty, Byt 1+1

650310

12.01.2026

4 (dům má 5 podlaží)

osobní

33 m2

33 m2

G - Mimořádně nehospodárná

Cena: 3300000 CZK / objekt
Poznámka k ceně: včetně právního servisu a odměny zprostředkovatele 1
Prodejce

Makléř: Petr Kraus

Telefon: 734 766 ...

E-mail: p.kraus@ ...

Zobrazit celý kontakt
Poslat dotaz k nabídce
Zásady používání osobních údajů

Nemovitost nabízí

/loga_velka/6242.jpg

Dumrealit.cz

Svornosti 8, 150 00 Praha 5

www.dumrealit.cz

Zobrazit kontakt na RK

Zobrazit všechny nabídky RK

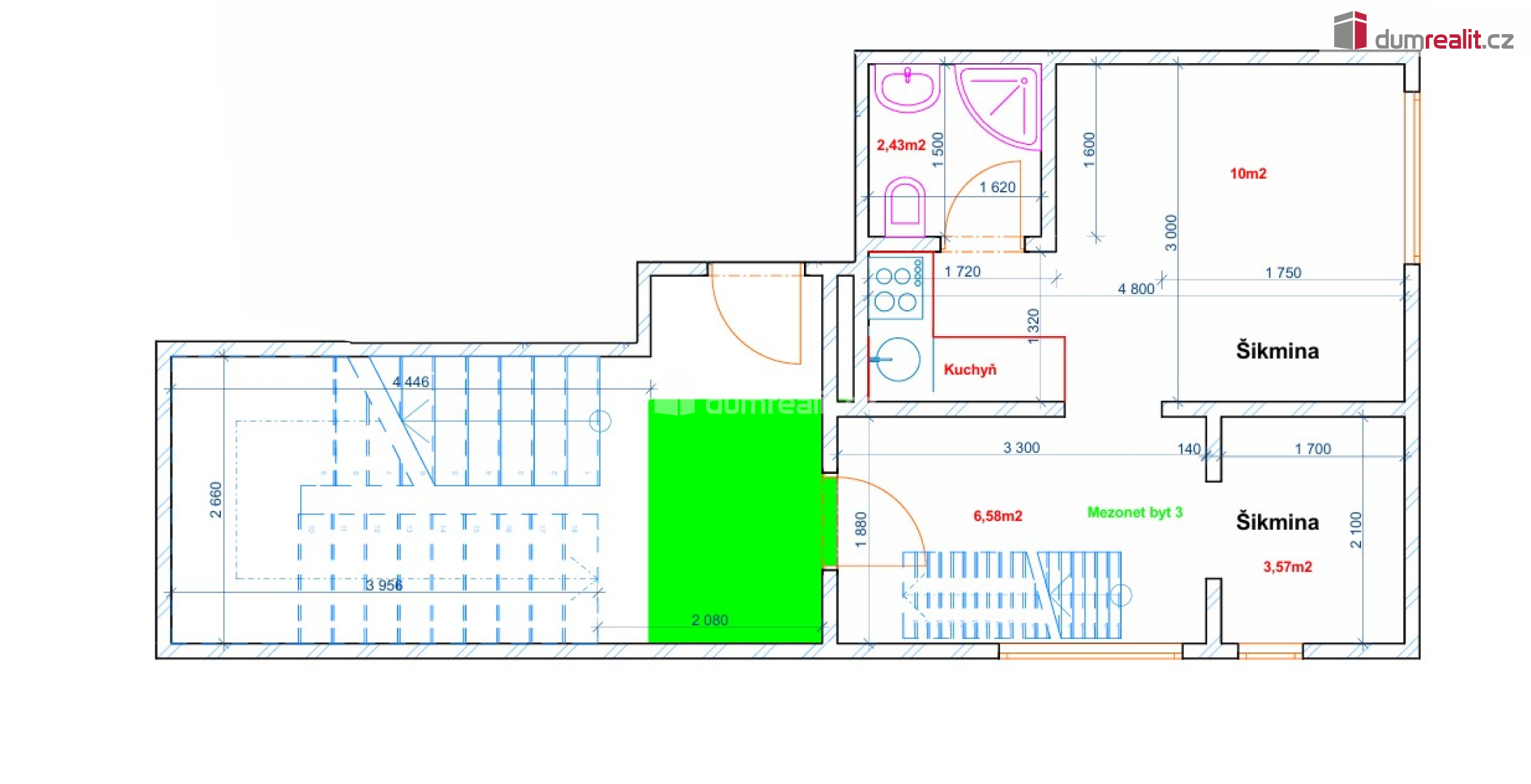
Dumrealit.cz Vám zprostředkuje exkluzivně prodej zajímavého horského apartmánu (mezonetu) 1+1 o velikosti 33 m2 v obci Abertamy, okr. Karlovy Vary. Jedná se o byt ve 3. a 4.patře cihlového domu. Byt je zařízen vkusným nábytkem a vybavením. K bytu náleží prostorný zděný sklep o velikosti 8 m2 a jedno vyhrazené parkovací stání. Budova z třicátých let 20. století byla kompletně zrekonstruována v letech 2021 - 2022 a je zateplena a opatřena plastovými okny. V přízemí se nachází nebytové prostory v současné době půjčovna kol a prádelna. Pro obytnou část je samostatný vchod. Ve třech nadzemních podlaží se nachází celkem 5 jednotek a společná chodba se schodištěm. V domě je veřejný vodovod, kanalizace a každá jednotka má vlastní elektro rozvaděč s elektroměrem. Z apartmánu je vzhledem k jeho poloze krásný výhled zejména na vrchol Plešivec. Nachází se cca. 100 metrů od náměstí a tedy i občanské vybavenosti. Vzhledem k tomu, že před zadáním do inzerce nebyl předložen PENB, je tento byt v souladu s platným zákonem zařazen do energetické třídy G. Ev. číslo: 650310. Energetický štítek: G



Nahoru