Prodej prostorné řadovky s garáží a zahradou - Soběslav III
Makléř: Machálková Dina
Telefon: 226 259 ...
E-mail: synergy@ ...
Zobrazit celý kontaktTelefon: 226 259 498
E-mail: synergy@century21.cz
prodej
Luční
968623
26.11.2025
2
osobní
302 m2
192 m2
E - Nehospodárná
Makléř: Machálková Dina
Telefon: 226 259 ...
E-mail: synergy@ ...
Zobrazit celý kontaktTelefon: 226 259 498
E-mail: synergy@century21.cz
Nemovitost nabízí
Century 21 Synergy
Ke Štvanici 656/3, 180 00 Praha 8 - Karlín
www.century21.cz/kancelar-synergy
Zobrazit kontakt na RK
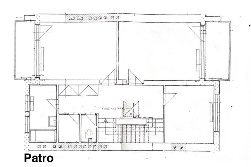
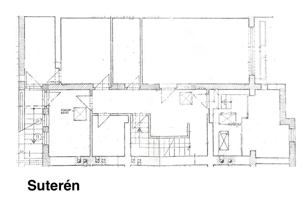
Bydlení pro rodinu nebo investiční příležitost? V srdci klidné části Soběslavi stojí dům, který čeká na novou rodinu nebo investora s vizí. Dům o užitné ploše 192 m2 se nachází na pozemku o rozloze 302 m2, z čehož 145 m2 tvoří útulná zahrada. Při vstupu do domu vás přivítá prostorná veranda a vstupní chodba s dostatkem místa pro úložné skříně. V přízemí se nachází světlý obývací pokoj s lodžií, který přímo vybízí k vybudování krbu a vytvoření hřejivé rodinné atmosféry. Kuchyň s jídelnou má přímý vstup na terasu a zahradu, kde si lze představit letní snídaně, dětské hry i večerní grilování. Nechybí samostatné WC a komora. V patře jsou tři pokoje, dva z nich s lodžií, koupelna, druhé WC a komora, takže každý člen rodiny může mít svůj pokoj a dostatek soukromí. Řadovka je v udržovaném stavu, má novou střechu, plastová okna a plně funkční plynové vytápění, je tedy ihned obyvatelný, ale zároveň nabízí potenciál k úpravám podle vlastních představ. Dům je celý podsklepený, to otevírá další možnosti využití a kromě velkého množství úložného prostoru zde lze snadno vybudovat prádelnu, dílnu nebo útulný vinný sklípek. Soběslav je město, které si vás získá svou atmosférou - spojuje klid menšího města s možnostmi, které běžně nabízí větší centra. Najdete zde dvě mateřské školy, dvě základní školy, zimní stadion, plavecký bazén s tobogány, moderní sportovní halu, tenisové kurty i cyklostezky ideální pro inline bruslení. Kultura tu má své místo - městské kino se pyšní jedinečným gaučovým posezením, které jinde v Jihočeském kraji nenajdete a místní kulturní dům pravidelně hostí koncerty, výstavy i společenské akce. Pro milovníky přírody je tu řada možností - procházky na Svákov s rozhlednou, vyhlídky na řeku Lužnici, rybaření u Nového Rybníka nebo výlety po naučných stezkách v okolí. Občanská vybavenost je kompletní - Tesco, Lidl, Penny Market, Pepco, lékárny i menší obchody, restaurace, lékaři a služby všeho druhu. Díky výborné dopravní dostupnosti a nájezdu na dálnici D3 jste v Táboře za 15 minut a v Českých Budějovicích za 35 minut. Soběslav tak nabízí ideální rovnováhu mezi pohodlím města a klidem domova. Tento dům může být vaším vysněným rodinným zázemím, kde každý najde své místo nebo skvělou investici do budoucna v lokalitě, kde je o kvalitní bydlení stále větší zájem. Fotky Vám sice řeknou hodně, ale atmosféru tohoto domu musíte zažít osobně. Domluvte si prohlídku - věřte, že stojí za to. Rádi vám poradíme s financováním a pomůžeme s celým procesem - bez zbytečných starostí.
Prodej rodinného domu v Soběslavi, ul. Na Veselském kopci
Nabízíme k prodeji samostatně stojící rodinný dům v katastrálním území Soběslav, ideálně situovaný na polosamotě, který nabízí klid a soukromí. Dům…
Prodej rodinného domu,155 m2, Soběslav, ul. U Nového rybníka
Nabízíme k prodeji prostorný rodinný dům o dispozici 6+1 a celkové ploše 396 m2 v původním, udržovaném stavu. Nemovitost se nachází v klidné a…