Rodinný dům ve Staré Boleslavi, Brandýs nad Labem-Stará Boleslav
Makléř: Lisacová Marcela DiS.
Telefon: 602 102 ...
E-mail: marcela. ...
Zobrazit celý kontaktTelefon: 602 102 745
E-mail: marcela.lisacova@century21.cz
prodej
Brandýs nad Labem-Stará Boleslav (okres Praha-východ)
Mělnická
968161
15.01.2026
1
osobní
328 m2
62 m2
G - Mimořádně nehospodárná
Makléř: Lisacová Marcela DiS.
Telefon: 602 102 ...
E-mail: marcela. ...
Zobrazit celý kontaktTelefon: 602 102 745
E-mail: marcela.lisacova@century21.cz
Nemovitost nabízí
CENTURY 21 Harmony
Plk. Švece 188/1, 251 01 Říčany
www.century21.cz/kancelar-harmony
Zobrazit kontakt na RK
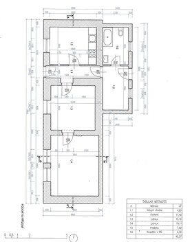
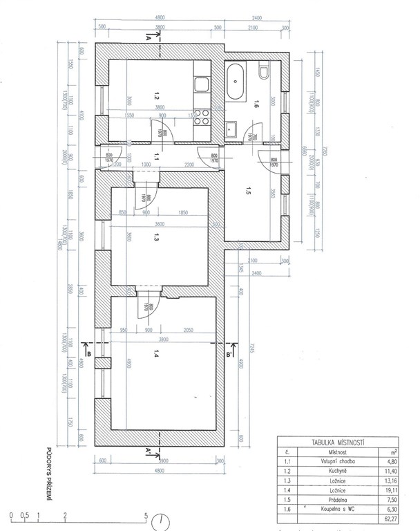
Nabízíme k prodeji rodinný dům 2+1 v klidné části Staré Boleslavi, pouhých 5 minut chůze od historického náměstí v klidné jednosměrné ulici v zástavbě rodinných domů. Dům s užitnou plochou 62 m2 stojí na pozemku o velikosti 328 m2 a nabízí velký potenciál pro rekonstrukci, modernizaci či rozšíření formou nástavby v souladu s okolní zástavbou. Nemovitost představuje ideální příležitost pro ty, kteří hledají bydlení podle vlastních představ, nebo zajímavou investici do nemovitosti v atraktivní lokalitě. Skvělá dostupnost do Prahy a veškerá občanská vybavenost v místě je velkou výhodou pro bydlení v této lokalitě. Zděný rodinný dům je napojený na veřejný vodovod i kanalizaci, elektřinu i plyn. Dům je suchý, ohřev vody a vytápění zajišťuje plynový kotel, teplo je rozváděno radiátory. Nemovitost je průběžně udržována, v roce 2010 zde proběhla rekonstrukce koupelny a kuchyně, výměna rozvodů elektřiny, plynu, vody a instalace nového plynového kotle. Dům je nepodsklepený, s půdou v podkroví, která je přístupná po žebříku zvenčí. Střecha je sedlová, krytá keramickou pálenou taškou, stropy mají dřevěnou trámovou konstrukci, okna a dveře jsou dřevěná, podlahy tvoří dřevo a dlažba. Na východně orientované zahradě se vzrostlými stromy se nachází nízký přístavek využívaný jako kůlna na nářadí, zastřešené posezení a vlastní studna. Pozemek není v záplavovém území a dům ani lokalita nejsou památkově chráněny. Technický popis: Celková užitná plocha: 62,27 m2 Plocha pozemku celkem: 328 m2 Zastavěná plocha domu: 92 m2 Zdivo: cihla, kámen Inženýrské sítě v domě: elektřina, plyn, obecní vodovod a kanalizace Energetická náročnost: G Autobusová zastávka: 5 minut pěšky Metro Černý Most: autobusem cca 20 minut V blízkosti domu se nachází příroda, rozlehlé lesy a řeka Labe s jezery. Na kávu si můžete dojít pěšky do místní kavárny a na procházku vyrazit rovnou do okolní přírody. Stará Boleslav je ideálním místem pro klidný život v těsné blízkosti přírody, přitom s výbornou dostupností do Prahy. V okolí se nacházejí krásná přírodní jezera vhodná ke koupání - Proboštská jezera, jezero Lhota, Konětopy či Ovčáry - a také rozsáhlé borovicové lesy lákající k procházkám i cyklovýletům. Město nabízí veškerou občanskou vybavenost - školku, školu, obecní úřad, knihovnu, obchody, lékaře, restaurace, dětská hřiště i stezky pro pěší a cyklisty. Pro více informací nebo domluvení prohlídky mě neváhejte kontaktovat, ráda se s Vámi potkám na prohlídce.
Prodej rodinného domu, 204 m2, Brandýs nad Labem
Nabízíme k prodeji rodinný dům o ploše 204 m2 se dvěma bytovými jednotkami stojícím na pozemku 570 m2 v Brandýse nad Labem - Stará Boleslav. Oba byty…
Prodej, Rodinný dům, Brandýs nad Labem-Stará Boleslav
prodej rodinného domu ve Staré Boleslavi, která je součástí dvojměstí Brandýs nad Labem-Stará Boleslav. Ne, náhodou se toto město pravidelně umisťují…