Vybírejte z nabídky 38 818 nemovitostí od 827 realitních kanceláří
lupa mobilní menu
Přehled nemovitostí: prodej komerční > hotely a penziony > Strážný Zpět na přehled nabídek

Prodej, Hotel, pension, Strážný

foto16_11409392_27459.jpg foto16_11409392_53174.jpg foto16_11409392_89579.jpg foto16_11409392_24181.jpg foto16_11409392_57056.jpg foto16_11409392_81999.jpg Aktivní
Prodejce

Makléř: Kateřina Hradecká

Telefon: 601 102 ...

E-mail: katerina ...

Zobrazit celý kontakt

prodej

Strážný (okres Prachatice)

Komerční, Hotely a penziony

2218

06.11.2025

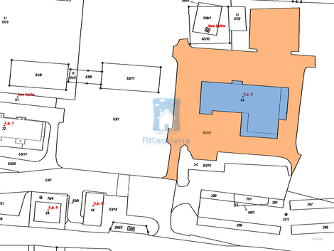
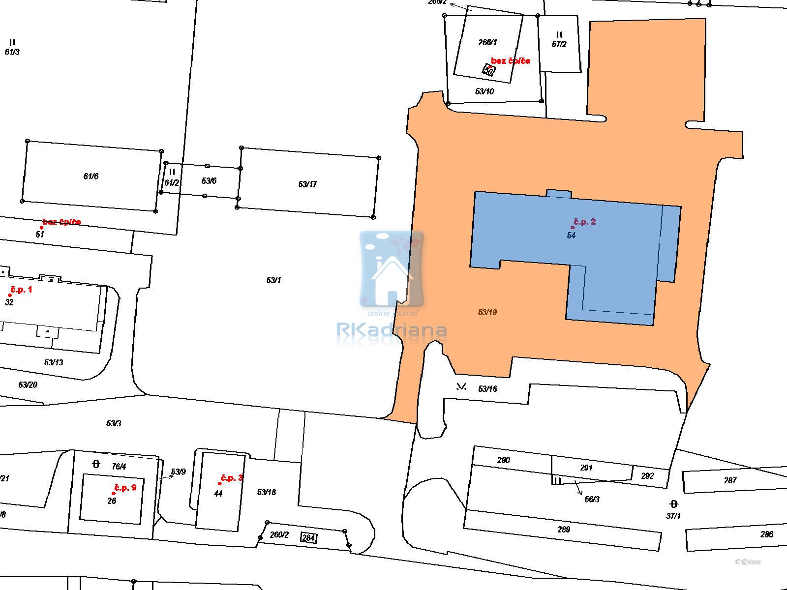
6 251 m2

G - Mimořádně nehospodárná

Cena: 60000000 CZK / objekt
Poznámka k ceně: plus provize RK 1
Prodejce

Makléř: Kateřina Hradecká

Telefon: 601 102 ...

E-mail: katerina ...

Zobrazit celý kontakt
Poslat dotaz k nabídce
Zásady používání osobních údajů

Nemovitost nabízí

/loga_velka/2756.jpg

RK Adriana

Na Lysinách 457, 14700 Praha

rkadriana.cz

Zobrazit kontakt na RK

Zobrazit všechny nabídky RK

Nabízíme k prodeji patrový cihlový objekt s celkovou užitnou plochou 6251 m2 v části obce Řasnice - Strážný, okres Prachatice. Tento prostorný objekt se třemi podlažími a zastavěnou plochou 1363 m2 na pozemku o rozloze 6251 m2 je ve velmi dobrém stavu, což minimalizuje náklady na rekonstrukci. Nemovitost je ideální pro přestavbu na sociální dům, například domov pro seniory nebo jinou sociální službu, na kterou lze získat dotační podporu. K dispozici je již vypracovaný stavební projekt pro „Domov pro seniory“, což usnadňuje realizaci záměru a urychluje proces přeměny budovy. Díky rozsáhlé užitné ploše a strategické poloze nabízí objekt velký potenciál pro dlouhodobý pronájem a vysokou návratnost investice. Budova je napojena na kanalizaci, elektřina je zajištěna (230 V) a přívod plynu je řešen plynovodem. Tato jedinečná příležitost osloví investory hledající stabilní a perspektivní projekt s možností využití dotačních programů. Pro více informací a domluvení prohlídky nás neváhejte kontaktovat.



Nahoru