Vybírejte z nabídky 38 892 nemovitostí od 825 realitních kanceláří
lupa mobilní menu
Přehled nemovitostí: prodej komerční > hotely a penziony > Strážný Zpět na přehled nabídek

Prodej, Hotel, pension, Strážný

foto16_11409394_08905.jpg foto16_11409394_44288.jpg foto16_11409394_73256.jpg foto16_11409394_01315.jpg Aktivní
Prodejce

Makléř: Kateřina Hradecká

Telefon: 601 102 ...

E-mail: katerina ...

Zobrazit celý kontakt

prodej

Strážný (okres Prachatice)

Komerční, Hotely a penziony

2221

06.11.2025

870 m2

G - Mimořádně nehospodárná

Cena: 18000000 CZK / objekt
Poznámka k ceně: plus provize RK 1
Prodejce

Makléř: Kateřina Hradecká

Telefon: 601 102 ...

E-mail: katerina ...

Zobrazit celý kontakt
Poslat dotaz k nabídce
Zásady používání osobních údajů

Nemovitost nabízí

/loga_velka/2756.jpg

RK Adriana

Na Lysinách 457, 14700 Praha

rkadriana.cz

Zobrazit kontakt na RK

Zobrazit všechny nabídky RK

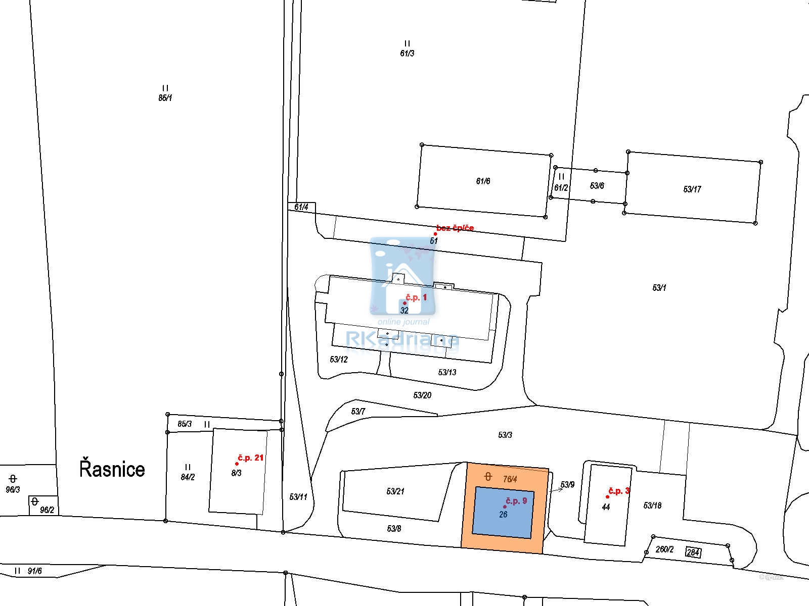
Nabízíme k prodeji exkluzivní investiční příležitost v části obce Řasnice - Strážný, okres Prachatice. Tato cihlová patrová budova se čtyřmi podlažími ve velmi dobrém stavu nabízí neuvěřitelný potenciál pro investory hledající výnosné projekty. Bytový dům je v současné době obsazen nájemníky a nabízí stabilní zdroj příjmů. Celková zastavěná plocha činí 198 m2 a užitná plocha 870 m2. Nemovitost disponuje celým spodním patrem jako nebytovými prostory, což rozšiřuje možnosti jejího komerčního využití. V patrech se nachází 10 bytových jednotek, které zajišťují pravidelné nájemní příjmy. Díky výhodné poloze je nemovitost atraktivní jak pro nájemní bydlení, tak pro podnikatelské záměry. K objektu navíc náleží parkoviště o rozloze 365 m2, což zvyšuje jeho komfort a přidanou hodnotu. Budova je napojena na kanalizaci a disponuje přívodem plynu přímo v budově. Tato nemovitost představuje skvělou investiční příležitost s vysokým výnosovým potenciálem a možností dalšího rozvoje. V případě zájmu o prohlídku nás neváhejte kontaktovat.



Nahoru