Pronájem novostavby skladových, výrobních prostor 1152 m, Ostrava - Zárubek
Makléř: Matěj Ježek
Telefon: 734 523 ...
E-mail: jezek@co ...
Zobrazit celý kontaktTelefon: 734 523 355
E-mail: jezek@contentreality.cz
pronájem
Podzámčí
N5923
07.11.2025
neuvedeno
C - Úsporná
Makléř: Matěj Ježek
Telefon: 734 523 ...
E-mail: jezek@co ...
Zobrazit celý kontaktTelefon: 734 523 355
E-mail: jezek@contentreality.cz
Nemovitost nabízí
CONTENT REALITY
Průmyslová 1472/11, 102 00 Praha 10 - Hostivař
Zobrazit kontakt na RK272 142 234
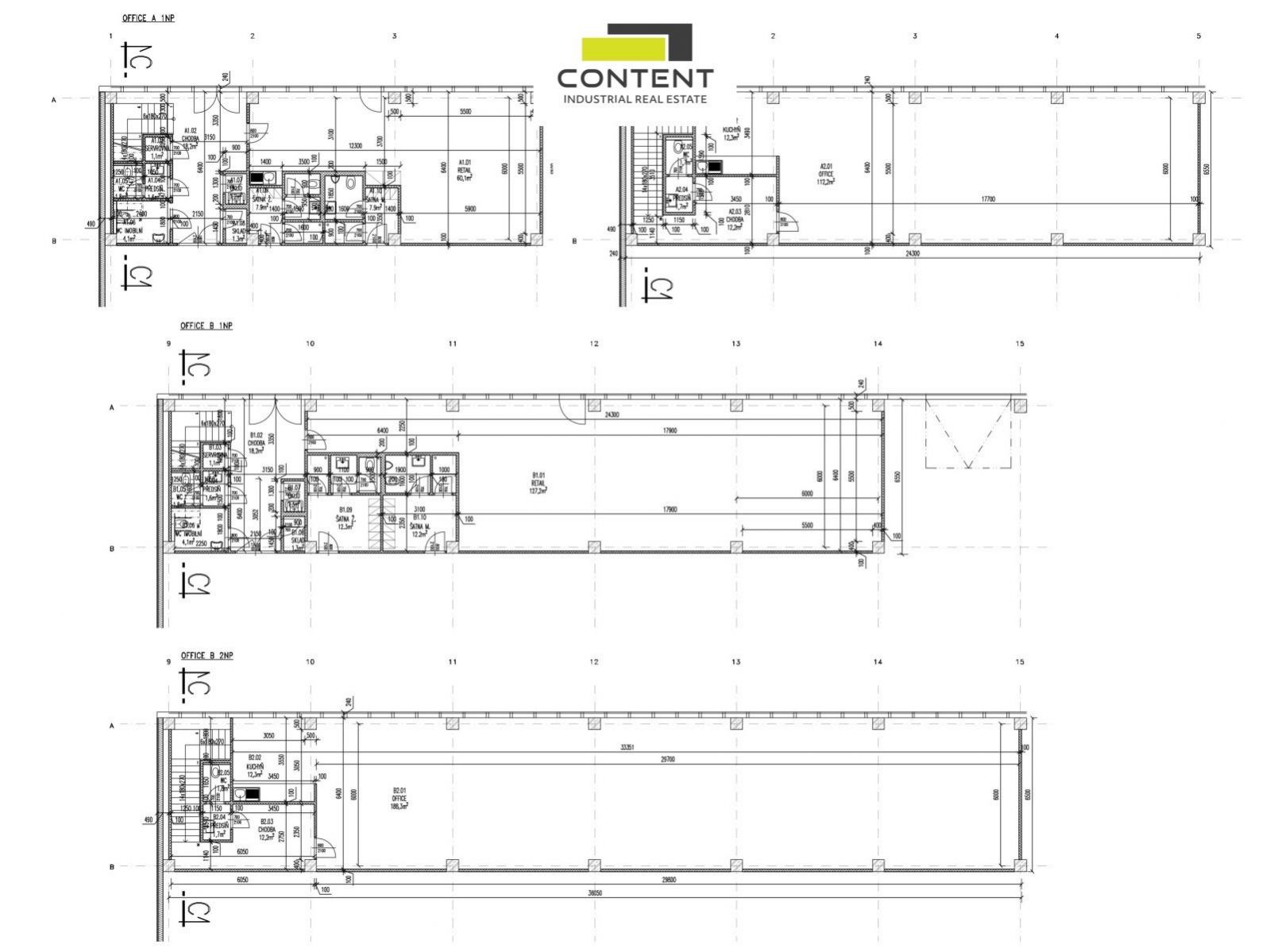
Pronájem skladu, výrobních prostor 1152 m Ostrava, Slezská - Zárubek. V zastoupení majitele a bez provize nabízíme industriální prostory ve výstavbě na velice strategickém místě poblíže OC Nová Karolína administrativního komplexu ORGANICA. Budova bude dodána s nejmodernějšími technologiemi a trendy ze stavebnictví. Jednotky se ideálně hodí jako sídlo firmy se showroomem, prodejnou, servisem, skladem, nebo lehkou výrobou. Umístění areálu je dále ideální na city logistiku, distribuci v rámci centra Ostravy, atd. - jednotka o velikosti 1152 m ihned k dispozici - z toho 108 m showroom + kanceláře v 1.NP a 2.NP - k dispozici samostatné jednotky od 594 m - 4608 m v rámci jedné budovy - výroba, sklad, servis, dílna, distribuce, kanceláře, výdejny - možnost klientských změn a úprav dle požadavků nájemníka - nosnost podlahy minimálně 5 t/m - voda, plyn, elektřina, kanalizace - přímé vjezdy, nakládací rampy - kanceláře vytápěné tepelným čerpadlem - hala vytápěná plynovými saharami - certifikace budovy BREEAM VERY GOOD - FVE + bateriové úložiště pro udržitelný provoz budovy Cena bude stanovena dle konkrétních podmínek smlouvy. Pro více informací nás kontaktujte. V případě zájmu Vám rádi zajistíme prohlídku.
Pronájem skladových a výrobních prostor, 13 500 m2, Contera Park D1, Ostrava - Hrušov
Nabízíme k pronájmu moderní prostory pro skladování a výrobu v nové průmyslové zóně v Ostravě- Hrušov. Nabízené prostory jsou součástí haly LP1 o…
Pronájem výrobní a skladovací haly,4488m2, Ostrava-Vítkovice
Pronájem výrobních a skladovacích prostor - Ostrava, Dolní oblast Vítkovic. Nabízíme k pronájmu střežené výrobní a skladovací prostory v atraktivní…
Pronájem výrobního prostoru Ostrava na Eurobydleni.cz