Vybírejte z nabídky 38 775 nemovitostí od 827 realitních kanceláří
lupa mobilní menu
Přehled nemovitostí: prodej domy > rodinné domy > Přešovice Zpět na přehled nabídek

Prodej rodinného domu 90 m2, Přešovice

Prodejce

Makléř: Smrkal Martin

Telefon: 721 932 ...

E-mail: martin@s ...

Zobrazit celý kontakt

prodej

Přešovice (okres Třebíč)

Domy, Rodinné domy

00006

20.11.2025

1

494 m2

68 m2

B - Velmi úsporná

Cena: na dotaz v RK
Poznámka k ceně: info v RK, včetně provize a právního servisu, včetně DPH, včetně poplatků, včetně provize, včetně právního servisu 1
Prodejce

Makléř: Smrkal Martin

Telefon: 721 932 ...

E-mail: martin@s ...

Zobrazit celý kontakt
Poslat dotaz k nabídce
Zásady používání osobních údajů

Nemovitost nabízí

/loga_velka/10398.webp

inveXreal s.r.o.

Heršpická 813/5, 639 00 Brno

www.invexreal.cz

Zobrazit kontakt na RK

Zobrazit všechny nabídky RK

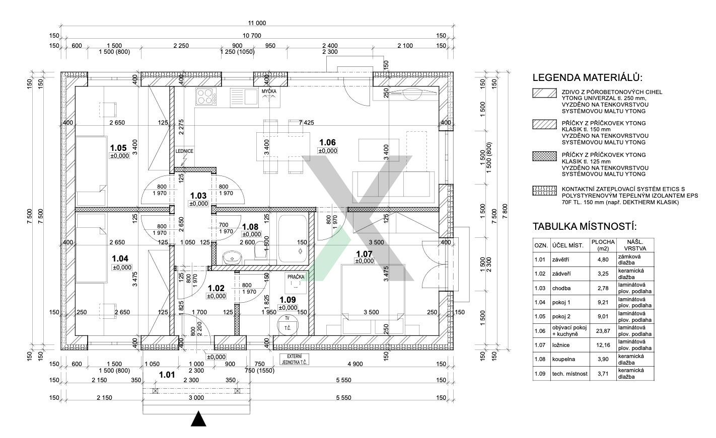
Do konce roku bude k prodeji rodinný dům v obci Přešovice o zastavěné ploše 90 m2 na trojúhelníkovém pozemku o výměře 494 m2. Přízemní bungalov lze užívat jako 4+KK (obývací pokoj s kuchyňským koutem, ložnice a dva dětské pokoje) nebo jako 3+1 (samostatný obývací pokoj, kuchyně a dvě ložnice). Jednotlivé místnosti mají výměry: - obývací pokoj s kuchyňským koutem 24 m2 - ložnice 12 m2 - dva pokoje po 9 m2 a koupelna 4 m2 V technické místnosti 4 m2 je kompletní zázemí domu a místo na pračku a sušičku. Dům se bude prodávat po kolaudaci (do konce roku 2025). K dodělání uvnitř domu budou podlahy, kuchyně, obložení, vybavení WC s koupelnou a vnitřní dveře. Mimo dům zbývá dokončit oplocení, terasy a příjezdová cesta. Dům a jeho okolí si budoucí majitelé přizpůsobí a dovybaví podle svých představ. Stavební firma ráda dokončí i zbylé práce. Rozpočet a termíny je možné připravit před prodejem. Přízemní bungalov na základech 11 m x 7,8 m je z pórobetonových tvárnic, střecha z pálené tašky. Okna jsou sedmi komorová Rehau Synego. Vytápění domu zajišťuje tepelné čerpadlo značky De Dietrich, o ohřev vody se stará elektrický kotel. Orientace střechy je na jih a je připravena nabídka na fotovoltaickou elektrárnu, která počítá s bateriovým uložištěm a nabíjecí stanicí pro elektromobil (WallBox). Dům je připojený na elektřinu a veřejný vodovod. Na dešťovou vodu je v zahradě uložená nádrž. Kanalizace je svedena do jímky, navíc je připravena ČOV. Z výstavby je k dispozici fotodokumentace. Na stavební práce a vnitřní vybavení se vztahují záruky. Obec Přešovice má přibližně 130 obyvatel, leží v dojezdové vzdálenosti do Třebíče a Znojma (25 km). Občanskou vybavenost (obchody, úřady a restaurace) najdete v Rouchovanech a Hrotovicích. Stávající i budoucí bloky elektrárny Dukovany jsou na dohled (11 km). Jedná se tak o lokalitu s potenciálem na rozvoj a růst ceny nemovitostí. Přímo za vesnicí začíná přírodní park Rokytná, do přírody to budete mít velmi blízko. Pokud hledáte bydlení v klidné obci a lokalitě Hrotovic, je pro vás tento dům ideální volba. Pro více informací nebo domluvení prohlídky nás neváhejte kontaktovat. S financováním vám rádi pomohou naši úvěroví specialisté.



Nahoru