Prodej rodinného domu, 370 m2, Rohoznice
Makléř: Vašátko Tomáš
Telefon: 296 399 ...
E-mail: info@mmr ...
Zobrazit celý kontaktTelefon: 296 399 006
E-mail: info@mmreality.cz
prodej
922069
14.11.2025
1
osobní
1 900 m2
370 m2
G - Mimořádně nehospodárná
Makléř: Vašátko Tomáš
Telefon: 296 399 ...
E-mail: info@mmr ...
Zobrazit celý kontaktTelefon: 296 399 006
E-mail: info@mmreality.cz
Nemovitost nabízí
M&M reality holding a.s.
Krakovská 1675/2, 110 00 Praha 1
Zobrazit kontakt na RK800 100 446
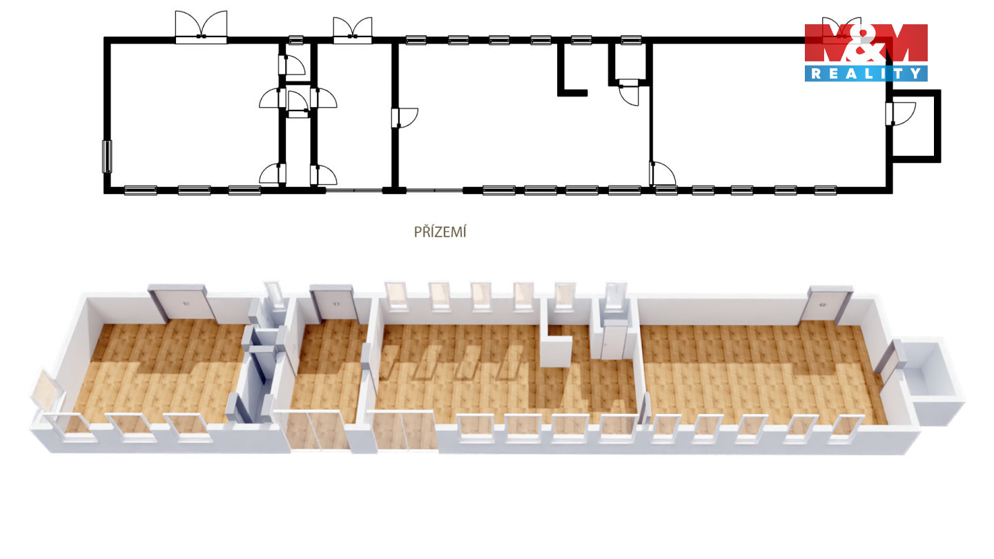
Zajímavá nabídka k prodeji atypické zemědělské usedlosti v klidné části obce Rohoznice, která je ideální pro spojení bydlení a podnikání. Tato samostatně stojící nemovitost aktuálně nabízí 8 místností rozložených do dvou nadzemních podlaží a jednoho podzemního. V současné době zde naleznete dva byty, kancelář a tři autodílny/autolakovny. Pokud jste automechanik s rodinou, je to dům přímo pro Vás. Pokud ovšem chcete pouze bydlet, tato nemovitost Vám na život vydělá po úpravách sama. Půda s již vybetonovanou podlahou je připravena k vestavbě dalších dvou bytových jednotek a autodílny lze přestavět na další byty. Velký sklep je ideální pro vybudování herny jak pro malé tak velké a bar. Venkovní zdivo je připraveno na fasádu. Celková plocha pozemku činí 190m2, užitná plocha je 370m2. Nemovitost je v velmi dobrém stavu a nabízí skvělý potenciál. Využijte příležitost a vytvořte zde lukrativní bydlení v blízkosti Hořic, Dvora Králové či Lázní Bělohrad. Zavolejte makléři a přesvědčte se sami
Prodej rodinného domu 150 m2, Nová Paka
Rodinný dům po kompletní rekonstrukci s garáží a zahradou Nová Paka, Vrchovina Nabízíme k prodeji prostorný a udržovaný rodinný dům o užitné ploše…
Rodinný dům 4+kk se zahradou a hospodářským zázemím v klidné vesnici Lično
Hledáte místo, kde budete mít dostatek prostoru pro rodinu, zahradu i vlastní zázemí? Tento rodinný dům v obci Lično (Bačalky, okres Jičín) nabízí…