Pronájem kanceláří 60 m vč. příslušenství a parkování Příbram, K Podlesí
Makléř: Tomáš Lenner
Telefon: 725 896 ...
E-mail: tomas.le ...
Zobrazit celý kontaktTelefon: 725 896 111
E-mail: tomas.lenner@seznam.cz
pronájem
K Podlesí
Komerční, Kanceláře a administrativní prostory
N04060
19.11.2025
osobní
neuvedeno
G - Mimořádně nehospodárná
Makléř: Tomáš Lenner
Telefon: 725 896 ...
E-mail: tomas.le ...
Zobrazit celý kontaktTelefon: 725 896 111
E-mail: tomas.lenner@seznam.cz
Nemovitost nabízí
Tomáš Lenner
Edvarda Beneše 313, 261 01 Příbram VII
Zobrazit kontakt na RK725 896 111
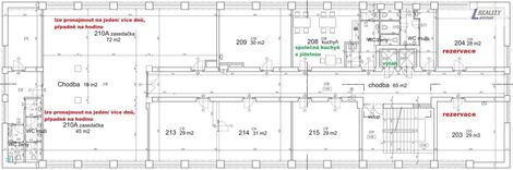
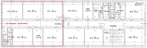
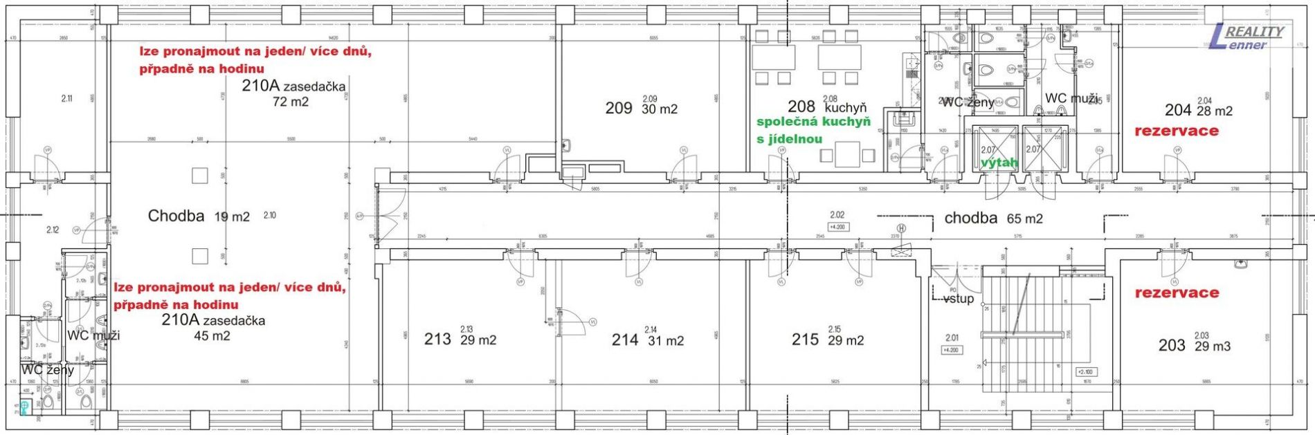
Nabízíme pronájem moderních a nově zrekonstruovaných kanceláří celkem o výměře 60 m v administrativní budově areálu P.P.P., v průmyslové zóně na okraji Příbrami. Budova po kompletní rekonstrukci nabízí: nový výtah společné kuchyně a jídelny na patrech oddělené moderní toalety možnost parkování před areálem pro uživatele kanceláří za příplatek využití zasedacích místností 45 m a 72 m (den/ hodiny) Aktuálně volné kanceláře: 1. patro: 29 m, 30 m, průchozí 29 + 30 m 3. patro: 14,5 m, 28 m, 2× 29 m, 31 m 4. a 5. patro: před rekonstrukcí, úpravy možné dle přání nájemce (dlouhodobý nájem) Další výhody: čisté, nové a moderní prostory na klidném a hezkém místě na okraji Příbrami internet v ceně nájmu (vyšší rychlost za příplatek) centrální vytápění snadná dostupnost po veřejné komunikaci, výborná dostupnost do Prahy hlídaný areál (vlastní vrátnice, non stop provoz) v budoucnu v přízemí recepce u vchodu Podmínky nájmu: volné ihned / dle dohody hradí se: první nájem vč. záloh, vratná kauce (dle dohody) a provize RK ve výši jedno nájmu PENB se připravuje, prozatím třída G majitel si vyhrazuje právo výběru nájemce
Pronájem kancelářských prostor (2x kancelář) celkem 70 m2, 2x parkovací stání
Nabízíme Vám pronájem moderních, prostorných, kanceláří vč. možnosti venkovních 2x parkovacích stání, v budově výrobního závodu kosmetických produktů…
Pronájem kanceláře 71 m2, cihla, přízemí, parkování
Nabízíme Vám nebyt. prostor po kompletní, dokončené rekonstrukci s možností parkování, v atraktivní lokalitě Příbrami VI Březových Horách v ulici…
Pronájem kanceláře Příbram na Eurobydleni.cz