Rodinný dům Praha 9
Makléř: Renáta Potanková
Telefon: 731 108 ...
E-mail: potankov ...
Zobrazit celý kontaktTelefon: 731 108 813
E-mail: potankova@rkgroup.cz
prodej
Englerova
8659
15.12.2025
2
osobní
210 m2
150 m2
G - Mimořádně nehospodárná
Makléř: Renáta Potanková
Telefon: 731 108 ...
E-mail: potankov ...
Zobrazit celý kontaktTelefon: 731 108 813
E-mail: potankova@rkgroup.cz
Nemovitost nabízí
RK Group realitní kancelář
K Dalejím 89/2, 152 00 Praha 5
Zobrazit kontakt na RK739 092 000
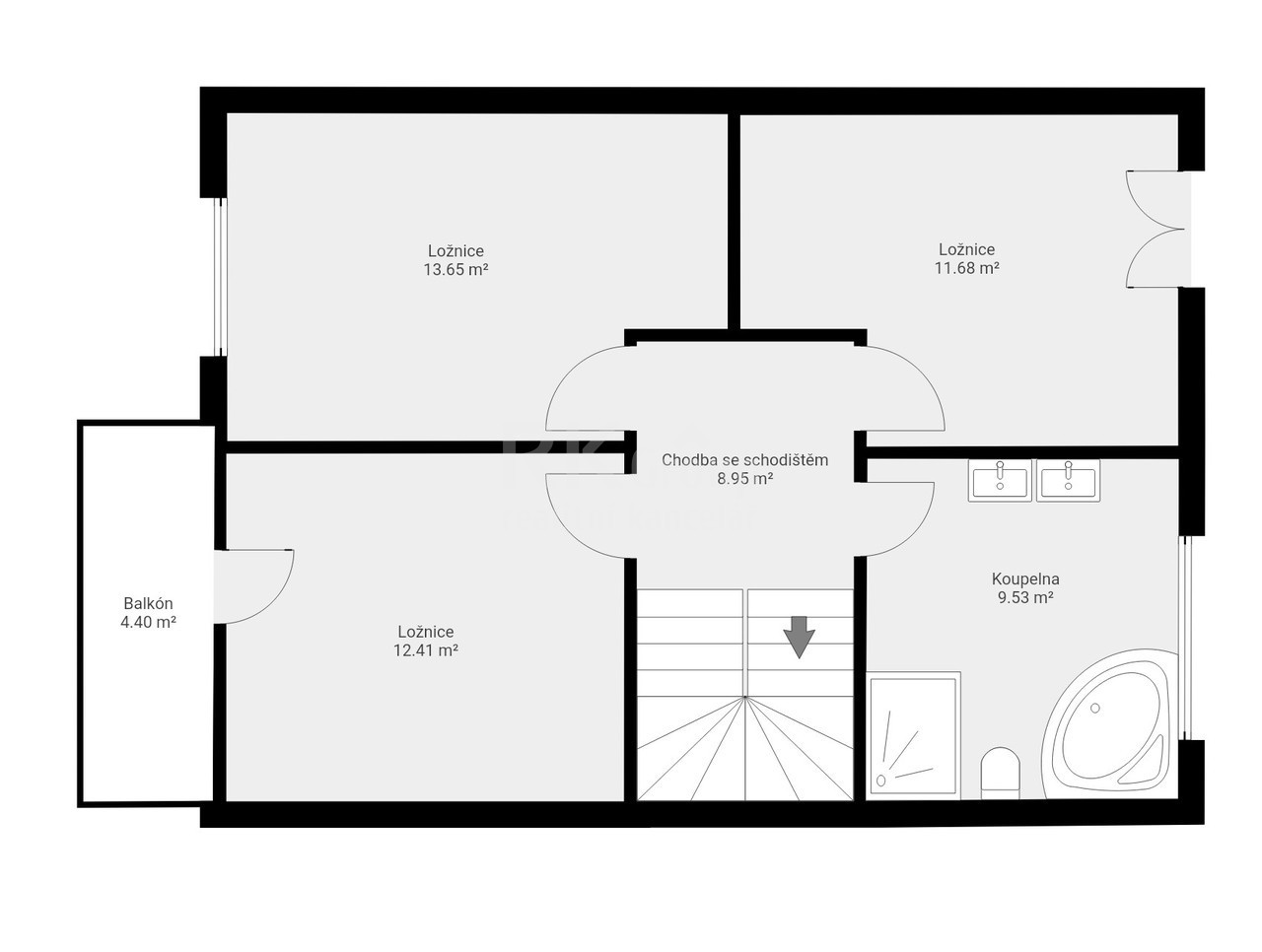
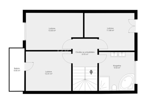
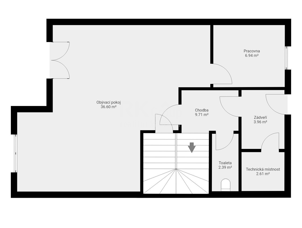
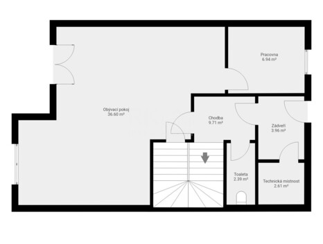
Prodej 5+kk, 150m2, V srdci klidné oblasti Třeboradice, Praha 9, se nachází krásný a prostorný řadový dům, který čeká na své nové majitele. Tento moderní dům o dispozici 5+kk a rozloze 150 m2 je ideálním místem pro rodinný život. S pozemkem o velikosti 210 m2 nabízí dostatek prostoru pro relaxaci a zábavu. Dům je ve vynikajícím stavu a vybavený moderními technologiemi, které zajišťují pohodlí a bezpečnost. Mezi hlavní přednosti patří plynový kotel, elektrické venkovní rolety, klimatizace a zabezpečovací systém Jablotron, který vám poskytne klid na duši. Je možnost čerpat dotaci Oprav dům po babičce. Interiér domu je navržen s důrazem na moderní design a funkčnost. Kuchyně ve vysokém lesku je vybavena všemi potřebnými spotřebiči a vestavěné skříně poskytují dostatek úložného prostoru. Dům je také připraven na moderní technologie s datovými rozvody a nabíjecí stanicí pro elektromobily (wollbox). Okrasná zahrada s praktickým zahradním domkem a pergolou je ideálním místem pro trávení volného času s rodinou a přáteli. Klidná lokalita nabízí nejen příjemné bydlení, ale také skvělou občanskou vybavenost. V blízkosti se nachází školy, školky, obchody a sportovní zařízení, což zajišťuje pohodlný a aktivní životní styl. Dopravní dostupnost je výborná, což usnadňuje každodenní dojíždění do centra města. Tento dům je připraven k okamžitému nastěhování - stačí si přinést jen kufr a můžete začít nový život v tomto krásném prostředí. Nezmeškejte tuto jedinečnou příležitost a domluvte si prohlídku ještě dnes!
Prodej, Rodinný dům, Praha 9
Hledáte nadstandardní bydlení v klidné a oblíbené části Prahy? Potřebujete dostatek prostoru pro více generací, podnikání nebo hledáte investiční…
Prodej rodinného domu 209 m2 Praha
Klidné rodinné bydlení v jedné z nejzelenějších a nežádanějších částí Prahy. Hledáte místo, kde můžete žít v klidu, v zeleni a přesto zůstat v…